Планировочное решение СТО включает разработку генерального плана, компоновочных планов зданий и планировку цехов и участков. Выбор планировочного решения определяется типом, назначением и производственной мощностью станции, типами и марками обслуживаемых автомобилей и видами выполняемых работ.
К основным требованиям, которые следует учитывать при разработке планировочных решений относятся:
– обеспечение минимальных затрат на строительство и эксплуатацию с созданием удобства для клиентов;
– соответствие планировки выбранной схеме производственного процесса и технологического расчета;
– максимальное использование типовых проектных решений;
– унификация конструкторских и объемно – планировочных решений зданий;
– гибкость производственных процессов, возможность быстрой модернизации и реконструкции при изменении внешних условий;
– рациональное использование площади предприятия;
- расположение основных зон и производственных участков предприятия в одном здании без деления предприятия на мелкие помещения;
- стадийное развитие СТО, предусматривающее ее расширение без значительных перестроек и нарушения функционирования.
В основе планировочного решения станции лежит схема производственного процесса, состав помещений, конструктивная схема здания, а также противопожарные и санитарно – гигиенические требования, предъявляемые к отдельным зонам и участкам.
До разработки планировочного решения предварительно составляется экспликацию производственных, складских, технических, административных, бытовых помещений с указанием площадей. Затем выбирают сетку колонн, строительную схему и габаритные размеры здания.
Площади отдельных участков, складов и других помещений при планировке могут несколько отличаться от расчетных, но не более чем на ±10 %.
Производственная часть здания СТО обычно одноэтажная. Иногда часть здания имеет 2-3 этажа, на которых размещаются административные и некоторые вспомогательные помещения (рис. 2.3).

Рис. 2.3. Планировка производственного корпуса
При расположении СТО в двух зданиях в одном из них рекомендуется располагать административные, торговые, бытовые и прочие помещения, посещаемые клиентами, а в другом – помещения производственного назначения.
На СТО с количеством постов до 10 допускается выполнять в одном помещении с постами ТО и ТР работы: по ремонту двигателей, агрегатные, слесарно – механические, электротехнические, по ремонту и изготовлению технологического оборудования, приспособлений и оснастки.
На станциях обслуживания основным помещением является зона постовых работ ТО и ТР, которая связана со всеми производственно – складскими помещениями. выделяются самостоятельные участки УМР, ремонта кузовов и окраски, противокоррозионной обработки.
помещение приема заказов (клиентская), помещение продажи запчастей, касса и посты приема и выдачи автомобилей располагаются смежно. К постам приемки и выдачи обычно примыкает участок диагностирования. Клиентскую и участок диагностики желательно располагать рядом.
Перечисленный блок помещений является головной частью станции, куда клиент имеет свободный доступ. В этой части обычно располагаются основные рабочие въезды и выезды.
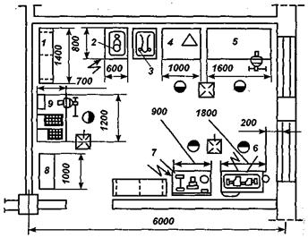
В зонах ТО и ТР, диагностики и текущего ремонта схематично изображается применяемое оборудование (канавы, подъемники, конвейеры, диагностические стенды, моечные установки, окрасочно – сушильные камеры и др.).
Посты для ТО и ТР, автомобиле – места хранения и посты ожидания наносятся на плане штрих – пунктиром по габаритному очертанию автомобилей с указанием его передней части и соблюдением нормативных расстояний.
На плане стрелками указываются пути движения автомобилей в соответствии с последовательностью технологического процесса.
При оформлении плана следует указывать основные строительные размеры (шаг и пролеты колонн, габаритные размеры здания), маркировку строительных осей, нормируемые технологические расстояния на постах ТО и ТР между автомобилями, а также между автомобилями и элементами здания, угол расстановки постов, ширину проездов.
Размеры проставляются в миллиметрах. Нумерация помещений на планировке сквозная, слева направо по часовой стрелке в возрастающем порядке.
Расстановка технологического оборудования и оргоснастки постов ТО и ТР на планировках зон и участков должна выполняться в соответствии со схемой технологического процесса, с учетом необходимых условий техники безопасности (рис. 2.4).

Рис. 2.4. Планировка зоны (производственного участка)
На планировке должно быть показано местоположение колонн, стен, перегородок, лестниц, оконных и дверных проемов, а также ворот для въезда и выезда автомобилей. На планировке помещений над основной надписью приводится экспликация помещений, заполнение которой производится сверху вниз.
На технологической планировке участков и рабочих постов необходимо указать:
строительные оси здания и расстояния между ними в соответствии с общей планировкой;
привязку оборудования и оргоснастки к строительным осям или элементам конструкции здания, чтобы по данной планировке можно было произвести расстановку и монтаж стационарного оборудования;
рабочие места, потребители воды, электроэнергии, сжатого воздуха и т. д. в соответствии с принятыми условными обозначениями;
спецификацию технологического оборудования и оргоснастки.