| Тип конвейера | Крепь | Комбайн | Размеры головки конвейера, мм | ||
| Длина | Ширина | Высота | |||
| СП202 СП48 СПЦ151 СП87 СПМ46 СП63 СПЦ261 КИ-3М | 1МК103 КМ97 М87, КМТ Донбасс Донбасс 80 1М88 1МТ инд. крепь М87 1МКМ | К103, 1К101 МК67, ГШ68 МК67 КА80 1К101, ГШ68 2К52 2КЦТГ, Кировец 2К 1К101, МК67 2К52 КШ1КГУ ГШ68 | 3060, 1532* 2802, 1605* | 2204, 3525* 1980, 3450* |
* размер головки при перпендикулярном расположении привода.
Высота подрывки штрека, при условии перегрузки угля из лавы на штрековый конвейер, определяется из выражения 7.2
hпод=lsina+hзаз+hкон, м. (7.2)
где l и a - ранее определенные величины;
hзаз =0,20-0,25 м – высота зазора между конвейером на штреке и головкой привода забойного конвейера;
hкон – высота става конвейера на штреке, м.
При погрузке угля в вагонетки в формулу вместо высоты конвейера на штреке подставляется высота вагонетки с учетом высоты рельс.
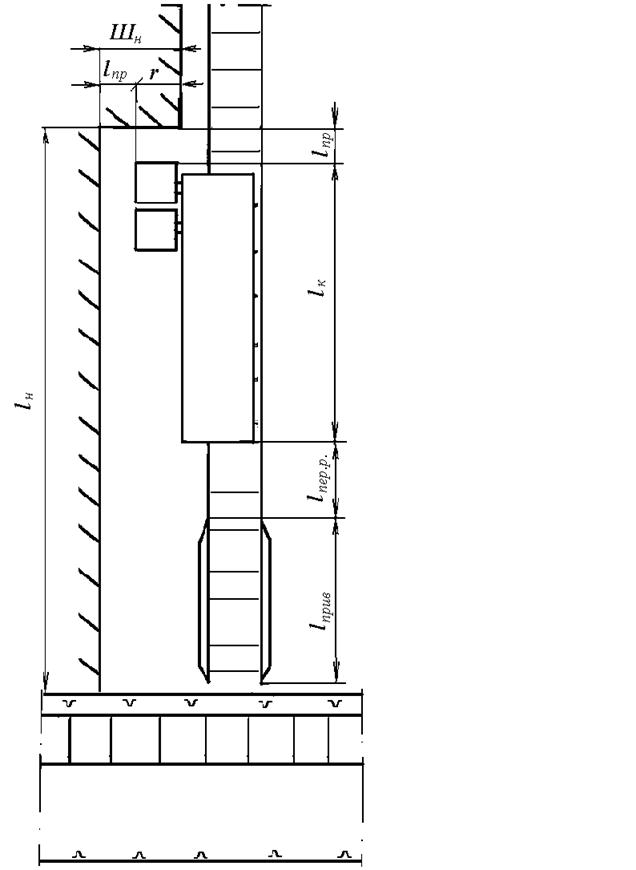
Размеры ниши, когда привод или головка конвейера не выносится из лавы (рис. 7.2), определяется из выражения 7.3:
Lн=lприв.+lпер.р.+lк+lпрох .+ lз, м, (7.3)
где lн – длина ниши, м; lприв., lпер.р., lк, lпрох, lз – соответственно длина привода, переходного рештака, корпуса комбайна, прохода и зазора между комбайном и переходным рештаком, м. (lз= 0,2 - 0,3 м.)
Минимальная ширина ниши Шн определяется из выражения
Шн=r+lпрох, м, (7.4)
где r – ширина захвата комбайна, м.

Рис 7.2. Расчетная схема к определению размеров ниши






