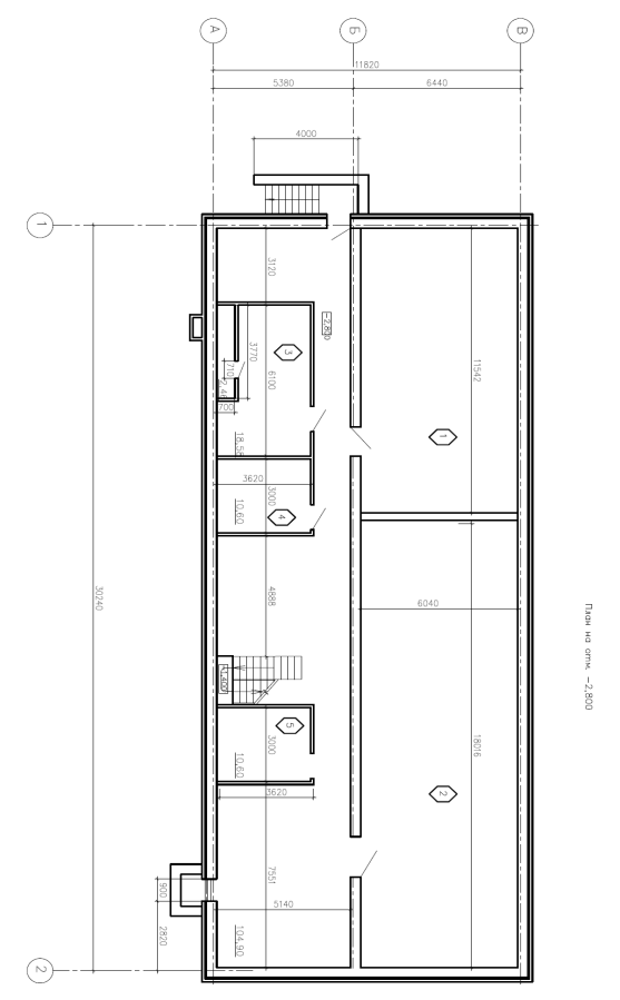
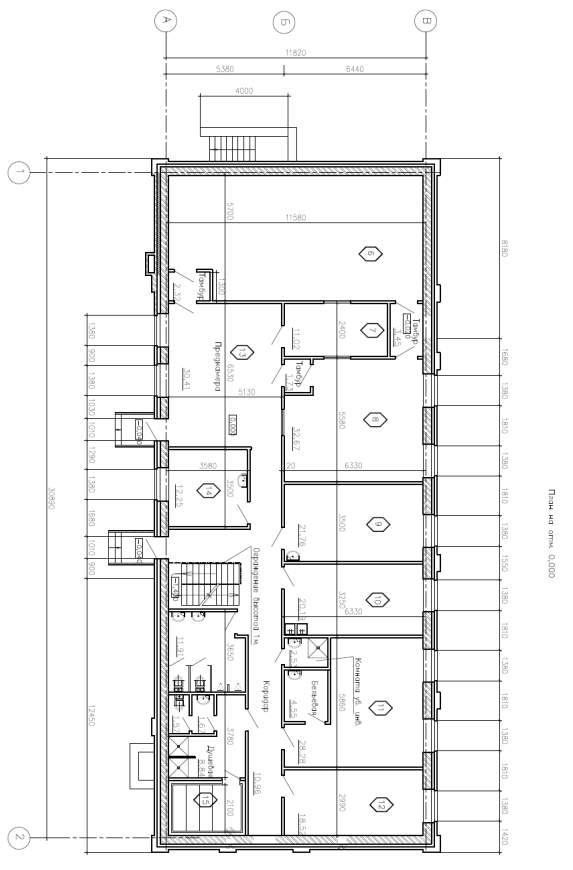
Здание представляет собой одноэтажное здание с подвалом, высота этажа 3,3м. В здании расположены следующие помещения:
Таблица П10.1
| № п/п | Наименование помещения |
| Этаж подвала | |
| 1. | Учебная аудитория на 30 человек. |
| 2. | Учебная аудитория на 60 человек. |
| 3. | Венткамера |
| 4. | Тепловой пункт |
| 5. | Электрощитовая |
| Первый этаж | |
| 6. | Дымокамера единовременное пребывание до семи человек |
| 7. | Пультовая 2 человека |
| 8. | Теплокамера до пяти человек |
| 9. | Специализированный учебный класс на 15 человек |
| 10. | Контрольный пост ГДЗС 2 человека |
| 11. | Раздевальная |
| 12. | Комната отдыха 2 человека |
| 13. | Предкамера |
| 14. | Кабинет врача 2 человека |
| 15. | Парильная на 12 человек. |
Планировка №1 Первый этаж
Планировка №1 – Подземный этаж

Планировка №2






