РАСЧЕТ И ВЫБОР ПОСАДОК ПОДШИПНИКОВ КАЧЕНИЯ
Данные для расчетов в таблице приложении 4.3
По интенсивности нагрузки определить посадку циркуляционно-нагруженного кольца.
В зависимости от вида нагрузки выбрать посадку местно-нагруженного кольца.
Определить величину посадочного зазора.
Вычертить схему расположения полей допусков.
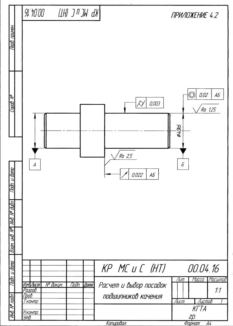
Вычертить эскиз детали, сопрягающейся с циркуляционно-нагруженным кольцом подшипника, указать необходимые допуски формы и расположения, параметры шероховатости поверхности. Методика расчета и выбора посадок подшипников качения изложена в [1, с.355-357]; [2, с.235-240].
Справочные данные в [1]; [3, т.2]; [4]; [6].
Величину первоначального радиального зазора следует брать для подшипников группы “норм” или 6 [6]. Для роликовых радиально-упорных конических подшипников зазоры формируются в процессе сборки изделия, для работы их можно брать аналогично радиальным сферическим двухрядным с коническим отверстием.
УСЛОВНЫЕ ОБОЗНАЧЕНИЯ
- среднее значение внутреннего диаметра внутреннего кольца подшипника d;
- среднее значение наружного диаметра наружного кольца подшипника D;
- ширина подшипника;
- ширина монтажной фаски;
- радиальная составляющая реакции опоры;
- интенсивность радиальной нагрузки;
- динамический коэффициент посадки;
- коэффициент, учитывающий ослабление натяга при полом вале или тонкостенном корпусе;
- коэффициент, учитывающий неравномерность распределения радиальной нагрузки для двухрядных конических подшипников или сдвоенных шарикоподшипников;
- максимальный натяг;
- минимальный натяг;
- средний натяг;
- максимальный зазор;
- минимальный зазор;
- средний зазор;
- допуск зазора;
- допуск натяга;
|
|
- максимальный радиальный зазор между телами качения и дорожками качения;
- минимальный радиальный зазор между телами качения и дорожками качения;
- первоначальный радиальный зазор в соединении;
- посадочный зазор;
- диаметральная деформация беговой дорожки кольца после посадки его на сопрягаемую поверхность с натягом;
- эффективный натяг;
- приведенный внутренний диаметр наружного кольца подшипника;
- диаметр корпуса;
- приведенный наружный диаметр внутреннего кольца подшипника;
- диаметр отверстия в полом вале.
ЗАДАНО:
условное обозначение подшипника 1616;
класс точности - 0;
А=10кН
вал вращается:

характер нагрузки -
(тяжелый).
1. Расшифровать условное обозначение подшипника:
1616 —шарикоподшипник радиальный двухрядный сферический;

2. Расчет и выбор посадки для вращающегося внутреннего кольца подшипника:

т.к. нагружение тяжелое;
;
636.3кН/м
По интенсивности радиальной нагрузки выбираем посадку.
Ø 




Посадка с натягом.
3. Выбор посадки для не вращающегося внутреннего кольца подшипника:
Ø 




Посадка с зазором.
4. Определение величины посадочного зазора:






Подшипник не заклинит, т.к. G > 0.
Схема расположения полей допусков подшипника и эскиз корпуса даны в приложении 3.1.
п






