Синхронный D -триггер предназначен для одноступенчатого запоминания информации. На рис.9.7 показаны условное обозначение и таблица истинности
D - триггера. Триггер имеет два входа: информационный D и синхронизирующий C, а также два выхода: прямой Q и инверсный
.
Согласно таблице истинности, при подаче на синхронизирующий вход C сигнала лог. 0, а на вход D любого из логических сигналов лог. 0 или лог. 1, на выходе Q будет сохранён логический сигнал, подаваемый на вход D.

Рис.9.7. Условное обозначение и таблица истинности
D – триггера
При подаче на вход C сигнала лог. 1, на выходе Q будет сохранён логический сигнал, подаваемый на вход D.
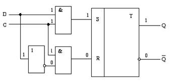
На рис.9.8 изображена логическая схема, реализующая принцип действия синхронного D - триггера. Схема состоит из асинхронного триггера, двух логических элементов И и одного инвертора. На схеме показан один из вариантов работы таблицы истинности.

Рис.9.8. Логическая схема, реализующая принцип действия синхронного D -триггера






