ОГЛАВЛЕНИЕ
ПРИЛОЖЕНИЕ А (справочное)
СХЕМЫ РАСПОЛОЖЕНИЯ РЕКВИЗИТОВ ДОКУМЕНТОВ
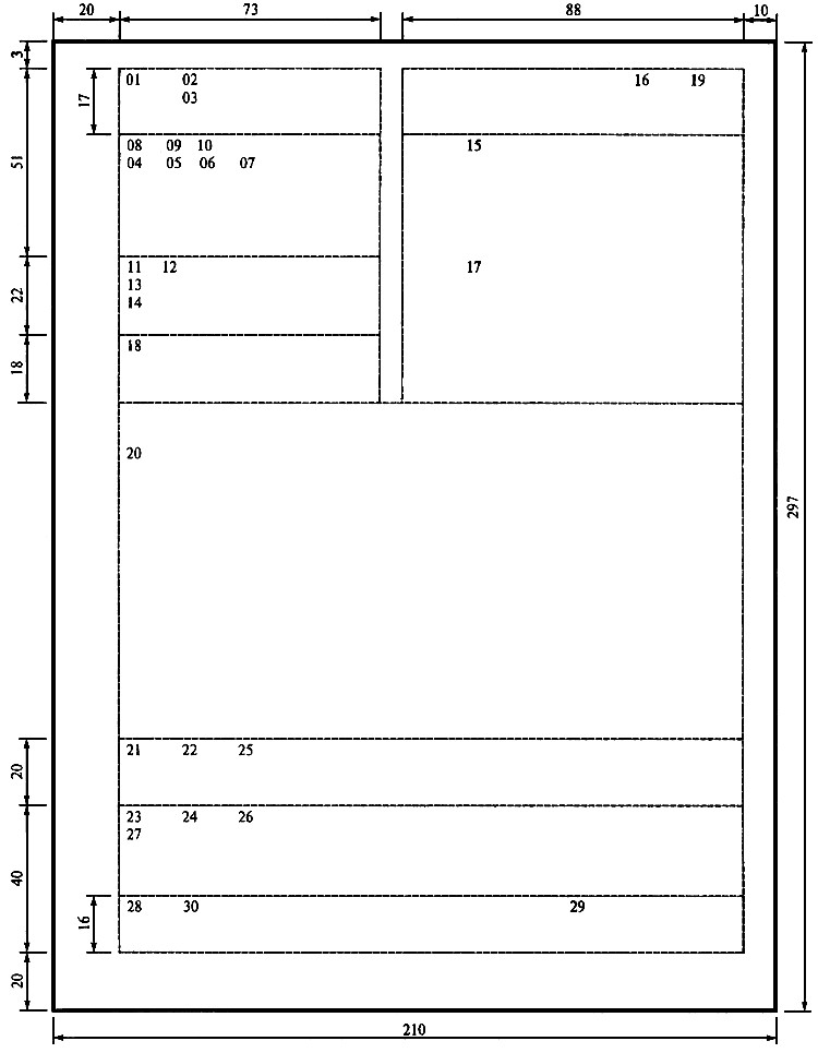
Рисунок А.1 - Расположение реквизитов и границы зон на формате А4 углового бланка
Рисунок А.2 - Расположение реквизитов и границы зон на формате А4 продольного бланка
ОСНОВЫ ДЕЛОПРОИЗВОДСТВА.. 2
КЛАССИФИКАЦИЯ ДОКУМЕНТОВ.. 2
ЗАДАЧИ ДЕЛОПРОИЗВОДСТВА.. 2
РАБОТА С ПЕРВИЧНЫМИ ДОКУМЕНТАМИ.. 3
СОЗДАНИЕ ОРИГИНАЛЬНЫХ ДОКУМЕНТОВ.. 3
РЕКОМЕНДАЦИИ ПО СОЗДАНИЮ ДОКУМЕНТОВ.. 3
СИСТЕМА ДОКУМЕНТОВ.. 3
ФОРМИРОВАНИЕ СТРУКТУРЫ ДОКУМЕНТОВ.. 3
ОРГАНИЗАЦИЯ ДЕЛОПРОИЗВОДСТВА И ДОКУМЕНТООБОРОТА.. 4
ОРГАНИЗАЦИОННОЕ ПОСТРОЕНИЕ СЛУЖБЫ ДЕЛОПРОИЗВОДСТВА.. 4
ОСНОВНЫЕ ТРЕБОВАНИЯ К ОФОРМЛЕНИЮ УПРАВЛЕНЧЕСКИХ (ОРГАНИЗАЦИОННО – РАСПОРЯДИТЕЛЬНЫХ) ДОКУМЕНТОВ.. 5
ОСНОВНЫЕ ПОЛОЖЕНИЯ ПО ДОКУМЕНТИРОВАНИЮ УПРАВЛЕНЧЕСКОЙ ДЕЯТЕЛЬНОСТИ.. 5
УНИФИКАЦИЯ И СТАНДАРТИЗАЦИЯ УПРАВЛЕНИЧЕСКИХ ДОКУМЕНТОВ.. 6
ВИДЫ ДОКУМЕНТОВ И ИХ КЛАССИФИКАЦИЯ.. 6
ПРАВИЛА ОФОРМЛЕНИЯ УПРАВЛЕНЧЕСКИХ (ОРГАНИЗАЦИОННО – РАСПОРЯДИТЕЛЬНЫХ) ДОКУМЕНТОВ.. 6
|
|
|
СОСТАВ РЕКВИЗИТОВ ДОКУМЕНТОВ.. 7
ТРЕБОВАНИЯ К ОФОРМЛЕНИЮ РЕКВИЗИТОВ ДОКУМЕНТОВ.. 7
ТРЕБОВАНИЯ К БЛАНКАМ ДОКУМЕНТОВ.. 14
ВЕДЕНИЕ ДЕЛОПРОИЗВОДСТВА В ОРГАНИЗАЦИИ, УЧРЕЖДЕНИИ.. 15
ОРГАНИЗАЦИЯ ДОКУМЕНТООБОРОТА.. 15
РЕГИСТРАЦИЯ И УЧЕТ ПОСТУПАЮЩИХ В ОРГАНИЗАЦИЮ ДОКУМЕНТОВ.. 15
ПОДГОТОВКА И РЕГИСТРАЦИЯ ОТПРАВЛЯЕМЫХ ДОКУМЕНТОВ.. 15
ПРОХОЖДЕНИЕ ВНУТРЕННИХ ДОКУМЕНТОВ.. 16
УЧЕТ ДОКУМЕНТООБОРОТА.. 16
КОНТРОЛЬ ЗА ИСПОЛНЕНИЕМ ДОКУМЕНТОВ.. 16
ОФОРМЛЕНИЕ И СОСТАВЛЕНИЕ ОСНОВНЫХ ВИДОВ УПРАВЛЕНЧЕСКИХ ДОКУМЕНТОВ.. 17
ПРАВИЛА ОФОРМЛЕНИЯ ДЕЛОВОГО ПИСЬМА.. 17
ОРГАНИЗАЦИОННО – РАСПОРЯДИТЕЛЬНЫЕ ДОКУМЕНТЫ... 19
РАСПОРЯДИТЕЛЬНЫЕ ДОКУМЕНТЫ... 20
ДОКУМЕНТЫ ОПЕРАТИВНОЙ ИНФОРМАЦИИ.. 22
РЕКОМЕНДАЦИИ ПРИ ПЕЧАТАНИИ ТЕКСТОВ СЛУЖЕБНЫХ ДОКУМЕНТОВ.. 24
ОСОБЕННОСТИ ОФИЦИАЛЬНО - ДЕЛОВОГО СТИЛЯ.. 24
УПОТРЕБЛЕНИЕ ПРОПИСНЫХ И СТРОЧНЫХ БУКВ.. 24
НАИБОЛЕЕ УПОТРЕБЛЯЕМЫЕ СОКРАЩЕНИЯ.. 24
ОФОРМЛЕНИЕ ДАТ И ЧИСЕЛ В ДОКУМЕНТАХ.. 25
АВТОМАТИЗАЦИЯ ОФИСА.. 25
ОСНОВНЫЕ КОМПОНЕНТЫ АВТОМАТИЗАЦИИ ОФИСА: 25
ПРИЛОЖЕНИЕ А (справочное) 30






