На одном из наших заводов работают цилиндрические электропечи мощностью 1000 и 1400 ква, (рис. 100). Днище кожуха этих печей, сделанное из листового железа (14—16 мм), опирается на шестиугольную крестовину из двутаврового железа № 30, а последняя — на тумбы бетонного фундамента. У некоторых печей в фундаментах есть аварийные приямки, способные в случае прорыва олова задержать его. Кожух печи сделан из листового железа (12. мм) высотой 2,8 м. Диаметр кожуха электропечи мощностью 1000 ква равен 4200 мм, а у печи мощностью 1400 ква — 4500 мм.

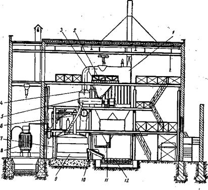
Рис. 100. Установка электропечи в цехе:
1- электрофильтр; 2- шихтовая площадка; 3 — газоход; 4 - загрузочный бункер; 5-скруббер; 6-загрузочный рукав; 7 - электрододержатели; 8 - трансформатор, 9 - электропечь; 10 - летка; 11 - шнек для разгрузки пыли; 12 -отстойник
Подпятовой балкой свода служит кольцо из швеллера № 30. Подина и шлаковый пояс футерованы угольными блоками. Высота шлакового пояса 25—35 см. Стены выложены из электродинаса толщиной 460 мм. Свод из электродинаса имеет три электродных, три загрузочных и одно газоходное отверстие.
Особое внимание уделяется устройству передней стенки. Практикой доказана выгодность двойной подины из угольных блоков и устройство защитного кольца из угольных плит за шлаковым поясом. Все это предупреждает аварийные прорывы расплавленной массы. На газоходное кольцо устанавливается круглое водоохлаждаемое кольцо, футерованное внутри шамотным кирпичом.
При полном выпуске продуктов плавки отделение ферросилиция и олова от шлака происходит в маленьком отстойнике, который делают каждый раз в спускном желобе.
Несмотря на малые размеры, этот отстойник довольно, хорошо отделяет олово от шлака. Из отстойника металл спускается через небольшое отверстие в приемную ванну или котел, шлак же переливается через глиняный порог и по желобу поступает в шлаковую ванну.
Емкость приемной ванны для олова около 2-2,5 т.
Электроплавка богатых оловосодержащих материалов предъявляет строгие требования к качеству исходного сырья. Это в первую очередь относится к содержанию вредных примесей.
В богатом концентрате, поступающем в электроплавку должно быть не более 0,01% Bi, 0,05% Pb и 0,2 As. При соблюдении этого черновое олово, полученное при электроплавке, рафинируется с получением марочного олова 01 без удаления висмута и свинца. Кроме того, в концентрате не должно быть более 2,0% Fe и 0,6% WO3.
Отношение железа к вольфраму в концентрате должно быть не ниже 3, а содержание WO3 обычно колеблется в пределах от 0,2 до 0,8%. Концентраты содержат кремнезема обычно больше, чем окиси кальция, поэтому в шихту всегда добавляют известь.
Известь применяется в виде «пушонки», содержащей до 80%СаО или дробленного известняка с 51-53% СаО.
В качестве восстановителя применяют мелкий кокс крупностью до 10 мм. Содержание влаги в коксе от 5 до 15—20%, золы 8-11%.
При расчете шихт содержание углерода в коксе принимают равным 80%, с приблизительной корректировкой на влажность.
Для связывания железа в ферросилиций вводят кремний или ферросилиций (75—90% Si). Расчет шихты сводится в основном к определению расхода восстановителя по реакции:
SnO2 + 2С = Sn +2CO.
Достаточность теоретического количества восстановителя подтверждена практикой плавки.
Количество кремния для связывания железа в ферросилиций добавляют из расчета получения сплава следующего состава: 67% Fe, 25% Si, 2% Sn.
Шихта готовится отдельными порциями, из расчета на сменный проплав. Отдельные компоненты ее загружают послойно в прямоугольный ящик с дном, имеющим несколько поворачивающихся секторов.
После загрузки ящика секторы открывают и шихта пересыпается в бункер хранения, а из него подается в двухвалковый шнековый смеситель. Готовую шихту переносят кюбелями в надколошниковые бункера печей.
Особое внимание уделяется влажности исходных материалов: при содержании влаги в концентрате более 2% наблюдается слеживание шихты в печи и ее обвалы, сопровождаемые сильными хлопками и выбросами.
Плавка ведется периодическим способом. После выпуска продуктов предыдущей плавки подготавливают электроды и осматривают подину печи, определяя наличие тугоплавкого остатка шихты в виде смеси избыточного кокса, шлака и ферросилиция.
После этого опускают электроды почти до подины, загружают шихту и включают ток.
Садка шихты весом 20—26 т в течение 18 часов. Первые 3—4 ч плавки около электродов еще мало жидкого шлака и температура его низка, поэтому электрический режим плавки неустойчив. Часты короткие замыкания электродов на подину. В этом периоде плавки к автоматическому управлению электродами подключают ручное управление; мощность трансформатора используется на 70—80%.
Когда под электродами образуется устойчивая шлаковая ванна, электрическая нагрузка печи становится равномерной.
В ходе плавки на подине печи накапливается черновое олово, которое периодически через 1,5—2 ч. выпускают через летку.
Обычно летку открывают электрическим прожиганием, но иногда ее приходится вскрывать с помощью кислорода.
Задачей плавки является получение шлака, содержащего не более 0,3% Sn. При этом неизбежно более или менее полное восстановление окислов других металлов: свинца, меди, мышья ка, висмута и вольфрама. Железо восстанавливается менее полно, чем вольфрам и олово.
Восстановленное железо образует с оловом сплав — гартлинг, выпускаемый из печи вместе с черновым оловом. По мере охлаждения олова с него удаляют железистые съемы и гранулируют их, пропуская через вибрационный грохот в воду. Гранулированный гартлинг возвращают в печь.
После 14—115 ч плавки начинают доработку шлаков, требующую повышения температуры шлаковой ванны; она длится еще 3—4 ч. Остаточный кокс всплывает на поверхность шлаковой ванны, создавая этим лучшие условия для восстановления окислов металлов из шлака непосредственно углеродом.
За 3 ч до выпуска содержание олова в шлаке составляет примерно 18—25%, а затем оно снижается до 0,3%.
Оборотные железистые съемы начинают загружать в печь за 5—6 ч до конца плавки. В это время, по всей вероятности, железо служит основным восстановителем SnO, так как при загрузке железистых съемов олово выплавляется в большем количестве и бывает сравнительно чистым по железу. За 2 ч до конца плавки создают условия для образования ферросилиция. Для этого температуру шлаковой ванны повышают до 1450— 1500° и значительно уменьшают окислительную способность шлака. Затем загружают кремний или ферросилиций с железистыми оборотами и за последующие 1—2 ч в печи образуется оловянистый ферросилиций.
В последнем выпуске в ванну-отстойник вместе с оловом выпускают и ферросилиций, который всплывает над металлом и застывает в виде корки, последнюю извлекают тельфером, разбивают и отвозят в отвал (временный).






