Пожар на предприятии наносит большой материальный ущерб и очень часто сопровождается несчастными случаями. Основными причинами возникновения пожаров в мастерских ТО и ремонта дорожных машин являются: неправильное устройство термических печей и котельных топок, неисправность отопительных приборов, неисправность электрооборудования и освещения и неправильная их эксплуатация, статическое электричество, отсутствие молниеотводов, неосторожное обращение с огнем, неудовлетворительный надзор за пожарным инвентарем и первичными средствами пожаротушения.
Все виды производства в зависимости от пожарной и взрывной опасности подразделяются на 5 категорий, обозначаемых А, Б, В, Г, Д. Применительно к мастерским ТО и ремонта дорожных машин к этим категориям относятся следующие помещения технологических процессов:
категория А – ацетиленовая, газогенераторная, зарядная аккумуляторных батарей;
категория Б – окрасочный, краскозаготовительный, склад ТСМ;
категория В – помещения для хранения машин, шиномонтажное, зона ТО и ремонта машин, участки диагностирования машин, вулканизации.
|
|
|
категория Г – кузнечно-рессорное, медницко-радиаторное, сварочное, обкатки и испытания двигателей;
категория Д – посты мойки машин, слесарно-механический, агрегатный, электротехнический, отделение топливной аппаратуры, жестяницкое отделение, отделение ремонта аккумуляторных батарей, гальванический цех.
Производства А и Б должны размещаться в зданиях I и II степени огнестойкости. Производства В, Г, Д могут быть размещены в зданиях I, II, III, IV,V степени огнестойкости. Противопожарный инвентарь для зон ТО и ремонта дорожных машин и других отделений и участков в соответствии с действующими нормативами (см Приложение Ю).
Приложение А
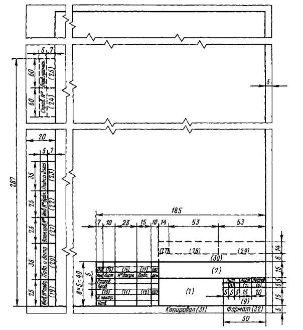
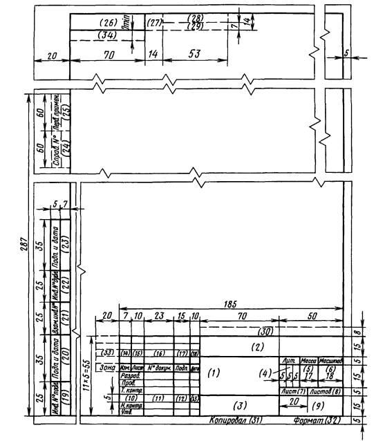
ГОСТ 2.104-2006 ЕСКД. Основные надписи
Форма 2. Основная надпись для текстовых конструкторских документов (первый или заглавный лист )

Форма 2а. Основная надпись для текстовых конструкторских документов (последующие листы)

В графах основной надписи и дополнительных графах (номера граф на формах показаны в скобках) указывают:
в графе 1 - наименование изделия (в соответствии с требованиями ГОСТ 2.109-73), а также наименование документа;
в графе 2 - обозначение документа ХХХ. НН. NN. ОО. ОО. ПЗ;
Принять следующее обозначение документа:
ХХХ - номер специальности (190629); НН - наименование документа (КП); NN - номер задания (01); ОО - номер сборочной единицы (00); ОО - номер детали (00); ПЗ - тип документа (ПЗ)
в графе 3 - обозначение материала детали (графу заполняют только на чертежах деталей);
в графе 4 - литеру, присвоенную данному документу (графу заполняют последовательно, начиная с крайней левой клетки) (у).
|
|
|
Допускается в рабочей конструкторской документации литеру проставлять только в спецификациях и технических условиях.
в графе 5 - массу изделия по ГОСТ 2.109-73;
в графе 6 - масштаб (проставляется в соответствии с ГОСТ 2.302-68 и ГОСТ 2.109-73);
в графе 7 - порядковый номер листа (на документах, состоящих из одного листа, графу не заполняют);
в графе 8 - общее количество листов документа;
в графе 9 - наименование или различительный индекс предприятия, выпускающего документ (ЕАДК гр. 3122);
в графе 10 - характер работы, выполняемой лицом, подписывающим документ, в соответствии с формами 1 и 2. Свободную строку заполняют по усмотрению разработчика, например: «Начальник отдела», «Начальник лаборатории», «Рассчитал»;
в графе 11 - фамилии лиц, подписавших документ;
в графе 12 - подписи лиц, фамилии которых указаны в графе 11.
в графе 13 - дату подписания документа;
в графах 14 - 18 - графы таблицы изменений, которые заполняют в соответствии с требованиями ГОСТ 2.503-90;
в графе 19 - инвентарный номер подлинника по ГОСТ 2.501-88;
в графе 20 - подпись лица, принявшего подлинник в отдел (бюро) технической документации, и дату приемки;
в графе 21 - инвентарный номер подлинника, взамен которого выпущен данный подлинник по ГОСТ 2.503-90;
в графе 22 - инвентарный номер дубликата по ГОСТ 2.502-68;
в графе 23 - подпись лица, принявшего дубликат в отдел (бюро) технической документации, и дату приемки;
в графе 24 - обозначение документа, взамен или на основании которого выпущен данный документ. Допускается также использовать графу для указания обозначения документа аналогичного изделия, для которого ранее изготовлена технологическая оснастка, необходимая для данного изделия;
в графе 25 - обозначение соответствующего документа, в котором впервые записан данный документ;
в графе 26 - обозначение документа, повернутое на 180° для формата А4 и для форматов больше А4 при расположении основной надписи вдоль длинной стороны листа и на 90° для форматов больше А4 при расположении основной надписи вдоль короткой стороны листа;
в графе 27 - знак, установленный заказчиком в соответствии с требованиями нормативно-технической документации и проставляемый представителем заказчика;
в графе 28 - номер решения и год утверждения документации соответствующей литеры;
в графе 29 - номер решения и год утверждения документации;
в графе 30 - индекс заказчика в соответствии с нормативно-технической документацией;
в графе 31 - подпись лица, копировавшего чертеж;
в графе 32 - обозначение формата листа по ГОСТ 2.301-68;
в графе 33 - обозначение зоны, в которой находится изменяемая часть изделия;
в графе 34 - номера авторских свидетельств на изобретения, использованные в данном изделии.
Примечание – при выполнении курсового проекта обязательными являются только графы 1 (наименование проекта), 2 (обозначение документа), 7 (порядковый номер листа), 8 (общее количество листов документа), 11 (фамилии лиц, подписавших документ), 12 (подписи лиц, фамилии которых указаны в графе 11), 13 (дату подписания документа)
Приложение Б
Титульный лист (форма 1)
| Министерство образования и науки Российской Федерации ФГОУ СПО «Екатеринбургский автомобильно-дорожный колледж»
ХХХХХХ УДК | |||||||||||
Специальность190605 | «Техническая эксплуатация подъемно- транспортных, строительных, дорожных машин и оборудования» | |||||||||||
ПРОЕКТ ЗОНЫ ТЕКУЩЕГО РЕМОНТА В ЦРМ УМ. Курсовой проект Пояснительная записка
190629 КП 01 00 00 ПЗ
190629 КП 01 00 00 ПГ 190629 КП 01 00 00 ПУ 190629 КП 01 00 00 ТК
Выполнил студент гр. 3122 И.И. Иванов Проверил преподаватель М.В. Стахеев
Екатеринбург 2011 |
поле 1 – наименование вышестоящей организации или другого структурного образования, в систему которого входит организация-исполнитель, наименование организации (в том числе и сокращенное);
|
|
|
поле 2 – в левой части (для технических условий, эксплуатационных и ремонтных документов) – код по классификатору продукции (например, в Российской Федерации используют код по Общероссийскому классификатору продукции - OKП - шесть знаков), или номер УДК[1] в правой части – специальные отметки (определить в библиотеке);
поле 3 – в левой части – гриф согласования, который состоит из слова «СОГЛАСОВАНО», должности с указанием наименования организации, ученой степени, ученого звания лица, согласовавшего отчет, его личной подписи, ее расшифровки, даты согласования, печати согласующей организации. В правой части – гриф утверждения, который состоит из слова «УТВЕРЖДАЮ», должности с указанием наименования организации, ученой степени, ученого звания лица, утвердившего отчет, личной подписи, ее расшифровки и даты утверждения отчета. Здесь же проставляется печать организации, утвердившей отчет;
поле 4 – вид документа — строчными буквами с первой прописной, наименование НИР — прописными буквами, наименование отчета — строчными буквами в круглых скобках, вид отчета (промежуточный или заключительный) — строчными буквами с первой прописной (если наименование НИР совладает с наименованием отчета, то его печатают прописными буквами);
поле 5 – шифр государственной научно-технической программы, шифр работы, присвоенный организацией-исполнителем;
поле 6 – для титульного листа - обозначение документа (заглавными буквами);
поле 7 – количество листов утверждения. Поле не заполняют, если ЛУ выполнен на одном листе;
поле 8 – должности, ученые степени, ученые звания руководителей организации-исполнителя НИР, руководителей НИР (если печатается в несколько строк, то печатать через I межстрочный интервал), затем оставляют свободное поле для личных подписей и помешают инициалы и фамилии лиц, подписавших отчет, ниже личных подписей проставляют даты подписания (если на титульном листе не размешаются все необходимые подписи, то допускается переносить их на следующую страницу);
|
|
|
поле 9 – графы 19 - 23 по ГОСТ 2.104, размещаемые на поле для подшивки (допускается не указывать или указываются после пункта 10);
поле 10 – город и год выпуска отчета.
Приложение В
Основная надпись для машиностроительных чертежей (схем) (форма 3)

Основная надпись для чертежей строительных изделий (Форма 4)


Специальность190605
ПРОЕКТ ЗОНЫ ТЕКУЩЕГО РЕМОНТА В ЦРМ УМ. Курсовой проект 









