Здания ГЭС


Конструкцию и компоновку зда­ния ГЭС определяют природные условия, схема концентрации напо­ра, напор, тип и параметры гидро­агрегатов (турбина и генератор, со­единенные общим валом) и транс­форматоров, вспомогательного обо­рудования. Габариты здания опре­деляются размерами агрегатных блоков, и в частности, длина его - количеством агрегатных блоков и размером монтажной площадки. В свою очередь габариты блока зави­сят от мощности (напора и расхо­да воды) турбины, и ширина его определяется размером спиральной камеры. Обычно на гидроэлектро­станциях устанавливается не менее двух-трех одинаковых агрегатов.

Тип и конструкция здания долж­ны быть экономически и технически всесторонне обоснованы и в то же время должны обеспечивать надеж­ную работу оборудования и удобные условия эксплуатации. Предъ­являемые в этом плане требования к зданиям иногда противоречат друг другу. Так, например, чрезмерная экономия при строительстве снижает надежность и удобство экс­плуатации, особенно в части прове­дения профилактических осмотров и ремонтов, что неизбежно влечет за собой увеличение эксплуатационных издержек.

В соответствии со схемами кон­центрации напора здание ГЭС при­нято делить на три типа:

здания русловой ГЭС, т. е. здания, воспринимающие напор (рис. 10.10);

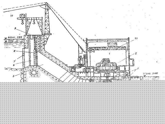
здания приплотинной ГЭС, т. е. размещенные за плотиной и невос­принимающие напора (рис. 10.11);

здание деривационной ГЭС (рис. 10.12).

По способу сброса воды из верх­него бьефа в нижний здания русло­вых ГЭС делятся па два типа:

1) несовмещенные с водо­сбросами (см. рис. 10.1,в), в ко­торых сбросы излишков воды из верхнего бьефа осуществляются че­рез водосливные отверстия плотины или другие устройства, находящиеся вне здания ГЭС (см. рис. 10.11).

2) совмещенные с водо­сбросами, которые обычно распо­лагаются в массивной (подводной) части здания (см. рис. 10.10), хотя применяются и другие конструктив­ные решения.

По типу подъемного оборудова­ний здания ГЭС строятся:

закрытыми — с внутренним расположением подъемного обору­дования — мостового крана (см. рис. 10.10—10.12);

полуоткрытыми — основное подъемное оборудование (порталь­ный кран) размещается над машин­ным залом (генераторное помеще­ние). Генераторный зал — низкое помещение со съемными крышками над генератором (рис. 10.13,а);

открытыми—машинный зал отсутствует, а генераторы укрыты колпаками (рис. 10.13,6). Подъем­ным оборудованием здесь является также портальный кран.

По расположению относительно земной поверхности:

наземное — корпус здания расположен на земной поверхности;

подземное — корпус здания расположен ниже земной поверхно­сти. Такие здания устраиваются при деривационной схеме концентрации напора, когда деривация выполняет­ся в виде туннеля.

В зависимости от положения оси агрегата различают здание с верти­кальными и горизонтальными агре­гатами, последние в настоящее вре­мя применяются главным образом на гидроэлектростанциях с напором 10—15 м.

Общим элементом для всех ти­пов зданий ГЭС является прежде всего монтажная площадка, которая размещается обычно в кон­це здания у берега и обслуживается теми же кранами, что в машинный зал. На уровне пола монтажной площадки делается подъездный путь для доставки оборудования в ма­шинный зал. Габариты площадки определяются условиями доставки, раскладки по ней одного гидроагре­гата при его ремонте в период эксплуатации. При большом числе агрегатов иногда делается две мон­тажные площадки

В здании ГЭС размещается ряд вспомогательных помещений, в чис­ле которых оперативно-производст­венные; производственные, админи­стративно-хозяйственные, бытовые.

К оперативно-производственным помещениям относят помещения электрических распределительных устройств генераторного напряже­ния, собственных нужд переменного и постоянного тока, поста (пульта) управления и др.

В здании ГЭС размещается так­же большое количество различных вспомогательных устройств. В со­став этих устройств входят: техни­ческое водоснабжение и пожароту­шение генераторов; осушение спи­ральных камер и отсасывающих труб; масляное хозяйство; пневма­тическое хозяйство; дренажные устройства; контрольно-измеритель­ная аппаратура и т.д.

В зависимости от мощности ГЭС, числа агрегатов определяется со­став и площадь помещений подсоб­но-вспомогательного назначения (ремонтно-механические мастерские, лаборатории и различного рода службы)



В нижней части здания ГЭС размещаются спиральные камеры турбин, статоры, направляющие ап­параты и рабочие колеса турбин; отсасывающие трубы, турбинные шахты п турбинный этаж, а также галереи различного назначения, по­мещения для вспомогательного обо­рудования, насосы для откачки во­ды и т. д.





Подборка статей по вашей теме: