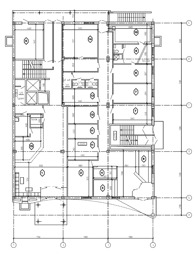
Здание представляет собой семиэтажное здание с подвалом. Этажи второй седьмой типовые. На покрытии расположена крышная котельная работающая на СУГ. В здании расположены следующие помещения:
Таблица П10.2
| № п/п | Наименование помещения |
| Первый этаж | |
| 1. | Вестибюль 5 человек |
| 2. | Кабинет 3 человека |
| 3. | Регистратура 2 человека |
| 4. | Гардероб 1 человек |
| 5. | Венткамера перегородки EI30, перекрытия REI45, двери металлические |
| 6. | Аптечный киоск 1 человек |
| 7. | Кабинет 2 человека |
| 8. | Комната отдыха 5 человек |
| 9. | Душевая 2 человека |
| 10. | Парильная 15 человек. Деревянная отделка, печь каменка на твердом топливе. |
| 11. | Кабинет на 3 человека. |
| 12. | Кабинет врача. Хранение в металлическом шкафу растирочных растворов на основе спирта весом 2 кг. Диэтиловый эфир ((С2Н5)2О) весом 3 кг. |
| 13. | Кабинет 3 человека |
| 14. | Лаборатория 2 человека. Стерилизация медицинских инструментов, разогрев озокерита, хранение трех кислородных баллонов по 10л в металлическом проветриваемом шкафу |
| 15. | Ресепшн два человека |
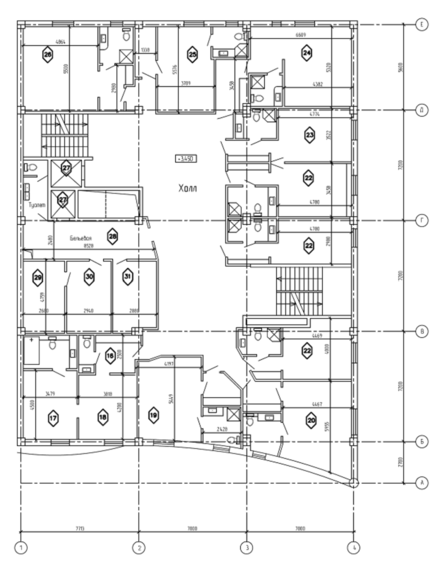
| Этажи второй - седьмой | |
| 16. | Холл номера |
| 17. | Комната номера гостиницы. Используется как склад белья. |
| 18. | Комната номера 2 человека |
| 19. | Номер гостиницы 2 человека |
| 20. | Номер гостиницы 3 человека |
| 21. | Номер гостиницы 1 человека |
| 22. | Номер гостиницы 2 человека |
| 23. | Номер гостиницы 2 человека |
| 24. | Номер гостиницы 6 человек |
| 25. | Номер гостиницы 3 человека |
| 26. | Номер гостиницы 3 человека |
| 27. | Лифтовая шахта. Ограждающие конструкции перегородки EI30, перекрытия REI30, дверные проемы выполнены деревянными с декоративной отделкой |
| 28. | Бельевая, стеллажное хранение 500 кг. белья |
| 29. | Комната приема пищи 5 человек |
| 30. | Комната персонала 2 человека |
| 31. | Серверная 2 человека |
Планировка №2 Первый этаж

Планировка №2 Второй этаж

Планировка 3