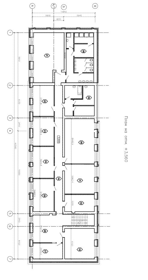
Здание представляет собой пятиэтажное здание с подвалом. Этажи второй пятый типовые. В здании расположены следующие помещения:
Таблица П10.4
| № п/п | Наименование помещения |
| Первый этаж | |
| 1. | Спортивный зал, спортивные снаряды в защитном резиновом исполнении 8 человек |
| 2. | Жилая комната 5 человек |
| 3. | Помещение хранения медицинского оборудования для инвалидов |
| 4. | Кабинет заведующего общежитием, 1 человек. Компьютер подсоединен через сетевой фильтр. |
| 5. | Кабинет завхоза |
| 6. | Аптечный киоск 1 человек |
| 7. | Стоматологический кабинет. Хранение в металлическом шкафу растворов на основе спирта весом 2 кг. Диэтиловый эфир ((С2Н5)2О) весом 3 кг. |
| 8. | Комната досуга 15 человек |
| 9. | Парильная 15 человек. Деревянная отделка, печь каменка электрическая. |
| 10. | Душевой блок с раздевалкой 5 человек. |
| 11. | Санузлы. |
| 12. | Мастерская художественной резки дерева ручным инструментом. |
| 13. | Жилая комната 4 человека |
| 14. | Жилая комната 8 человек |
| 15. | Комната для проживания 2 человека инвалиды, использующие при движении дополнительные опоры (категория мобильности М3), 1 человек категории мобильности М1 |
| 16. | Лестничная клетка соединяющая 1 – 5й этажи. |
| 17. | Жилая комната 3 человека |
| 18. | Венткамера перегородки EI30, перекрытия REI45, двери металлические |
| 19. | Коридор |
| 20. | Тамбур |
| Второй этаж | |
| 21. | Жилая комната 10 человек |
| 22. | Жилая комната иностранных граждан 5 человек |
| 23. | Жилая комната иностранных граждан 5 человек |
| 24. | Жилая комната иностранных граждан 5 человек |
| 25. | Жилая комната иностранных граждан 6 человек |
| 26. | Рекреационная площадка 2 человека |
| 27. | Ларек канцелярских принадлежностей и продуктов питания |
| 28. | Санузлы и душевые |
| 29. | Санузлы и душевые для иностранных граждан |
| 30. | Жилая комната 8 человек |
| 31. | Жилая комната 7 человек |
| 32. | Жилая комната 8 человек |
| 33. | Жилая комната 10 человек, используется самодельный нагревательный прибор |
| 34. | Коридор |
Планировка 4 Первый этаж

Планировка 4 Второй этаж

Планировка №5






