Текстовые документы выпускных квалификационных работ магистров, специалистов, бакалавров выполняются на одной стороне листов белой бумаги стандартного размера – А4 (210х297 мм) с применением печатающих и графических устройств вывода ЭВМ. Текст располагают на листах так, чтобы поля имели следующие размеры: левое – 25-30 мм, правое – 10 мм, верхнее – 15-20 мм и нижнее – 20-25 мм. Текст набирается в программах Word 6.0/95 или Word 97 шрифтом Times New Roman Cyr, размер шрифта – 13 или 14 кегль, межстрочный интервал – полуторный. Для таблиц, заголовков таблиц, названий схем и рисунков рекомендуется одинарный интервал. Абзацы в тексте начинают отступом (1-1,5 см), который должен быть одинаковым по всему документу.
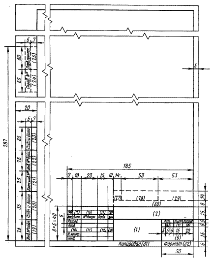
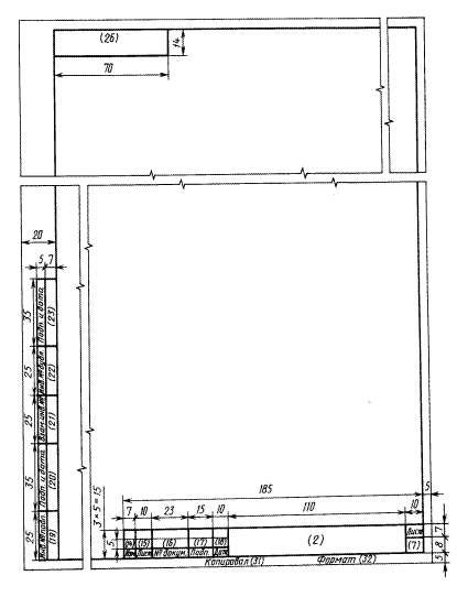
Выпускные квалификационные работы специалистов исследовательские и проектные (по решению кафедры и бакалавров) выполняют на листах с рамками и штампами, оформленными в соответствии с требованиями ГОСТ 2.104-68. Листы, на которых начинается новый раздел работы, выполняют в соответствии с рис. 2.1 как первые или заглавные листы, остальной текст (подразделы) выполняют в соответствии с рис. 2.2 как последующие листы.
|
|
|
Текст располагают с соблюдением определенных расстояний от рамки до грани текста. Так, название раздела на заглавных листах нужно располагать с отступом от рамки не менее 15 мм, на последующих листах расстояние от рамки до верхней или нижней строк текста должно быть не менее 10 мм, в начале и конце строк – не менее 3 мм. Между названиями разделов, подразделов и текстом обязательно должны быть пробелы.

Рис. 2.1 Основная надпись для текстовых документов
(первый или заглавный лист)

Рис. 2.2. Основная надпись для текстовых документов
(последующие листы)
Текстовые документы должны выполняться на принтерах для черно-белой печати. При необходимости вписывания отдельных слов, формул, условных знаков рукописным способом, это следует делать черными чернилами, пастой или тушью. Ч ерными чернилами выполняются и иллюстрации. Если формулу вписывают вручную, применение машинописных и рукописных символов в одной формуле не допускается.
Страницы текстового документа следует нумеровать арабскими цифрами, соблюдая сквозную нумерацию по всему тексту документа. При наличии штампов номера страниц проставляют в соответствующей ячейке штампа, в других случаях – в правом верхнем углу без точки в конце.
Текст документа должен полностью отражать необходимые материалы, быть кратким, четким и не допускать различных толкований. В тексте должны применяться сказуемые в сослагательном наклонении «применяется», «рассчитывается», «загружается». Допускается повествовательная форма изложения текста документа, например «применяют», «указывают» и т.п.
|
|
|
В тексте должны применяться научно-технические термины и определения, установленные соответствующими стандартами, а также общепринятые в научно-технической литературе. Использованные малораспространенные термины, сокращения, условные обозначения, символы и т.п. должны быть представлены в виде отдельного списка (перечня) с необходимыми разъяснениями. Перечень помещают перед списком использованной литературы и включают в содержание. Если такие сокращения повторяются в тексте менее трех раз, их можно в список не вносить, а дать расшифровку непосредственно в тексте при первом упоминании.
В тексте документа не допускается:
· применять обороты разговорной речи, техницизмы, профессионализмы;
· применять для одного и того же понятия различные научно-технические термины, близкие по смыслу (синонимы), а также иностранные слова и термины при наличии равнозначных слов и терминов в русском языке;
· применять произвольные словообразования и сокращения;
· сокращать обозначения единиц физических величин, если они употребляются без цифр, за исключением единиц физических величин в головках и боковиках таблиц и в расшифровках буквенных обозначений, входящих в формулы и рисунки.
В документе следует применять стандартизированные единицы физических величин, их наименования и обозначения в соответствии с ГОСТ 8.417–81. Наряду с единицами СИ при необходимости в скобках указывают единицы ранее применявшихся систем, разрешенных к применению. Применение в одном документе разных систем обозначения физических величин не допускается. Недопустимо отделять размерность физической величины от числового значения (переносить на другую строку или страницу).






