Студопедия
Категории
Авто
Автоматизация
Архитектура
Астрономия
Аудит
Биология
Бухгалтерия
Военное дело
Генетика
География
Геология
Государство
Дом
Журналистика и СМИ
Изобретательство
Иностранные языки
Информатика
Искусство
История
Компьютеры
Кулинария
Культура
Лексикология
Литература
Логика
Маркетинг
Математика
Машиностроение
Медицина
Менеджмент
Металлы и Сварка
Механика
Музыка
Население
Образование
Охрана безопасности жизни
Охрана Труда
Педагогика
Политика
Право
Программирование
Производство
Промышленность
Психология
Радио
Регилия
Связь
Социология
Спорт
Стандартизация
Строительство
Технологии
Торговля
Туризм
Физика
Физиология
Философия
Финансы
Химия
Хозяйство
Черчение
Экология
Эконометрика
Экономика
Электроника
Юриспунденкция
Предметы
Авиадвигателестроения
Административное право
Административное право Беларусии
Алгебра
Архитектура
Безопасность жизнедеятельности
Введение в профессию «психолог»
Введение в экономику культуры
Высшая математика
Геология
Геоморфология
Гидрология и гидрометрии
Гидросистемы и гидромашины
История Украины
Культурология
Культурология
Логика
Маркетинг
Машиностроение
Медицинская психология
Менеджмент
Металлы и сварка
Методы и средства измерений
электрических величин
Мировая экономика
Начертательная геометрия
Основы экономической теории
Охрана труда
Пожарная тактика
Процессы и структуры мышления
Профессиональная психология
Психология
Психология менеджмента
Современные фундаментальные и
прикладные исследования
в приборостроении
Социальная психология
Социально-философская проблематика
Социология
Статистика
Теоретические основы информатики
Теория автоматического регулирования
Теория вероятности
Транспортное право
Туроператор
Уголовное право
Уголовный процесс
Управление современным производством
Физика
Физические явления
Философия
Холодильные установки
Экология
Экономика
История экономики
Основы экономики
Экономика предприятия
Экономическая история
Экономическая теория
Экономический анализ
Развитие экономики ЕС
Чрезвычайные ситуации
Популярное
Случайное
Контакты
FAQ
Заказать работу
ЗАДАТЬ ВОПРОС
Войти
/
Зарегистрироваться
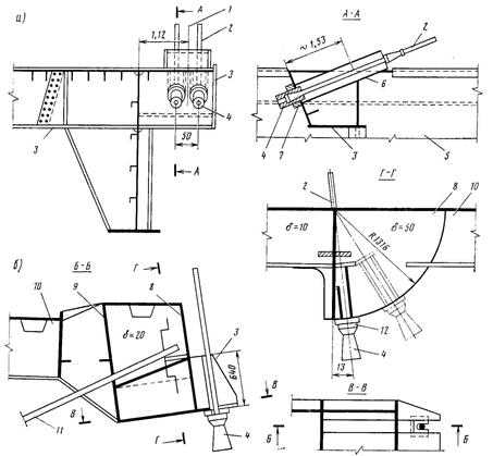
Прикрепление вант к балке жесткости
Поделись с друзьями:
1
2
3
4
5
6
7
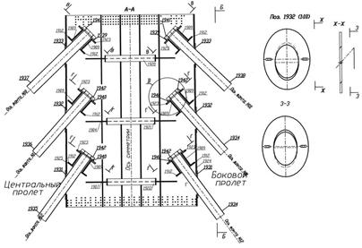
Прикрепление вант к пилонам
ЭКЗАМЕНАЦИОННЫЕ ВОПРОСЫ
Предмет «Проектирование мостов и труб»
1
2
3
4
5
6
7
Сейчас читают про:
Показатели движения численности работников. Пример 1,2
Технология изготовления порошков
Формы (источники) права: понятие и виды
Юридические факты: понятие, признаки, функции, виды
Бокс, полубокс, боксированная палата в инфекционных отделениях. Их устройство и нормативы площади и кубатуры на 1 взрослого и ребенка
Типовые задачи с решениями. № 1. Зависимость выпуска продукции от количества используемого труда отображается функцией:
Самый сильный аргумент, почему эволюция человека не могла быть