Градостроительство и архитектура классического периода.
В первые десятилетия V в. в греческом обществе начали совершаться важные перемены, связанные с переходом полисов, самостоятельных городов-государств, от тирании к демократии. Власть народа постепенно забирала бразды правления у единоличных правителей-тиранов, хотя в некоторых авторитетных полисах, как, например, в Спарте к власти приходило правление немногих - олигархия. Эти два течения, резко обозначившиеся в греческой жизни рубежной поры, обусловили и две разные художественные позиции. Возможно они мало связаны с политической ориентацией, но олигархические города-государства в отличие от демократических имели незначительное влияние на общий ход развития художественной жизни.
Длительное противостояние греческих городов Персидской империи, победоносно завершившееся победой в трех сражениях на территории Балкан: Марафонском (490 г.н.э.), Саламинском (480 г. до н.э.) и Платейском (479 г. до н.э.), - не только подняло уровень самосознания греков, но и изменило соотношение дорийской и ионийской традиций.
|
|
|
На арене художественной и культурной жизни прочно и уже окончательно воцарилась Аттика. Расцветшие в архаике художественные центры продолжали действовать, но в целом, вся восточно-греческая территория – Иония – захваченная и разрушенная персами, вступила в полосу глубокого затяжного кризиса.
Выделив в классическом периоде три этапа: раннеклассический (470-450 гг. до н.э.), период высокой классики (450-400 гг. до н.э.) и позднеклассический (400-338 гг. до н.э.), исследователи отметили, что для ранней классики большой редкостью были храмы. Война мешала крупному строительству, только после победы началось активное строительство на месте общеэллинских святилищ.

План святилища Зевса в Олимпе.
Одним из важнейших среди них было святилище Зевса в Олимпии. Оно было связано с ритуальными праздниками, так называемыми «Олимпийскими играми», возобновившимися с 776 г. до н.э..
Священный участок Олимпии назывался Альтис – «Роща»; очевидно, подразумевалась роща священных деревьев, находившихся на участке между руслами двух протекавших здесь рек – Алфея и Кладея. Альтис напоминал остров в водной бездне, прообраз «мировой горы». «Гору» представлял в Альтисе и специально Холм Кроноса, высившийся у северо-восточной границы святилища. Говорили, что здесь сын Реи, божественный младенец Зевс, был спасен от своего отца Кроноса, поедавшего детей, - руками этого ребенка, сына, мать «отделила» себя от супруга-отца. Так началась «космическая» жизнь олимпийцев.
Еще одной святыней Олимпии была могила Пелопса. Его отец – Тантал, решив проверить всеведение богов, приготовил им в качестве угощения собственного сына. Боги не притронулись к человеческой плоти, но Деметра, занятая своими мыслями, съела лопатку юноши, после чего возмущенные олимпийцы прекратили трапезу, жестоко покарали Тантала, низвергнув его в Аид, на границу миров, восстановили сваренного и изжаренного Пелопса в прежнем виде, и коль скоро «ела» его богиня-мать Деметра, она же и вернула его к жизни.
|
|
|
Любопытно, что олимпийские игры, устраиваемые через каждые четыре года, были закрыты для женщин. Только жрица Деметры (в соответствии с ролью богини в «съедении» Пелопса) имела право присутствовать на играх, так как мужи состязались здесь с мужами ради богини-супруги, которая символически должна была награждать победителей венками из священной оливы. Так древний «материнский» ритуал, связанный с памятью об умирающем и воскресающем боге, не просто стал центром олимпийских игр; сооружение храма Зевса в знак победы над персами включалось в более древнюю традицию: с возрожденным богом возрождалось святилище и весь греческий народ. Священные посольства, феории, расходились по греческим городам, на время игр прекращались войны, заключались перемирия: все с нетерпением ожидали победы бога солнца над смертью, и ее воспроизводили атлеты на играх. Стадион для бега занимал восточную часть священного участка, который век спустя будет отгорожен от храмов поперечным Портиком Эхо. Многократное повторение звуков включалось в ритуальный контекст воскрешения бога. Если рассматривать Альтис как удлиненное поле, поделенное поперечным Портиком Эхо на восточную (стадион) и западную части (храмы Геры и Зевса, героона Пелопса и Гипподамии, алтари, сокровищницы), то получим нечто вроде зеркальной стенки. Одна часть симметрично отражается в другой: бег совершается на главном месте, а отражением его являются храмы и герооны. Таким образом, космогоническая идея «разделения», осуществлявшаяся ранее в структуре храма, теперь распространялась на весь священный участок. Кстати, было здесь и ристалище для конных бегов, но оно находилось ближе к реке и до сих пор не раскопано.
Вокруг Пелопейона-Гипподамейона в VIII в. до н.э. стали отстраиваться и другие здания, древнейшим среди которых был упомянутый выше храм Геры, и вот теперь, в память о победе над персами, из десятины добычи был воздвигнут новый храм Зевса (468-456 гг. до н.э.) – по другую сторону от старинных героонов и алтарей; к северу от храма Геры вдоль платформы, ограничивающей теменос, был сооружен ряд сокровищниц. Храм выстроил из известняка местный архитектор Либон, черепицы кровли, симы и весь скульптурный декор были исполнены из паросского мрамора.
Храм Зевса уже настоящий классический периптер, первый совершенно зрелый дорийский храм Греции. Пропорции его (6 х 13 колонн, площадь 64 х 27м) стали компактнее и цельнее, общий облик производил менее тяжеловесное впечатление, чем у архаических зданий, и обладал даже некоей просветленностью. Количество колонн в храме Зевса (их высота 10,5 м) отвечало канонической формуле, согласно которой число колонн короткой стороны нужно было удвоить и прибавить еще одну единицу, чтобы получить число их на длинной стороне.
Поскольку храм стоял на равнине, его колонны не имели энтазиса. Каждая была сложена из четырнадцати барабанов, пройдена классическими двадцатью каннелюрами; капители имели высокие эхины с большим выносом, похожие на эхины эгинского храма Афайи. Все интерколумнии были разной величины, и только угловые колонны, видимые на просвет, утолщались; колоннада слегка наклонялась внутрь, к центру фасада. К храму вела уже не лестница, а пандус – почти повсеместная черта для греческих храмов V в. до н.э. В пандусе впечатление искусственной лестницы сменялось образом естественного склона горы. Так постепенно греческий храм обращался к природе.
|
|
|
Внутри целла делилась на три обычные части: обширный наос, узкие пронаос и опистодом. Портик пронаоса закрывался красивой бронзовой дверью; при входе на полу находилась мозаика с изображением мальчика, сидящего верхом на дельфине – своеобразное напоминание о том, что наос – это «водный мир». Целла была двухъярусной, причем на ее задней стенке имелись пилястры, «отпечатки» колонн, предназначенные для более органической связи колоннады и стен. Колонны малого яруса составляли своего рода галерею, на которую посетитель мог подняться снизу, чтобы созерцать статую бога. Огромная статуя сидящего Зевса, исполненная Фидием из золота и слоновой кости позднее носила в себе признаки образа новой эпохи. Колоссального размера, она плотно затесняла интерьер и отгораживалась от посетителей специальным барьером и занавесом. Путь наверх – по лестнице в небо – прочно утверждался в греческом искусстве в V в. до н.э. Но кругового обхода вокруг статуи не было – ее могли созерцать только с этих боковых галерей.
Скульптурный декор храма Зевса в Олимпии, несмотря на многие утраты, позволяет восстановить раннеклассический ансамбль в полном виде. Храм украшали метопы и два фронтона, выполненные из паросского мрамора. Наружные метопы были лишены декора и неокрашены. Внутренние, рельефные – ярко раскрашены: у них были синие триглифы, красные мутулы и тени.

Деталь фронтона храма Зевса в Олимпии.

Метопы – их было двенадцать – обходили храм только с двух сторон, восточной и западной. Их объединял сюжет подвигов Геракла, который, возможно, соответствовал представлениям о 12 символических часах, когда солнце или солнечный герой противостоял силам тьмы и хаоса (вспомните сюжеты египетских гробниц, в которых солнечный бог также 12 часов проходил ритуальные испытания).
Насколько нам известно, это первый храм Греции, в котором метопы украшали не наружные фасады, а целлу. Перенесение метоп с рельефами внутрь, за наружную колоннаду, симптоматично для этого времени: наружный дорический фриз оставался пустым, а «говорящими» стновились торцовые стены наоса. Такой выбор зон для декора вел к более четкой артикуляции внутреннего храмового ряда.
|
|
|
Храм Зевса в Олимпии оставался крупнейшим общегосударственным святилищем V в. до н.э., но интенсивные архитектурные поиски велись и на греческом Западе. Любопытные конструктивные особенности были в небольшом храме Е в Селинунте (25 х 68 м). Выстроенный в 480-460-е гг. до н.э., храм сохранял архаическую удлиненность пропорций (6 х 15 колонн) и включал наряду с опистодомом адитон. Внешне сохранялись тяжелые пропорции, высокий антаблемент и давно вышедшие в метрополии из моды керамические симы. Вместе с тем интерколумнии на длинных и коротких сторонах были выровнены, приведены в единую систему, а упоминавшиеся метопы, как в храме Зевса в Олимпии, украшали не наружный архитрав, а целлу внутри. Заострялась характерная для Запада черта – выделенность восточного фасада лестницей, состоявшей здесь из десяти ступеней. Идея лестницы развивалась и в интерьере: уровень пола повышался по мере движения посетителя от входа к задней стене, воплощая мысль о восхождении с земли на небеса.
Аналогичный процесс гармонизации ордера и формирования идеи вертикального пути в небеса заметен в храме Геры II в Посейдонии (Пестуме). Этот храм замечателен во всех отношениях, поскольку он – один из наилучшим образом сохранившихся храмов во всем греческом мире. Он стоит на традиционном трехступенчатом подиуме и имеет традиционную структуру внутри (пронаос – наос - опистодом), при более сокращенной длине (6 х 14 колонн). Храм, сложенный из плотного известняка, покрытого штукатуркой, производит впечатление необычной мощи: у него тяжелый архитрав, огромные колонны с небольшим энтазисом, сложенные из пяти-шести барабанов каждая. Но он уже не подавляет, как архаические храмы Запада: он величав и торжественен, с почти классическими пропорциями плана (2: 5), с курватурами во всех элементах, с суженными к краям интерколумниями, с небольшим наклоном внутрь. Особое впечатление производил его интерьер, с высокой двухъярусной колоннадой, увеличивающей зрительно высоту наоса, особенно по сравнению с небольшой площадью центрального нефа. Все детали и архитектурные членения, выполненные плоско, были призваны подчеркнуть пластику этого леса колонн, вычленявшего интерьер в обособленную священную ячейку здания.

Храм Геры II в Посейдонии (Пестуме).
Однако все постройки Запада превосходил огромными размерами (53 х 110 м), оригинальным замыслом и очень индивидуальным обликом храм Зевса в Акраганте, заложенный еще около 510 г. до н.э. Тиран Ферон возобновил строительство ок. 480 г. до н.э., после победоносно завершившийся войны с Карфагеном, так что акрагантский храм выступал, как и храм Зевса в Олимпии, своеобразным памятником победы в освободительной войне. Вероятно, здание из-за нестабильной внешней ситуации так никогда и не было закончено – известно, что в 409 г. до н.э. Акрагант уже был разрушен. Храм Зевса – единственный в греческой архитектуре псевдодиптер: у него нет колоннады как открытого портика – колонны лишь наполовину выступают из стен; причем в силу конструктивных особенностей они, состоящие из ряда секторных камней, не уходят в толщу стены, а словно приставлены к ней. У каждой из них (7х14 полуколонн) свой четырехступенный подиум и база сложной профилировки; каждая полуколонна выступает как индивидуальность.
Любопытной особенностью облика храма были его атланты – фигуры мужчин высотой 8,2 м, поддерживающих руками (предположительно) архитрав, поскольку эта часть перекрытия была составной и нуждалась в дополнительных опорах. Считалось, что атланты стояли на консолях, но это не доказано. Во всяком случае, чрезвычайно любопытно, что кариатиды уступают место мужчинам. Идея несения реализовалась как своего рода фигурный фриз. Если достоверна реконструкция стены с фигурами, помещенными в ее верхнем ярусе, тогда получается, что наружные стены храма делились горизонтально на два яруса. Это очень необычно для греческих ордерных зданий вплоть до последних десятилетий V в до н.э. – идея «деления» сначала развивалась в наосе, отражаясь, в частности, в чрезвычайно популярных в ранней классике двухъярусных колоннадах. Так что, может быть, атланты первично стояли внутри, в интерьере храма, мысль о чем неоднократно высказывалась.
Сквозной колоннады не было и в целле – вместо колонны выступали квадратные столбы, соединенные перегородками. Для лучшей связи опор и стен здесь, как и в храме Геры II в Посейдонии и как почти во всех храмах Греции этого времени, столбы оставляли на задней стене «отпечатки» в виде пилястр. Характерно стремление к отгороженности целлы барьерами, к выделенности центрального храмового ядра; так отгорожена статуя Зевса в храме в Олимпии, так отгорожен храм Афины Ники на Афинском Акрополе.
Чувство связи архитектуры с пейзажем, с окружающей природой — характерная черта греческого искусства. Она получила свое последовательное развитие в годы расцвета классики. Греческие архитекторы превосходно умели выбирать места для своих построек. Храмы строились на скалистых мысах, на вершинах холмов, в точке схода двух горных гребней, на террасах горных склонов.
Храм возникал там, где ему было словно приготовлено место самой природой, и вместе с тем его спокойные, строгие формы, гармонические пропорции, светлый мрамор колонн, яркая раскраска противопоставляли его природе, утверждали превосходство разумно созданного человеком сооружения над окружающим миром. Мастерски располагая на местности отдельные здания архитектурного ансамбля, греческие зодчие умели находить такое их размещение, которое сочетало их в свободное от строгой симметрии органически естественное и вместе с тем глубоко продуманное единство. Последнее диктовалось всем складом художественного сознания эпохи классики.
С особенной ясностью этот принцип раскрылся в планировке ансамбля Афинского Акрополя.
В создании его было уже множество примечательных черт. Во-первых, религиозное святилище стало городским. Если архаический теменос в Дельфах находился высоко в горах, вдали от населенных пунктов, а раннеклассический комплекс в Олимпии, спустившись на землю, выступал обособленно внутри поселений, то ансамбль Акрополя, поднятый на вершину горы, находился прямо в центре Афин и составлял главнейшее градообразующее начало.
Во-вторых, уникальным было предназначение святилища. Возникнув еще в микенские времена, ансамбль включал в себя цитадель, дворцы и храмы правителей. В эпоху архаики на священном участке оставались только храмы: Гекатомпедон и храм Афины Полиады. Однако после разрушений греко-персидских войн политический лидер Афин – Перикл – решил превратить восстановление всего святилища в самый грандиозный культурный проект, способный поднять авторитет афинян перед всем эллинским миром. В итоге Афины – политический и культурный центр пелопонесского альянса - должны были получить монументальное свидетельство господства Афин в мировом порядке. По свидетельствам современников, чтобы убедить отцов города в необходимости воплощения своего замысла, он пригрозил остроить Акрополь на собственные средства и дать ему свое имя, после чего напуганные члены совета уже ни какие суммы для строительства не считали чересчур высокими.
Вновь построенный Акрополь должен был не только воплотить представление о могуществе и величии Афинской морской державы и утвердить передовые идеи греческой рабовладельческой демократии на высшей ступени ее развития, но и выразить — впервые в истории Греции — идею общеэллинского единства. Весь строй ансамбля Акрополя времен Перикла пронизан благородной красотой, спокойно-торжественным величием, ясным чувством меры и гармонии. В нем можно видеть наглядное осуществление слов Перикла, полных гордости за культуру «сердца Эллады - Афин»: «Мы любим мудрость без изнеженности и красоту без прихотливости». Наконец, в-третьих, единство и целостность ансамбля, задуманного Периклом и отстроенного с середины до конца V в. под руководством выдающегося скульптора Фидия, были обеспечены средствами Делосского морского союза – союза городов, входивших в число персидских сопротивленцев и плативших дань в казну Афин.

План Афинского Акрополя: 1. Пропилеи. 2. Храм Ники Аптерос. 3. Эрехтейон. 4. Место расположения второго Гекатомпедона. 5. Парфенон

Афинский Акрополь. Реконструкция.
Акрополь представлял собой суровую отвесную, почти безжизненную скалу. Вход на вершину располагался с западной стороны, в соответствии с традицией греческих храмов следовать пути бога-солнца. Движение по вершине Акрополя с запада на восток означало этот путь, хотя сам подъем снизу на неприступную цитадель уже мыслился как восхождение на небо.

Мнесикл. Пропилеи. 437-432 гг. до н.э.
Вход на скалу, Пропилеи, при Перикле приобрел монументальный и торжественный облик. Архитектор Мнесикл изменил облик старых Пропилей, которые стояли под углом ко входу. Он учел рельеф скалистой поверхности и выстроил дорийское здание из пентелийского мрамора, стоящее на четырехступенном постаменте и представлявшее собой сложную систему из четырех ячеек. Внутри для оформления подъема высотой в 1,43 м было устроено пять высоких ступеней. При входе, в котором было пять проемов (средний, более широкий проезд представлял собой пандус), находились два портика с ионийскими колоннами внутри, которые стояли на красивых строгих базах, оформленных двойным валиком. Внутри были особые потолки – одни из первых каменных в Греции, обработанные нарядно и изысканно (золотые звезды на синем фоне). Интересно, что в Пропилеях Мнесикл активно использовал курватуры – искривления прямых линий для создания благоприятного впечатления от постройки, которую посетители Акрополя видели снизу в сильном ракурсе. Антаблемент и колонны Пропилей сделаны с учетом ракурса (он отодвинут вглубь, колонны наклонены), стилобат же сохраняет прямые очертания. Рисунок капителей, как наружных дорийских колонн, так и внутренних ионийских, отличается простотой и элегантной сочностью (в Парфеноне капители станут уже значительно суше). В целом Пропилеи были задуманы даже не как вход, а как целый монументальный западный фасад святилища: к боковым портикам примыкали два крыла, Пинакотека и храм Афины Ники, которые должны были венчаться фронтонами, и потому в целом западная стена могла смотреться грандиозной «геральдической формулой». Но южное крыло с храмом Афины Ники так и не было окончено, и «фасад» не состоялся.
Пинакотека, известная тем, что в ней были устроена два окна – одни из самых ранних в греческой архитектуре – использовалась для хранения пинак – небольших живописных изображений на дереве. Здесь хранились образы героев, живущих в памяти людей. Таким образом, пограничное – между жизнью и смертью –местонахождение здания говорило о воссоздании души, духа, бога в ритуалах, происходивших на Афинском Акрополе.
По другую сторону Пропилей располагался небольшой храмик Ники Аптерос – Афины Бескрылой, выстроенный архитектором Калликратом (449-421 гг. до н.э.). Афиняне шутили, что «бескрылой» они сделали свою богиню затем, чтобы она не улетела из города. Храм Ники Аптерос, с древним ксоаном богини внутри, выходил на бухту Саламин, имел собственную лестницу, позволявшую проходить в него минуя помпезные врата Пропилей, использовался для почитания павших воинов и молитв за еще воюющих. Судя по положению храма на пиргосе – высоком уступе на юго-западном крае скалы, он был связан с прамиром (отсюда царь Эгей, увидев черные паруса прибывшего с Крита Тесея, бросился в море), и был местом перехода жизни в смерть. Учитывая его ритуальное положение в юго-западной части святилища, юго-восточная часть с Пинакотекой с ее собранием образов выступала воплощением жизни.

Калликрат. Храм Афины Ники Аптерос. 449-421 гг. до н.э.
Храм Ники – изящный и маленький «храм в антах» (5 х 8 м), стоящий на отвесном пиргосе, стены которого сложены из известняковых плит; на них в особые дни вывешивались торжественные трофеи. У целлы храма нет ни пронаоса, ни опистодома, а колонны его, высотой 4 м, монолитны. Впервые в Греции здесь были использованы угловые ионийские капители.
Архитектор смело соединил разные ордера: несмотря на внешнее изящество, свойственное ионийскому ордеру, некоторые детали были утяжелены и приближены по пропорциям к дорийским.
Проходя через Пропилеи, люди попадали в волшебную точку комплекса, откуда был виден весь Акрополь. Располагаясь на линии, по которой солнце проходит с востока на запад, она открывала магическую панораму, подчиняющуюся законам 12-частной системы. Отсюда хорошо были видны все ключевые здания ансамбля. 360 º панорамы, разделенные на 12 секций по 30 º символически воссоздавали божественность Вселенной. Ключевые храмы Акрополя, размещенные на границах секций, представали в ¾ повороте
к Пропилеям, и только центральный храм - Парфенон - раскрывался максимальной частью под углом 60 º.
Особенности архитектурного образа главного храма Акрополя объяснялись сложными религиозными представлениями. Афина – наследница более ранних верований, когда жители города почитали древних хтонических богинь, среди которых были Алгавры и Артемида, унаследовала несколько всеобщих эллинских ритуалов. С ней связывали образ Ники - Победы и поэтому проводили ритуалы, символизировавшие победу над смертью, а также один раз в четыре года все греки участвовали в Панафинейских шествиях, символизировавших восстановление, возрождение смертной богини в сонме небесных бессмертных богов, для чего богини преподносили сотканный руками девочек пеплос – одежду, символизирующую новое тело богини.

Иктин и Калликрат. Парфенон. 447-432 гг. до н.э. Западный фасад.

Парфенон. План.
С ритуалами и традиционными шествиями было связано размещение и строительство храма, возведенного из местного пентелийского мрамора. Белый мрамор выглядел и роскошно, и символично. Мрамор был местным камнем и указывал на чистоту общества, кроме того он был способен приобретать на открытом воздухе кремовато-золотистую патину, которая сообщала сооружениям из него особую теплоту и человечность. Архитекторы Иктин и Калликрат задумали здание более протяженным, чем храм Зевса в Олимпии (8 х 17 колонн, 31 х 70 м), и сделали его дорийским периптером с массой ионийских деталей. Поскольку храм был отодвинут к юго-восточному краю скалы и посетители видели его отдаленным, большой Парфенон не подавлял своими размерами и «вырастал» по мере приближения к нему человека. Он стоял на трехступенном цоколе; со стороны западного фасада, который первым встречал посетителя, были прорублены частые ступени – крупные предназначались для тяжелого шага богов, мелкие – для человеческой поступи. Человек и бог входили в храм бок о бок, и эта соразмерность божественного и человеческого отзывалась во всех частях Парфенона, во всех его деталях.

Иктин и Калликрат. Парфенон. 447-432 гг. до н.э. Восточный фасад.
Величавый дорийский ордер, в котором выстроен Парфенон, имел смягченные конструктивные формы; дорийское «мужское» начало в нем гармонически сочеталось с ионическим «женским». Все формы и конструктивные части были облегчены, устройнены и приобретали возвышенный смысл парения – ведь храм был виден афинским жителям снизу, на большой высоте, и казался им взмывающим в небо. При высоте колонн, сходной с олимпийскими (10,43 м), ордер Парфенона кажется более легким. И чтобы храм не казался присевшим, прогнувшимся, раздавленным собственной тяжестью, архитекторы применили целую систему поправок: все горизонтальные членения внизу были прогнуты вверх, вверху - прогибались книзу; оси крайних колонн наклонялись к центру, их энтазис выявлялся с особой экспрессией; угловые интерколумнии были, как всегда, уменьшены, вершинные части кровли - акротерии, антефиксы, гейсоны – наклонялись вперед. Таким образом, Парфенон сжимался в себе, как пружина, распрямляясь, «выравниваясь» и освобождаясь от скованности для тех, кто видел его уже вблизи. Храм был очень большой – монументальный, но в глазах зрителя его образ был теплым и человечным.
Структура Парфенона отличалась от обычного греческого храма; у него перед входами стояло по шесть колонн и кроме традиционных пронаоса, наоса и опистодома был еще один зал с четырьмя ионийскими колоннами внутри (2 х 2), в который входили с запада. Храм, таким образом, был двусторонним: «работали» оба его фасада, западный и восточный, оба имели двери, которые вели в самостоятельные помещения. По древней традиции, посетитель должен был подходить к храму сзади и только в процессе его обхода приближаться к восточной двери. Идея кругового обхода архитектурного сооружения утверждается в храмах Акрополя с удивительной силой: храм мыслится как образ современного космоса, трехмерного пластического тела, все части которого равноценны – в философских воззрениях времени, космос обычно уподоблялся шару или яйцу. Аналогичная мысль о круговом обходе в это же время реализовывалась и в пластике – в круглой скульптуре Фидия и Поликлета.
Есть основания считать, что в Парфеноне, подобно храму Афины Афайи на о.Эгина и храму Зевса в Олимпии, имелись лестницы, ведшие наверх (или, что вероятнее, левая вела наверх, а правая вниз), - посетитель мог рассматривать статую богини сверху. В наосе, где стояла Парфенос, был также дорийский двухъярусный ордер: на колоннах большого ордера стояли колонны малого. В отличие от прежних двух храмов с лестницами, в Парфеноне двойной ордер обходил статую с трех сторон; задняя стена за спиной богини также получала свои архитектурные членения, и на этом фоне Парфенос действительно выступала в «оправе»: сзади и по бокам ее замыкала двойная колоннада. Богиня, нисходя на землю, отправляла вместо себя на небо человека; оба приобщались к двойным путям – для каждого путь к жизни оборачивался путем к смерти.
Четырехколонный зал, в который входили с запада, назывался парфенон («для девушек»), отчего и весь храм получил свое имя. Предполагают, что именно в нем две девочки-аррефоры в течение четырех лет ткали под руководством взрослых опытных женщин эргастин (работниц) праздничный пеплос для богини Афины. В самом наосе, куда входили через восточную дверь, стояла статуя Афины Девы работы Фидия. Это «раздвоение» внутреннего пространства храма на западную и восточную части, с особыми входами, присутствующее и в Эрехтейоне, наводит на мысль, что таким образом архитекторы хотели представить принадлежность его двум богам или, иначе, божественной чете: в западной обитал бог, в восточной – богиня.

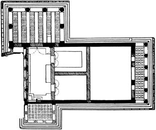
План Эрехтейона.

Эрехтейон. 421 – 407/406 гг. до н.э. Вид с запада.
О том, что такая концепция не была случайностью или следствием творческого произвола строителей, говорит Эрехтейон, мраморный храм в честь Афины и Посейдона Эрехтея, начатый в 421 и законченный в 407-406 гг. до н.э. К сожалению, Эрехтейон не сохранился в первоначальном виде. Он был сильно перестроен внутри уже в I в. до н.э. и затем, после ряда переделок в византийское время, при крестоносцах в XII в., при турках, он был окончательно разрушен в начале XIX в. и восстановлен в 1902-1907 гг.
Исключительно сложную и, если можно так выразиться, центробежную его структуру, не свойственную другим классическим зданиям (за исключением разве что Пропилей), ученые объясняют стремлением охватить в нем многовековую систему культов, развившихся на этом участке. Вместе с тем архитектурный язык Эрехтейона, явно более поздний, чем Парфенона, говорит, что в нем воплотилась идея, созданная на исходе V в. до н.э., когда Афины уже пережили свою акме. Мастера, принимая в расчет сложившуюся к тому времени архитектурную ситуацию, поставили не новый периптер, как то было с храмом Зевса в Олимпии, а совсем иную, причудливой формы постройку, раскрывавшуюся во все стороны своими сакральными формами.
Асимметричное здание имело три разных портика, поставленных на разных уровнях. На востоке стояло шесть ионийских колонн, на севере – глубокий портик, возможно служивший самостоятельной сакральной частью; его колонны тяжелее и шире расставлены, и к тому же он необычно выступал за пределы храма на запад. На западном фасаде некогда стояли четыре колонны на антах, но со временем промежутки между ними были заложены и колонны превратились в полуколонны, а стена перестала дышать. Эти колонны стоят на высоком цоколе перед Пандросейоном с его знаменитой священной оливой. Западный фасад храма выглядит очень сложным: его глухая ныне стена фланкируется двумя разномасштабными портиками, из которых северный выдвигается вперед, к священному участку с оливой, а южный, оформленный статуями кариатид, напротив, имеет уменьшенный размер и совсем иную конфигурацию. Этот портик из шести статуй-колонн приставлен к глухой южной стене здания, сложенной из крупных квадров мрамора: ее оживляет только легкий растительный фриз-анфемий, проходящий по верху стены и венчающий фриз; последний необычен: к черному фону элевсинского мрамора прикреплены беломраморные фигуры. Портик Кариатид, не доходящий до венчающей части стены, сдвинутый к западу, стоит над «могилой Кекропса», найденной археологами у юго-западного угла здания. Величавые девы с пышными волосами, несущие ойнохои и фиалы, застыли в вечном круге ритуальных либаций, которые они совершают в честь «солнечного» бога-отца.
Все детали Эрехтейона, будь то базы ионийских колонн, дверные проемы с наличниками, стоящими на консолях, потолки, фризы, капители, - отличаются необычайным изяществом.
Внутри храм (11,6 х 23,5 м) делился поперечной стеной на восточную и западную половины, с самостоятельными входами. Восточная принадлежала Афине – в ней находился светильник с вечным огнем, оформленный Каллимахом в виде золоченной бронзовой пальмы; западная часть храма, на 3 м ниже восточной, - Посейдону Эрехтею; в этой части находилось «Эрехтеево море». Посейдонова часть внутри также делилась надвое: одна половина принадлежала Посейдону, другая, по словам Павсания, - Гефесту и Буту, местному герою, от которого вел свою историю род Бутадов, здесь стоял алтарь, на котором приносились им жертвы, а в Бутовой части были «картины». В ней, как в Пинакотеке, «собирались образы» героев прошлого, возрождались мужские души; впрочем, теперь живописные памятники становятся едва ли не обязательной принадлежностью греческих храмов.
Афинина часть была более короткой, компактной – в ней воплощался минойский принцип эпифании. В мужской царила традиционная идея пути.
Не известно, сообщались ли в древности наосы Афины и Посейдона, но есть свидетельства, что в храме жила собака, которая свободно перемещалась внутри храмов и спала на алтаре Зевса, символизируя Сириус – ярчайшую звезду южного полушария, которую греки считали «маленьким солнцем»; во время Великих Панафиней в Афинах богиню считали не только воплощением луны, но и звезды Сириус. Такой «египетский» поворот ритуала указывает не только на догреческое происхождение праздника, но и на уникальность Эрехтейона: если в его стене был проем для прохода собаки, то он был единственным в классической Греции храмом, где бог и богиня «сливались пространственно», а не только в ритуалах и мифах.
Чрезвычайная насыщенность смыслами всех частей Эрехтейона не сделала его собранием разнородных построек: они соединились в уникально-сложную систему, поражающую своим неординарным изяществом. Здание, несмотря ни на что, остается пока еще цельным, но отмеченное в нем расхождение внутреннего содержания и внешнего облика предвещает конец эпохи гармонии.
Трудно сказать, как воспринимался ансамбль Акрополя в древности. Проходя через Пропилеи на площадь, посетитель видел справа и слева два разных храма: большой строгий Парфенон и живописный асимметричный Эрехтейон. Различие их обликов – маленького пластичного Эрехтейона и монументального геометрического Парфенона – скрадывалось не только за счет того, что Эрехтейон выходил на площадь глухой стеной (с портиком Кариатид), но и благодаря доминанте, поставленной между ними Фидием, огромной бронзовой статуе Афины Промахос (высота 12 м). Эта Воительница имела строгие обобщенные формы и темным блеском своей фигуры «разъединяла» оба храма, «соединяя» их вновь своей монументальной пластикой. Промахос как мужеподобная дева, предстающая во всем ее грозном величии, воплощала нерасчлененный хаос, который при дальнейшем лицезрении площади распадался на «мужское» и «женское». Внешне «мужским» выступал Парфенон со строгой графикой его контуров, «женским» - изящный Эрехтейон; хотя в сакральной топографии все было иначе, а в системе интерьерной структуры, в каждом храме предполагалось почитание двух богов – супружеской четы. Промахос связывала центр Акрополя с морем, отстоящим от Афин на шесть километров; золоченный кончик ее копья был виден морякам, прибывающим в гавань Пирея. Несмотря на то, что оба храма виделись посетителям внутри сложно разгороженной чащи памятников и оград, все части ансамбля акрополя были строго продуманы и связаны с целым.
В заброшенном уголке Пелопоннеса среди покрытых редким лесом гор в конце 430 гг. до н.э. архитектором Иктином был выстроен еще один уникальный классический памятник архитектуры – храм Аполлона в Бассах. Он посвящался освобождению людей от моровой болезни и чествовал Аполлона Эпикурия (Попечителя) Спасителя.
Здание выстроено из голубоватого мраморовидного известняка в дорийском ордере (6 х 15 колонн) с применением внутри двух других ордерных систем. Ориентация его нетрадиционна: торцами он выходит на север и юг, длинными сторонами – на восток и запад. Неясно, что побудило архитектора к отступлению от сакрального канона. Полагали, что до Иктина здесь стоял небольшой старый храмик, который он стремился сохранить и включил в свое здание на правах особой ячейки. Эта ячейка, южная часть наоса, имела дверь, открывающуюся на восток, - первый луч света мог попадать на культовую статую бога, стоявшую в интерьере. Однако «нормальный» вход в храм находился на севере. Интерьер тоже был необычен. Поскольку наос был двойным (что связывает этот храм с Парфеноном), южная узкая часть, освещавшаяся светом восходящего солнца, примыкала к большой северной, но между ними не было прочной стены: разделяла эти части колонна, исполненная в коринфском ордере, - одна из самых ранних коринфских в Греции (ее изобретателем считался Каллимах). Коринфский ордер был модификацией ионийского: с более стройными пропорциями и капителью в виде корзинки аканфовых листьев: изящный облик капители ассоциировался у Витрувия с девушкой. Кроме того, северный наос имел выступающие из стен перегородки, членившие пространство на отдельные ячейки, - архаическая черта, отмечавшаяся прежде в храмах Геры в Олимпии и Аполлона в Коринфе. В Бассах отрезки стен оформлялись ионийскими полуколоннами, причем последняя пара выгородок была скошена внутрь. Таким образом, в этом храме, как в Парфеноне, но еще в большей степени, сочетались разные ордера.
Античные свидетельства приписывают Иктину еще одну замечательную постройку, к сожалению, не реализованную в авторском виде, но очень характерную для высокой классики и совершенно особую в греческом искусстве. Это здание для проведения мистерий в Элевсине.
Элевсинские таинства происходили из древнего религиозного обряда, выдвигавшего идею возможности прижизненного приобщения к смерти. Они связывались с традицией земледелия и отмечались ежегодно осенью в Элевсине – священном центре, находившемся в 30 километрах к юго-западу от Афин.
Положенный в основу Элевсинских мистерий миф гласил, что как-то Кора, собирая с подругами цветы на берегу океана, была похищена богом загробного царства Аидом. Ее похитили с согласия Зевса-отца, но Деметра ничего об этом не знала и день за днем искала дочь, обходя все края и земли, пока, наконец, богиня Геката, ночной двойник Артемиды-луны, не подсказала ей обратиться к богу солнца Гелиосу. Узнав от него о похищении, разгневанная Деметра повергла мир в голод и засуху, пока не нашла свою дочь и пока Зевс не гарантировал ей, что та будет проводить две трети года на земле и только одну треть – в Аиде. Этот земледельческий миф был связан с осенним ритуалом озимого сева и отправлялся в равнинном Элевсине, вокруг которого простирались Рарийские поля. Многодневные мистерии, вероятно, связывались с днем осеннего равноденствия, а нахождение Коры Деметрой – с рождением на небе новой луны, которая была видна сквозь гипетральную – открытую в небо – кровлю Элевсинского храма.
Телестерион Иктина был в плане почти правильным квадратом; здание примыкало с запада к скале, в которой на уровне половины его высоты была высечена терраса. Возможно, с трех других сторон его окружала колоннада. По обоим концам террасы в скале были высечены лестницы, ведшие к стилобату, - вокруг здания был задуман широкий обход. Внутри Телестериона по периметру стен было устроено восемь рядов узких ступеней, отчасти высеченных в скале еще при правителе Кимоне, ок. 465 г. до н.э.. На них стояли зрители, созерцая действо, происходившее в центре зала. Вместо леса колонн старого храма (семь рядов по семь колонн) планировалось только 20 (4 ряда по 5 колонн); перекрытие явно было деревянным. Крышу и галереи, расположенные над местами для зрителей, поддерживали двухъярусные колоннады. Вероятно, на галереи попадали с описанной западной террасы. Предполагают, что кровля была пирамидальной, с отверстием в центре. Центральная часть Телестериона, где происходило действо, могла отгораживаться от зрителя занавесами.
По-видимому, здание не достроили и строители частично вернулись к прежнему плану: наружной колоннады не возвели, крыша осталась двускатной (ее конек шел по оси запад-восток). Здание рас ширили в сторону скалы и снабдили его внутри 42 колонами (6 рядов по 7 колонн). В середине IV в. до н.э. к нему пристроили с востока двенадцатиколонный портик, который так и не был закончен.
Многострадальная история Телестериона показывает, что Иктин пытался придать зданию для посвящений особый духовный смысл: внутреннее пространство сделал более ясным и цельным, устроил, как в Парфеноне, «лестницу в небо», а световым фонарем открыл «путь» в реальные небеса. Кроме того, Иктин связал свое совершенное (квадратное) здание со скалой. Интерьер, в котором отправлялся ритуал умирания-воскрешения, мыслившийся в космогонических воззрениях как первобытная толща вод (а в аграрных мифах как подземное царство) он связал с внутренностью горы. «Загробное» действо, таким образом, стремилось уйти из искусственной постройки в реальную гору, в самое лоно ее. При всей отточенности мысли архитектора, его здание мало было похоже на храм, и потому Иктин стал тяготеть к связи архитектурного образа с природной горой. Это можно расценивать как знак потери греческим храмом своего былого спасительного значения.
Передовая архитектурная мысль получила выражение не только в сооружении отдельных, выдающихся своими художественными качествами зданий, но и в области градостроительства. Впервые в эпоху Перикла была широко осуществлена правильная (регулярная) планировка городов по единому продуманному замыслу. Так была, например, распланирована военная и торговая гавань Афин — Пирей.
В отличие от большинства более древних греческих городов в Пирее мощеные улицы одинаковой ширины шли строго параллельно друг другу; под прямым углом их пересекали поперечные, более короткие и узкие улицы. Работы по планировке города были (не ранее 446 г. до н.э.) проведены архитектором Гипподамом из Милета — выходцем из малоазийской Греции. Восстановление городов Ионии, разрушенных во время войны персами, поставило перед зодчеством задачу строительства по единому плану. Здесь и возникли первые в истории архитектуры опыты общей планировки, на которые опирался в своей деятельности Гипподам. Главным образом планировка сводилась, как это было и в Пирее, к общей разбивке кварталов, причем при планировании улиц учитывался характер рельефа местности, а также направление ветров. Определялись заранее также и места расположения основных общественных зданий. Жилые дома Пирея были невысокими зданиями, выходившими на улицу глухими стенами, а внутри имевшими дворик с портиком на северной его стороне перед входом в жилые помещения. Эти жилые дома были относительно единообразны: в населенном свободными гражданами полисе V в. до н.э. не было того разительного неравенства, которое было характерно для позднейших городов эллинистического и римского времени.
В Афинах и при Перикле сохранилась старая, нерегулярная планировка. Но город украсился многочисленными новыми сооружениями: крытыми портиками (стоями), дававшими тень и защиту от дождя, гимназиями — школами, где богатые юноши обучались философии и литературе, палестрами — помещениями для обучения мальчиков гимнастике и т. д. Стены этих общественных учреждений нередко покрывались монументальной живописью. Так, например, стены стойи Пойкиле, то есть «Пестрой» стойи, были украшены фресками знаменитого живописца середины V в. до н.э. Полигнота, посвященными темам Троянской войны и другим мифическим и историческим эпизодам. Все эти здания были сооружены по решению народа для удовлетворения его потребностей. Граждане Афин широко пользовались своей общественной архитектурой.

Афинская стойя. Интерьер.
Эпоха поздней классики – последняя, самая драматическая глава эллинского творчества. Начало поздней классики датируют по-разному: 425 г., 410 г., 400 г. до н.э.. не акцентируя специально этот момент, будем условно считать границей последнюю, нижнюю дату.
В IV в. до н.э. Эллада приобрела новый лик. Строились новые города, художественная жизнь по интенсивности не уступала творческому духу предыдущего столетия. Но Афины, оставаясь центром искусств, потеряли блистательность и силу. После поражения в Пелопонесской войне, город был охвачен какой-то странной духовной прострацией, в Афинах почти ничего не строили - архитектурная мысль двинулась в Пелопоннес, центр формирования новых идеалов, а также в Малую Азию, где началась эпопея роскошной реставрации древних храмов.
В Пелопоннесе был построен новый город Мегалополь (Великий город), окруженный со всех сторон стеной и созданный с широким применением утвердившейся еще в конце V в. до н.э. Гипподамовой системы – правильной планировки, при которой сеть улиц и площадей подчинялась прямым линиям. В живописных старых застройках, как, например, в скалистых Афинах, такое решение трудно было воплотить в жизнь, но в равниной части Аркадии это осуществилось. В городе были храмы, многочисленные общественные здания, включая огромный трехъярусный театр, рассчитанный на 44 тысячи зрителей. Этот пример позднеклассического города уникален для Греции и еще требует своего осмысления.
Трагедия как жанр окончательно оформилась на рубеже VI-V в. до н.э. – она стала одним из знамений ранней греческой классики, с ее суровым столкновением представлений о жизни и смерти. Смысл трагедии заключался в воспроизведении ритуальной борьбы матери с сыном за их «разделение». Мать, олицетворение жизни, представлял хор (в ранних трагедиях женщин и девушек, потом и мужчин – все роли исполняли мужчины); сына, воплощение смерти, представлял актер, выделившийся из хора корифей-запевала. Между ним и хором завязывался словесный агон, который приводил к символической гибели актера, на самом деле означавший его воскресение (отдельное от матери существование). Трагедии и сатировы драмы ставились в честь бога Диониса на праздниках, связанных с его смертью-возрождением. Сначала это были праздники зимнего солнцестояния, сохранившиеся под названием Малых, или Сельских, Дионисий, потом тоже зимние Ленеи, и лишь в V в. до н.э. драматические агоны окончательно закрепились за пышным весенним праздником Великих Дионисий, которые справлялись в марте-апреле, в месяце Элафеболионе. В V в. до н.э. представления давались уже не на временно сооружаемых подмостках, где-нибудь на рынке – агоре, а в специально устроенном театре, со ступенями театрона, высеченными в склоне холма, орхестрой, на которой находились хор и актер, и скеной – местом для переодевания актеров и смены масок.
Из построенных в Греции театров одним из самых красивых был театр Диониса в Афинах на склоне Афинского Акрополя.

Театр Диониса в Афинах. Конец V в. до н.э. – 338-326 гг. до н.э.
Из построенных в Пелопоннесе храмов самым красивым и значительным, по мнению самих древних, был храм Афины Алеи в Тегее, выстроенный архитектором Скопасом взамен старого, сгоревшего ок. 395 г. до н.э. Храм сохранял вытянутые пропорции высококлассических зданий (6 х 14 колонн), но внутренне отличался от них. Интерьер по традиции был трехчастным (пронаос, наос и опистодом), но целла, аналогично храму в Бассах и его предшественникам, членилась выступами; правда, это были не короткие простенки, украшенные ионийскими полуколоннами, как в Бассах, а полуколонны, по семь с каждой стороны, выходящие непосредственно из стен. Тем самым «компартименты» устранялись, пространство становилось более единым; перемены означали, что утвердившийся тип трехчастной целлы переживает кризис: все снова сливается в некое «хаотическое» единство, а свободно стоящие колонны «уходят в стены», оставляя следы былого пребывания в виде полуколонн. Причем, как в Бассах, и здесь было два входа в целлу (второй, со своей вымосткой, был северным; аналогичная «двойная» ориентация была в пелопоннеском храме в Лусах), но интерьер не делился, как там, на две обособленные зоны. Еще одна черта, встречавшаяся ранее в храме Зевса в Олимпии: внутреннее пространство было занято культовым образом, помещавшимся на широком постаменте: рядом с древним ксоаном Афины стояли новые статуи работы того же Скопаса – Асклепий и Гигиея, создавая впечатление, что древний «андрогин» зримо распался здесь на два «космических» начала. Характерно, что храм сделал скульптор, ваятель: его конструктивность уступает место пластике, и в нем огромную роль играет храмовая статуя.
Новую роль храма в позднеклассической Греции позволяет понять и новая структура святилища, какой она предстает в Эпидавре. Святилище Асклепия в Эпидавре, ок.380-330 гг. до н.э., - одно из немногих и единственное значительное из выстроенных в IV в. до н.э. в Балканской Греции. Примечательно, что посвящается теменос теперь не олимпийскому богу, а богу-целителю (каким выступал уже Аполлон в Бассах), связаному с народной религией. Асклепий в тотемистическом прошлом бог-крот, в олимпийской религии считался сыном Аполлона и Корониды.
Его священный участок в Эпидавре расположен в живописной долине у скалистых холмов. Проходя через Большие пропилеи, посетитель видел перед собой сначала повернутый к нему боковой стеной храм Асклепия, затем в стороне – длинный стадион, потом две квадратные в плане постройки: гимнасий и катагоний, дом для приезжающих. За помощью к Асклепию стекались греки со всей Эллады, и потому здесь нужны были особые помещения для приема. Катагогий представлял собой огороженный и разбитый на четыре сектора квадратный двор, из которого вели входы в маленькие комнатки для постояльцев, в углу каждого двора были туалеты-латрины. Характерна огороженность и замкнутость как всего комплекса для постояльцев, так и каждой его ячейки. И сама «гостиница» - явление новое для греческого святилища. Подворья для паломников, портики и пропилеи, дополнявшие «гостиничный комплекс», были живописно разбросаны вокруг. На севере ансамбль замыкался двухнефным ионическеим портиком, длиной около 70 м. Такой огромный портик тоже раньше мог появиться где-нибудь в общественном месте – например, на агоре, - но не в святилище.
Собственно храм Асклепия, работы архитектора Феодота, был возведен около 380 г. до н.э. Он, ныне, совершенно разрушенный, представлял собой сравнительно небольшой дорийский периптер с укороченными длинными сторонами (6 х 11 колонн); опистодома у него, как и у ряда других поздних храмов (например, в храме Зевса в Немее) не было. Выстроенное из туфа здание стояло на известняковом стилобате. Оба его фронтона были украшены скульптурой, изваянной из пентелийского мрамора; западный изображал амазономахию, восточный – кентавромахию или гибель Трои. В наосе стояла хрисоэлефантинная статуя сидящего Асклепия с собакой у ног; работы Фрасимеда Паросского. Наличие маленького храма Артемиды говорит, что в священном комплексе, как и прежде, фактически почиталась пара богов, тем более что алтарь стоял между храмами.
Но кроме обычных храмов в комплекс входила Фимела – круглое здание типа толоса, построенное Поликлетом Младшим. Толос имел диаметр 22 м и стоял на трехступенном основании; снаружи его украшали 26 колонн дорийского ордера, изнутри – 14 коринфских, необычайно красивых пропорций и с великолепно исполненными, лучшими в IV в. до н.э. коринфскими капителями. паримечательно, что наружные метопы не имели рельефного декора: каждая украшалась по центру лишь небольшой розеткой. У этого здания были изящные симы с львиными головами, разделенные пальметтами и украшенные не только росписью, как было принято раньше, но и рельефной порезкой. Также антаблемент был внутри обильно украшен порезкой. Фимела была выстроена из паросского и пентелийского мраморов, а пол выложен черно-белыми мраморными плитами. Под землей обнаружилась субструкция в виде концентрических колец или, как считают другие, кругового лабиринта. Очевидно, это было древнейшее жилище бога-крота. В нижний подземный ярус, диаметром 7 м, можно было проникнуть, отодвинув центральную светлую плиту пола. Фимела была украшена картинами, одна из которых, работы сикионца Павсия, описана в источниках: это исполненное в технике энкаустики изображение женщины, пьющей воду из прозрачной чаши.
Фимела имеет другие аналогии в архитектуре IV в. до н.э.: толос в Дельфах и Филиппейон в Олимпии, выстроенный Филиппом Македонским после 338 г. до н.э., когда им была одержана победа над афинянами и беотийцами в битве при Херонее. Филиппейон, представляя внешне риторический памятник славы; внутренне оставался ритуальной постройкой. Он тоже стоял на трехступенном основании и был украшен колоннадами снаружи и внутри (снаружи 18 ионийских колонн, внутри – коринфские полуколонны, шедшие в два яруса). В его интерьере стояли статуи обожествленных людей – представителей македонского царского дома. Возведение этого толоса в олимпийском святилище означало, что и здесь идея периодических смертей – рождений бога вытеснена новой мыслью о его вечной жизни.
Равнинные постройки Эпидавра, сколь ни свободно и живописно они сгруппированы, составляют единый комплекс, в стороне от которого, врезанный в уступ высокой скалы, стоит театр. Красивейший из греческих театров, он был создан также Поликлетом Младшим. Театры как станционарные сооружения, заменившие временные помосты, стали широко строиться с конца V в. до н.э. Греческий театр всегда врезался полукругом (или частью круга) в естественную скалу, образуя несколько концентрических рядов сидений, разделенных на секторы. Внизу по центру располагалась частично круглая площадка – орхестра, на которой поначалу стояли хор и актеры; разделившись с течением времени на обособленные группы, они стали выступать в разных локусах (местах): хор по-прежнему на орхестре, а актеры на проскениуме – пристройке к скене, заднему строению, замыкавшему вид на орхестру; в ней актеры переодевались и меняли маски.
Образ греческого театра целиком соответствовал его функции: он моделировал собой нижний мир, в котором происходил словесный поединок двух героев, воплощавших смерть и жизнь. Зрители, сидевшие на ступенях театрона, причащались к жертвенному действу, возрождаясь вместе с умершим – во время представления раздавали поделенное на части мясо жертвенных животных.
Театр в Эпидавре имеет двойной концентрический ряд сидений, составлявших более половины круга, с высоким первым и более низким вторым ярусом, с удвоенным числом секторов. Орхестра в нем уже была совсем круглой. План театра в Эпидавре выглядит как изображение взошедшего над горизонтом солнца, что вполне соответствует смыслу проходивших в нем представлений.

Поликлет Младший. Театр в святилище Асклепия в Эпидавре.
Точно рассчитанные пропорции, красота компоновки театрона с орхестрой (в скене с проскением еще не было достигнуто полное согласие с остальными элементами здания – решение будет найдено только в римское время), умелое сочетание конструкции с живой природой делают театр в Эпидавре совершенным в своем роде образцом. Верхние ряды его сидений осенялись крепкими дубами и находились настолько высоко над окружающей равниной, что с них открывался вид и на нижние постройки святилища, и на далекие окрестности. Человек, находившийся в театре, видел мир с высоты, панорамно, как воспарившая над землей птица.
Это обстоятельство позволяет думать, что роль театра в Эпидавре была глубоко переосмыслена. Если раньше театр держался близко к земле, поскольку он моделировал «разговоры» в подземном мире, то теперь он, напротив, возносится вверх, оставляя внизу храм бога. Кроме того, театр отрывается от святилища, которому он принадлежит, обособляется от него, выходит за его пределы. «Низ» и «верх» меняются местами, и ритуал возрождения бога в обычном понимании теряет смысл. Набирают силу народные, общинные формы «причастия», причем формы, в которых нужно было не действовать, а созерцать – как и в случае с новой культовой статуей бога. Гора доминирует над долиной, театр над храмом, небо над землей. Мысль, сознательная и подсознательная, торжествует над деянием – тайные и скрытые формы бытия, открывающиеся лишь умственному взору, предпочитаются прежним явным, и даже кажется, что театрон в Эпидавре подавляет орхестру со скеной не только массой, но и значимостью. Зрители – важнее актеров с их масками и переодеваниями, и то, что они зрят – а значит, ведают и понимают, - важнее архаической игры в оживших мертвецов.
Не случайно огромный театр в Мегалополе уже совсем не входил в систему святилища. Напротив, он был скомпонован в «геральдической схеме» с Ферсилионом – прямоугольным (близким к квадрату в плане) зданием для заседаний совета 10 тысяч аркадян. Оба здания соединялись колонным портиком, примыкавшим к театральной скене. Ритуальное здание, каким по происхождению был театр, сосуществует, таким образом, с профанным – залом заседаний. Совершенно ясно, что здание совета не что иное, как филиация театра, и не случайно их структура очень близка. Ферсилион имеет свой центр, сдвинутый к колоннаде-портику; «лучевая система», направленная к нему, вторит «лучевой системе» секторов театра, а ступенчатые места для заседающих, обходя здание с трех сторон, вторят циркульным ступеням тетра, тоже не составляющим полного круга; причем и Ферсилион также имел два яруса мест: на первый входили через нижние входы (их было три), на второй – через верхние (их было шесть). Различие лишь в том, что театр – открытая постройка, хотя и моделирует подземный мир, а Ферсилион – закрытая, хотя воспроизводит мир земной. Опять все акценты переставлены, и только круг театра, противопоставленный прямоугольнику здания совета, напоминает об истоках.
Итак, в середине IV в. до н.э. театр, становясь независимой постройкой, выходит за пределы святилища. Это значит, что и вся система святилища обмирщается – обмирщается каждый его элемент.
Изменения, затронувшие храмы этого времени, хорошо проявились в реставрации храмов ионийской и малоазийской Греции. Реставрационная и реконструкционная работа – важнейшая для греков в поздней классике – имела свою специфику, поскольку была связана с повторением старого обветшавшего или утраченного образца. С большим размахом отстраиваивается храм Артемиды в Эфесе, на месте сгоревшего в 356 г. до н.э. старого здания. Около 340 г. до н.э. сооружается храм Афины Полиады в Приене, архитектором которого называют Пифея, одного из создателей Галикарнасского мавзолея. Чуть позднее начал возводиться, тоже на месте старого здания, огромный храм Аполлона в Дидимах близ Милета – его строили чуть ли не три столетия. Долго не завершалось и строительство крупнейшего ионийского псевдодиптера – храма Артемиды в Сардах, древней столицы Лидии, начатое после пожара, имевшего место ок.325 г. до н.э. Все эти постройки были выполнены в ионийском ордере, но, поскольку их строительство продолжалось и далее, завершены они были только в эпоху эллинизма.
Огромные размеры, пышность и великолепие декора, диптеральные птероны – двойные наружные колоннады – отличают восточногреческие храмы от прочих. Как и в прежнее время, в этих храмах сохранялись очень глубокие портики и пронаосы, иногда достигавшие половины длины целлы, основания колонн украшались рельефами, как в храме Артемиды в Эфесе, и, новая черта в поздней классике, - в отдельных храмах, как, например, в приенском, отсутствовала фронтонная скульптура.

Храм Артемиды в Эфесе. Реконструкция.
Деструктивные процессы, проявившиеся в греческой жизни со времени Пелопонесской войны, не могли не отразиться в искусстве. Как только полис проявил первые признаки заката – сразу же общественно-значимые ценности начали тесниться частными. Храм утратил свои позиции – гробница подхватила их. Жизнь перестала казаться вечной – на первый план выступила смерть. Материальное начало космоса обнаружило свою недолговечность – духовное набрало силу. В это очень сложное для Греции время, и почти совершенно кризисное для Афин, особую силу приобрело мемориальное искусство.
В конце V - начале IV в. до н.э. в Греции сформировалось такое своеобразное явление, как гробница-храм. Оно свидетельствовало о том, что бог, столь мучительно приобретавший свое бессмертие, стал снова терять его и понадобились новые формы искусства для восстановления божественного статуса. Поэтому и храм, созданный для ритуала возрождения, подвергся переосмыслению.
Новый тип постройки мемориального характера ведет свою историю от афинского Эрехтейона. Он распространяется прежде всего в греко-римских регионах Малой Азии, где всегда было сильно влияние Ближнего Востока. Гробницы-храмы строятся не для очеловеченного бога, а для обожествленного человека. Теперь в храме вновь стало возможно появление могилы, а гробница стала притязать на облик храма.
Один из ранних примеров симбиоза – «Львиная гробница» в Книде, поставленная воинам, павшим в войне 394 г. до н.э. Она представляла собой монументальный памятник, в котором на массивном кубическом цоколе стоял глухой кубический храм с дорийскими полуколоннами. Пирамидальная ступенчатая кровля, очень важный элемент здания, загадочно похожий на шумерский зиккурат, был увенчан статуей льва. Внутри купольное пространство – единое и цельное; план на уровне цоколя имел ульевидную форму, на уровне собственно храма – круглую. В этом памятнике все было замечательным: и ступенчатый базис, и классическая форма антаблемента (архитрав, фриз, карниз), и полное отсутствие скульптурного декора. Лежащие на надгробиях львы, широко известные и на Древнем Востоке, и в Греции, здесь впервые увенчали архитектурное здание. Возникало ощущение, что лев, лежащий на собственном, индивидуализированном и очень греческом постаменте, с хорошо рассчитанными пропорциями и профилями, представлял собой «памятник на памятнике»: вся нижележащая структура воспринималась как богатый постамент для него. Лев, издавна связанный с образом солнечного бога (вспомним Большого сфинкса в Гизе, направленного на восходящее солнце в созвездие Льва), вознесенный над храмом, архитектурно воссоздавал путь своего вертикального восхождения на небо.
Еще один синкретический образ гробницы-храма, самый грандиозный и импозантный, представлял Галикарнасский мавзолей, работы архитекторов Пифея и Сатира, ок. 360-350 гг. до н.э. Памятник предназначался для обожествленного правителя Карии Мавсола и его супруги Артемисии, и был завершен Артемисией уже после смерти Мавсола в 353 г. до н.э. Размеры этого грандиозного монумента - (66 х 75 м), он представлял собой высокое башнеобразное сооружение, с сильно укороченными боковыми сторонами, впрочем, план его не был квадратным: на коротких сторонах было по девять колонн, на длинных – по одиннадцать. Он также стоял на цокольной гробнице, продолжающей расти в высоту и, кроме того, приобретшей ступенчатость; ступени незначительно разнились по ширине и значительно – по высоте: третий ярус был выше всех. Доминанта «зиккуратной» кровли в «Львиной гробнице» была заменена доминантой цоколя: он теперь занимал половину высоты сооружения. Вместе с тем ступенчатость гробницы была знаком того, что она усвоила форму зиккурата: она сама стала образом «мировой горы»: формы множились, ветвились, редуплицировались. Вероятно, многочисленные фризовые пояса, которые были исполнены четырьмя греческими мастерами – Скопасом, Тимофеем, Леохаром и Бриаксидом, дожны были объединить все семь ярусов в единое целое. Венчали гробницу скульптуры Мавсола и Артемисии в квадриге с лошадьми – богов в человеческом облике.
В Галикарнасском мавзолее наглядно был показан вертикальный путь умершего-солнца. В гробнице-цоколе он умирал, в храме совершал «переход», по ступенчатой кровле восходил на небо, где двигался в квадриге (знаке солнечного бога) по небесному пути. Венчание могилы скульптурой возрождало древнюю идею курганов IV-III тыс. до н.э. с их «каменными бабами». Здесь, в Малой Азии, в малоазийско-греческом всплывало догреческое и собирались разные формы из разных традиций, некогда вышедших из единых корней: курганный тип захоронения южноукраинских степей, месопотамский зиккурат как его искусственная форма, башенные гробницы Переднего Востока (с глухим цоколем), греческий периптер и греческая круглая скульптура. Все было составлено и восстановлено в новой форме древней погребальной мысли.
Еще одну характерную для поздней классики форму гробницы-храма представляет героон, открытый в Гёльбаши-Трисе, в Ликии. Памятник местному правителю выразился в идее саркофага, окруженного священным участком, который представлял собой двор неправильной четырехугольной формы (со сторонами от 24,5 до 19,7 м). В самой узкой стене был вход, против которого углом стоял саркофаг. Теменос был огорожен каменной стеной высотой 6,4 м, сплошь украшенной изнутри размещенными в два яруса рельефами на мифические темы.
Неизвестно, находился ли здесь алтарь и отправлялся ли культ в честь героя, как то бы принято в Греции, или же здесь были иные формы почитания покойников. Судя по структуре теменоса, в Трисе, как в прежних храмовых гробницах, предпочитались внешние формы чествования умершего. Замкнутость участка, сплошная украшенность ограды изнутри и несоответствие ее по высоте сравнительно небольшому саркофагу наводят на мысль, что этот особый теменос воспроизводил в увеличенном размере погребальную камеру, со снятой крышей. Камера, з






