Обогреваемые полы известны почти столько же, сколько существует централизованное отопление. В начале XX в. с появлением насосов началось применение «теплых» полов с использованием горячей воды. С середины столетия при относительно доступной электроэнергии начали распространяться системы с использованием нагревательных электрокабелей. В последние годы они стали применяться достаточно широко.
Напольное отопление на основе нагревательных электрокабелей. В состав системы «теплый пол» входят:
- нагревательная секция;
- аппаратура управления (термостат с датчиком температуры);
- монтажные аксессуары;
- теплоизоляция.
Типичная конструкция «теплого пола» представлена На выровненном черновом полу укладывается теплоизоляция, затем закрепляется нагревательная секция с помощью монтажной ленты (возможны и другие варианты). «Холодные» концы выводятся на стену для соединения с термостатом. Определяется место установки термостата и вблизи этого места укладывается между двумя нитками нагревательного кабеля гофрированная трубка для установки датчика температуры.
|
|
|
Типичная конструкция «теплого пола»

1 – черновой пол (плита перекрытия); 2 – теплоизоляция; 3 – монтажная лента; 4 – нагревательная секция; 5 – цементно-песчаная стяжка; 6 – покрытие пола
Схемы укладки нагревательных секций с использованием:
| одножильного кабеля | двухжильного кабеля |
| |
1 – нагревательный кабель; 2 – «холодные» концы; 3 – соединительные муфты; 4 – трубка для датчика температуры; 5 – датчик температуры; 6 – конечная муфта
Затем выполняется заливка цементно-песчаной стяжки. Специально для стяжек обогреваемых полов выпускаются готовые сухие смеси, которые обладают повышенной теплопроводностью, хорошей пластичностью, достаточно высокой твердостью. Толщина стяжки должна быть не менее 30 мм, исходя из требований прочности и СНиП, ДБН.
Очень важны выбор и устройство теплоизоляции. Использование теплоизоляции позволяет сэкономить до 30-40% эксплуатационных расходов, к тому же это необходимо в случае использования системы «теплый пол» как основной и единственной системы отопления. В этом случае наиболее целесообразным является использование плотных пенополистирольных плит толщиной 5-10 см (если позволяет структура пола). Поверх плит укладывается плотная бумага и устраивается «плавающая» стяжка.
Конструкция обогреваемого пола с использованием «плавающей» стяжки

1 – перекрытие; 2 – стена; 3 – вязкий слой (битум и т.п.); 4 – теплоизоляция; 5 – нагревательная секция; 6 – датчик температуры; 7 – «плавающая» стяжка; 8 – покрытие.
При устройстве обогреваемых полов в существующих помещениях иногда невозможно уложить толстый слой теплоизоляции. В подобном случае применяются фольгированные теплоизоляционные материалы (отражающая изоляция) толщиной 3-10 мм. Необходимо использовать только материалы, дублированные поверх фольги лавсаном. Иначе фольга разрушится под воздействием щелочной среды в стяжке.
|
|
|
Кабели. Основой конструкции «теплых полов» с использованием электронагревательного кабеля (НК) является он сам. Назначение кабеля – преобразовывать протекающий по нему электрический ток в тепло.
Термостаты. Существуют различные виды термостатов для обогреваемых полов: комнатные – с датчиков температуры пола и воздуха, программируемые, встраиваемые в шкафы, с исполнением монтажа под сухую штукатурку и другие.
Существуют особые системы «теплых полов»:
- с использованием саморегулирующих кабелей;
- теплоаккумулирующие;
- для покрытий пола большой толщины;
- для больших по площади помещений;
- сверхтонкие и пленочные.
При устройстве обогреваемого пола должен соблюдаться ряд требований, после чего установленная система становится электро- и пожаробезопасной, а именно:
- использование только экранированного нагревательного кабеля;
- наличие заземления в квартире (доме);
- установка устройства защитного отключения (на входном щитке, шкафу);
- выполнение разводки питания отдельно от осветительной сети;
- выполнение установки оборудования квалифицированным специалистом.
Система низкотемпературного напольного водяного отопления применяется для жилых, административных, складских, производственных, выставочных и других общественных зданий.
В рассматриваемом варианте обогреваемого пола роль нагревательного элемента выполняют полимерные трубы с циркулирующей по ним горячей водой, укладываемые под поверхностью пола. Низкая температура теплоносителя (30-50°С) – принципиальное отличие системы напольногр отопления от традиционных систем.
Пример конструкции пола при устройстве напольного водяного отопления (REHAU)

1 – штукатурка; 2 – плинтус; 3 – поролоновая прокладка; 4 – плитка; 5 – мастика; 6 – цементная стяжка; 7 – отопительная полмерная труба; 8 – защитная пленка; 9 – теплозвукоизоляция; 10 – гидроизоляция; 11 – бетон; 12 – грунт
В систему напольного отопления кроме труб входит комплект коллекторов и стояков, к которым эти трубы подключаются. Применяются также комнатные термостатические регуляторы температуры, монтируемые в греющий контур. С их помощью происходит автоматическое поддержание задаваемой температуры в помещении. Такое устройство представляет собой компактный блок, который может устанавливаться в любом удобном месте.
В общем случае монтаж «теплого пола» с гидрообогревом осуществляется следующим образом. На выровненное основание укладывается слой теплоизоляции. Далее производится раскладка труб с определенным шагом и в нужной конфигурации (зигзагом, спиралью, «улиткой»). При этом учитываются размер, планировка и назначение помещения, конфигурация стен и наличие в них окон, место расположения коллекторного узла или стояков.
Раскладка труб греющего контура и их крепление к теплоизоляционным плитам осуществляются либо скобами, либо с применением гнездовых монтажных реек для труб. При любом способе монтажа полимерные трубы оказываются органично встроены в конструкцию пола и надежно защищены от механических повреждений.
На «теплый пол» сверху может укладываться практически любое покрытие (паркет, ламинат, плитка, линолеум, ковровое и т.д.), которое выбирается заранее, еще на этапе проектирования.
Монтаж систем гидрообогрева обходится дороже монтажа систем электрообогрева в 1,5-2 раза, но дальнейшие эксплуатационные расходы значительно ниже.
|
|
|


Конструктивно-технологическое решение
| Назначение помещения | Допустимые нагрузки согласно СНиП 2.03.13-88 | Марка материала |
| Коридоры, лестничные площадки | Умеренная интенсивность воздействия механических нагрузок | Ceresit СМ11, 117, Ceresit CX178, Ceresit CT17, Ceresit СЕ33, супер СЕ35 супер, СЕ40 Aquastatic, СЕ 43 |
Керамическая плитка, другие типы плитки, клеи Ceresit 11, 117 и другие в зависимости от типа плитки. Слой легковыравниваемой стяжки Ceresit CX178 толщиной от 15 до 50 мм. Грунтовка Ceresit СГ 17. Железобетонная панель перекрытия
1-затирки Ceresit СЕ 33 супер, Ceresit СЕ 35 супер Ceresit СЕ 40 aquastatic, СЕ 43


Конструктивно-технологическое решение
| Назначение помещения | Допустимые нагрузки согласно СНиП 2.03.13-88 | Марка материала |
| 1-й этаж Жилых помещений при неотапливаемом техническом этаже | Слабая интенсивность воздействия механический нагрузок | Ceresit CX69, Ceresit CN178, Ceresit CT17 |
Линолеум, ковролин, ламинат Клеи Thomsit согласно таблицы. Само выравнивающийся слой смеси Ceresit CX69 толщиной от 3 до 15 мм. Грунтовка Ceresit CT17. Слой легко выравниваемой стяжки Ceresit CX178 толщиной не менее 40 мм. Разделительный слой – полиэтиленовая пленка и др. материалы. Железобетонная плита перекрытия.


Конструктивно-технологическое решение
| Назначение помещения | Допустимые нагрузки согласно СНиП 2.03.13-88 | Марка материала |
| Жилые помещенья | Слабая интенсивность механических воздействий | Ceresit CX69, Ceresit СГ17, Ceresit СО85. Клей для паркета соответствии с таблицей 2 |
Линолеум, ковролин, ламинат Клеи Thomsit Слой Ceresit CX69, толщина от 3 до 15 мм. Грунтовка Ceresit CT17. Стяжка со звукоизоляционным эффектом на базе Ceresit СО85, от 40 до 80 мм. Железобетонная плита перекрытия.


Конструктивно-технологическое решение
| Назначение помещения | Допустимые нагрузки согласно СНиП 2.03.13-88 | Марка материала |
| Кухни, санузлы, ванные, душевые | Слабая интенсивность механических воздействий. Интенсивность воздействия жидкостей малая | Ceresit CN69, Ceresit CO85, Ceresit CR65, Ceresit CT17, Ceresit CM11, 117, Ceresit CE33 супер, Ceresit СЕ35 супер |
Керамическая плитка, линолеум, плитка из ПВХ. Клей Ceresit СМ11, 117, клеи Thomsit. Слои самовыравнивающейся смеси Ceresit CN69, толщиной от 3 до 15 мм. Слои грунтовки Ceresit СТ 17. Стяжка со звукоизоляционным эффектом на базе Ceresit СО85 толщиной от 40 до 80 мм. Слой гидроизоляции Ceresit CR65 толщиной 2-3 мм. Слой грунтовки Ceresit СТ17. Железобетонная плита перекрытия.
|
|
|


Конструктивно-технологическое решение
| Назначение помещения | Допустимые нагрузки согласно СНиП 2.03.13-88 | Марка материала |
| 1-й этаж жилых помещений, пол устроен по грунту | Слабая интенсивность воздействия механических нагрузок | Ceresit CN85, Ceresit SE93, Ceresit СС94 Гидроизоляция группы Ceresit ВТ, СР, CL, CR66 |
Линолеум, ковролин, ламинат. Слой самовыравнивающейся смеси Thomsit DD, Ceresit CN69, толщиной не менее 40 мм. Разделитльный слой – полиэтиленовая пленка и др. материалы. Слой уплотненного керамзита, мин. плиты и пенополистирольные плиты для пола и др. материалы. Слой мелкозернистого бетона толщиной не менее 80 мм на базе Ceresit CN85 или Thomsit SE93 прочностью на сжатие не менее 20 МПа; или мелкозернистый бетон прочностью на сжатие не менее 25 МПа, с добавлением ускорителя твердения Ceresit СС94. Слой гидроизоляции из группы Ceresit СР, BT, CL и CR65. Слой мелкозернистого бетона толщиной не менее 50 мм на безе Ceresit SE93 прочностью на сжатие не менее 20 МПа; или мелкозернистый бетон прочностью на сжатие не менее 25 МПа, с добавлением ускорителя твердения Ceresit СС94. Грунт, уплотненный щебнем.


Конструктивно-технологическое решение
| Назначение помещения | Допустимые нагрузки согласно СНиП 2.03.13-88 | Марка материала |
| Выставочные, торговые залы вокзалы, помещения зрелищных предприятий, вестибюли, музеи | Умеренная интенсивность воздействия механических нагрузок | Ceresit CN72, Thomsit DX, Thomsit SL85, Thomsit R777 |
Паркет, ламинат. Клеи Thomsit. Слои самовыравнивающейся смеси Ceresit СN72 или Thomsit DX толщиной не менее 2 мм. Грунтовка Thomsit R77. Слой самовыравниваемой стяжки Ceresit СТ17. Железобетонная плита перекрытия.
Примечание: слой стяжки Ceresit CN178 и прослойки Ceresit CN72 (Thomsit DX) могут быть заменены на 1 слой Thomsit SL85 толщиной не менее 30 мм.


Конструктивно-технологическое решение
| Назначение помещения | Допустимые нагрузки согласно СНиП 2.03.13-88 | Марка материала |
| Выставочные, торговые залы, вокзалы, помещения зрелищных предприятий вестибюли, музеи | Умеренная интенсивность воздействия механических нагрузок | При использовании мраморной плитки необходимо применять клей Ceresit СМ15, 11. Плитки из природного и искусственного камня размером более 400х400 мм укладывают на Ceresit СМ19. |
Плитка из природного или искусственного камня. Клеи группы Ceresit СМ. Слои самовыравнтвающейся смеси Ceresit CN69 от 3 до 15 мм, при необходимости выравнивающей смеси большей толщины – Ceresit CN178. Грунтовка Ceresit СТ17. Железобетонное перекрытие. 1-затирка Ceresit СЕ35 супер, СЕ37, СЕ42 для мраморной плитки.


Конструктивно-технологическое решение
| Назначение помещения | Допустимые нагрузки согласно СНиП 2.03.13-88 | Марка материала |
| Выставочные, торговые залы, вокзалы, помещения зрелищных предприятий вестибюли, музеи | Умеренная интенсивность воздействия механических нагрузок | Ceresit CF34, Thomsit R755, Ceresit CN76, Ceresit SL85, Thomsit R777 |
Эпоксидная краска Ceresit CF34. Грунтовка Thomsit R755 под эпоксидные покрытия. Слой самовыравнивающейся смеси Ceresit CN76 или Thomsit SL85 толщиной не менее 6 мм. Слой грунтовки Thomsit R777. Железобетонное перекрытие.


Конструктивно-технологическое решение
| Назначение помещения | Допустимые нагрузки согласно СНиП 2.03.13-88 | Марка материала |
| 1-й этаж выше перечисленных общественных помещений | Умеренная интенсивность воздействия механических нагрузок | Ceresit CC 94 |
1-й вариант – плитка из натурального или искусственного камня; 2-й вариант – эпоксидные или полиуретановые покрытия. Слой легковыравниваемой стяжки Ceresit CN178 толщиной от 15 мм- 1-й вариант; Слой самовыравнивающейся смеси Ceresit CN76 толщиной от 6 мм- 2-й вариант. Грунтовка Thomsit R777.
Слой гидроизоляции согласно поз. 5. Слой мелкозернистого бетона на базе Ceresit CN 85 или Thomsit SE93 толщиной не менее 50 мм или мелкозернистый бетон прочностью на сжатие не менее 30 МПа, с добавлением ускорителя твердения Ceresit СС94. Грунт, уплотненный щебнем.


Конструктивно-технологическое решение
| Назначение помещения | Допустимые нагрузки согласно СНиП 2.03.13-88 | Марка материала |
| Офисы, аудитории, классы актовые залы и др. | Слабая интенсивность механических воздействий | Ceresit CN69, Ceresit CN72, Thomsit DD, Thomsit DX |
Линолеум, паркет, ламинат. Клеи Thomsit согласно таблицы. Самовыравнивающееся смеси Ceresit CN69, Thomsit DD под линолеум, ламинат; Ceresit CN72 или Thomsit DX под паркет, толщина слоя CN69, DD – не менее 3 мм, CN72, DX – не менее 2 мм. Грунтовка Ceresit СТ17. Слой легковыравниваемой стяжки Ceresit CN178 толщиной не менее 30 мм. Грунтовка Ceresit СТ17. Железобетонное перекрытие.
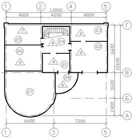
| План полов на отм. 0.000 | План полов на отм. +3.500 |
| |
План полов на отм. -2.800

Детали полов
| Схема конструкции пола | Элементы пола и их толщина, мм | Площадь, м² | Номер помещений |
| 1.Керамическая плитка – 8 мм 2.Грунтовка CEREZIT СТ17 3.Цементно-песчаный раствор М150 -30 4.Подстилающий слой -бетон кл. В7,5 - 100 мм 5.Грунт основания с трамбованным щебнем или гравием крупностью 40 или 60мм. | 1,56 | площадка |
| 1.Керамогранит -15 2.Клей группы CEREZIT СМ11,117 3.Слой самовыравнивающейся стяжки CEREZIT SN69 -5 4.Грунтовка CEREZIT СТ17 5.Армированная цементно-песчаная стяжка -30 6.Геодренажная полимерная мембрана Деркен Delta MS20 с перфорацией между 2 слоями иглопробивного геотекстиля с развесом не менее 350-400 г/м² 7.Полиэтиленовая пленка 8.Гидроизоляция - Технопласт-Грин 9.Гидроизоляция - Технопласт-ЭПП 10.Разуклонка из керамзитобетона - 20-60 11.Разделительный слой (картон) 12.Утеплитель - ПСБС-50 -160 13.Паробарьер-Ютафол Н11ОСТ 14.Монолитная ж/б плита - 120 | 26,74 | 11,18 |
| 1.Ламинированный паркет 31 класса (1500 оборотов) - 8 2.Клеи группы CEREZIT СМ11,117 3.Слой самовыравнивающейся стяжки CEREZIT SN69 -5 4.Грунтовка CEREZIT СТ17 5.Цементно-песчаный раствор М150 армированный сеткой ∅4Вр1 150х150 - 43 мм 6.Слой звукоизоляц.- плиты древесно-волокнист. марки М-2 или М-3, γ≤250 кг/м³ - 24 7.Монолитная плита перекрытия - 120 | 60,27 | |
| 1.Ламинированный паркет 31 класса (1500 оборотов) - 8 2.Клеи группы CEREZIT СМ11,117 3.Слой самовыравнивающейся стяжки CEREZIT SN69 -5 4.Грунтовка CEREZIT СТ17 5.Цементно-песч. раствор М150 армированный сеткой ∅4Вр1 150х150 - 43 6.Слой звукоизоляционный - плиты древесно-волокнист. марки М-2 или М-3,γ≤250 кг/м³ -24 7.Плита перекрытия - 220 | 126,57 | 12, 13, 16, 17,21,22, 23,24,26 |
| 1.Керамическая плитка – 8 мм 2.Клеи группы CEREZIT СМ11,117, клей Thomsit 3.Слой самовыравнивающейся смеси Thomsit DD, CEREZIT SN69 - 3 4.Грунтовка CEREZIT СТ17 5.Цементно-песч. раствор М150 армированный сеткой ∅4Вр1 150х150 - 30 6.Утеплитель - ПСБС-50 -50 7.Гидроизоляция - 1слой СПОЛИизола 8.Подстилающий слой -бетон кл. В7,5 - 100 9.Грунт основания с трамбованным щебнем или гравием крупностью 40-60мм. | 76,46 | 02,03,04, 06,07 |
| 1.Керамогранит -15 2.Клей группы CEREZIT СМ11,117 3.Слой самовыравнивающейся стяжки CEREZIT SN69 -5 4.Грунтовка CEREZIT СТ17 5.Армированная цементно-песчаная стяжка - 30 6.Геодренажная полимерная мембрана Деркен Delta MS20 с перфорацией между 2 слоями иглопробивного геотекстиля с развесом не менее 350-400 г/м² 7.Полиэтиленовая пленка 8.Гидроизоляция - Технопласт-Грин 9.Гидроизоляция - Технопласт-ЭПП 10.Разуклонка из керамзитобетона -20-45 11.Утеплитель - ПСБС-50 -160 12.Паробарьер-Ютафол Н11ОСТ 13.Монолитная ж/б плита -120 | 5,13 | |
| 1.Керамическая плитка -8мм 2.Клеи группы CEREZIT СМ11,117 3.Слой самовыравнивающейся стяжки CEREZIT SN69 -5 4.Грунтовка CEREZIT СТ17 5.Цементно-песчаный раствор армированный сеткой ∅4Вр1 150х150 М150 - 42 6.Один слой наплавляемого рубероида СПОЛИизол Г(ПкЕПк) - 3.0 Н7 7.Цементно-песчаный раствор М150 -20 8.Плита перекрытия - 220 | 22,72 | 15,25 |
| 1.Керамическая плитка – 8 мм 2.Клеи группы CEREZIT СМ11,117 3.Слой самовыравнивающейся стяжки CEREZIT SN69 - 5 4.Грунтовка CEREZIT СТ17 5.Цементно-песчаный раствор М150 -30 6.Гидроизоляция - 1слой СПОЛИизола 7.Бетонная подготовка, бетон М7,5 -100 8.Грунт основания с трамбованным щебнем или гравием крупностью 40-60мм. | 31,01 |






