Метантенк являє собою герметичний резервуар, циліндричної форми з конічним днищем з рухливим або нерухомим перекриттям у верхній частині якого є ковпак для збору газу.
МЕТАНТЕНК ІЗ ПЛАВАЮЧИМ ПЕРЕКРИТТЯМ (РУХЛИВИМ).
Рухливе перекриття складається з:
металевої ферми;
покриття теплоізоляцією;
шар толю по металевому листі;
бруски;
робочий настил з дощок;
захисний настил з дощок;
бітум;
8. руберойд.
Достоїнства: 1. Взрывобезопасность, 2. Можливість регулювання завантаження й вивантаження осаду (по положенню плаваючого перекриття).
Недоліки: 1. Через велике дзеркало маси, що бродить, створюються сприятливі умови для утворення кірки. 2. При низькій температурі повітря утрудняється рух плаваючого перекриття по напрямних ролика (обмерзання). Тому ця конструкція метантенка не знайшла широкого застосування. Найбільше поширення одержав метантенк із нерухомим перекриттям.
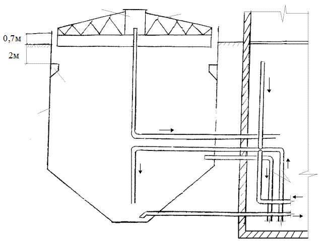
МЕТАНТЕНК ІЗ НЕРУХОМИМ ПЕРЕКРИТТЯМ.



1.Метантенк.
2.Насос.
3.Колодязь - дозатор.
У верхній частині перекриття метантенка розташована горловина D= 4 м і висотою 2,5м (метантенк D = 24 м). Поверхня маси, що бродить, завжди вище підстави горловини, тому площа дзеркала води значно менше. Це приведе до інтенсивному газовыделению й сприяє розбиванню кірки.
Для збору газу на горловині метантенка встановлені газові ковпаки D =3,8м.Тиск газу в них 3...3,5 Кпа.
На підставі досвідчених даних відношення D до його глибини перебуває в межах 1:1, 1:0,8.
Газо- і теплоізоляцію бетонного перекриття метантенков виконують із чотирьох- п'яти шарів перхлорвінілової маси, покладеної по бетоні й покритій цементній стяжці. Потім іде шар шлаків
= 50 див, цементна стяжка й сама верхній - тришарова рулонна покрівля.
Найбільше раціонально завантаження й вивантаження осаду робити одночасно й безупинно.
Осад подається через дозуючу камеру у верхню зону метантенка й вивантажується з конусної частини днища.
Достоїнства: 1. Сприятливі температурні умови тому що виключається залпове надходження холодного сирого осаду. 2. Рівномірність газовыделения.
Перемішування осаду здійснюється за допомогою гідроелеватора. Він надійний в експлуатації, але має низький КПД, тому застосовується в метантенках місткістю до 1700 м3.
Метантенки великої ємності обладнаються пропелерними мішалками.
Типові метантенки мають корисний обсяг від 500 до 800 м3 (D 12,5...22,6м). Секція метантенков складається з 4-х резервуарів, будинку обслуговування, кіоску газових приладів, прохідного тунелю (крім D 12,5 м).
| АНАЭРОБНО-АЭРОБНЫЙ БИОРЕАКТОР БАШЕННОГО ТИПА.
| |






































ДВОСТУПІНЧАСТІ МЕТАНТЕНКИ.
I щабель - інтенсивне шумування органічних речовин, супроводжується
бурхливим газовыделением і перемішуванням осаду.
II щабель- загасання газовыделения, розшарування осаду - виконує функцію
илоуплотнителя.



















1. Випуск осаду; 2. Випуск иловой води; 3.4. Патрубки иловой води й осідання; 5. Сирий осад.
Двоступінчасте сбраживание дозволяє в 2 рази зменшити обсяг осаду, за рахунок видалення иловой води. Проектується в районах з tВОЗД > 6 0С. Доза завантаження
3...4 %.