Законы регулирования.
1) По времени суток. Используется, если параметры суточного графика остаются стабильными изо дня в день. На рисунке 4.12.а) приведен пример графика напряжения на шинах ЦП при отсутствии регулирования напряжения. При этом отмечается значительное снижение напряжения в дневное время.

Рис. 4.12. Суточные графики: а) без регулирования, б) с одноступенчатым регулированием напряжения.
На рисунке 4.12.б) приведен пример графика, полученного при одноступенчатом регулировании напряжения. Переключение отпаек производится дважды в сутки – утром и вечером, благодаря чему дневное напряжение повышается.
Для автоматизации регулирования можно использовать либо электрочасы с контактами, либо программное реле времени.
2) По напряжению (закон стабилизации напряжения).
При таком законе регулирования автоматический регулятор обеспечивает с определенной степенью точности поддержание напряжения на шинах 6-10 кВ ЦП на уровне, определяемом напряжением уставки Uзад (задающим напряжением).
Примерный график отклонений напряжения по цепи электропередачи для случая стабилизации напряжения в ЦП приведен на рис.1, где
- - - - - - - - режим минимальных нагрузок (min режим);
________ режим максимальных нагрузок (max режим);
БАУРПН - блок автоматического управления регулятором напряжения под нагрузкой;
ε - ширина зоны нечувствительности (Зона);
δ - допустимая ошибка регулирования, δ = ε / 2;
Е – ступень регулирования;
- выдержка времени отстройки от кратковременных изменений напряжения.
ЭС – энергосистема;
Zлэп – сопротивление ЛЭП 110 кВ,
Zл – сопротивление ЛЭП 6-10 кВ;
D - добавка напряжения, зависящая от положения переключателя отпаек;
ТН - измерительный трансформатор напряжения;
ТТ – измерительный трансформатор тока;
АД – высоковольтный асинхронный двигатель;
ТП – трансформаторная подстанция.
Контролируемое напряжение через ТН поступает на вход БАУРПН, где вычисляется ошибка: ош =
. В зависимости от соотношения величин фактической (ош) и допустимой (δ) ошибок с выхода блока поступают команды на переключатель отпаек:
-
команда «Понизить напряжение».
-
нет команды.
-
команда «Повысить напряжение».

Рис.4.13. Автоматическое регулирование напряжения в ЦП по закону стабилизации
Величина ступени регулирования Е зависит от конструкции трансформатора (указывается в паспорте на трансформатор), обычно лежит в пределах
.
Зоной нечувствительности (мёртвой зоной) ε называют некоторый диапазон изменения контролируемого напряжения, в котором не происходит срабатывание регулирующей аппаратуры. Величина зоны нечувствительности ε определяет точность регулирования, которая обозначается ±δ где δ% - величина, равная половине зоны нечувствительности. Зона нечувствительности регулятора должна быть больше ступени регулирования Е на величину, порядка 0,2-0,5%, т.к. иначе регулятор будет работать неустойчиво, т.е. будет иметь место колебательный режим работы регулятора и переключающего устройства.
Из графика рис.4.13 видно, что несмотря на стабильный уровень напряжения в ЦП, напряжение на зажимах ЭП изменяется в зависимости от изменения тока нагрузки. Диапазон этих отклонений тем выше, чем больше сопротивление линий электропередачи Zл и чем больше разница между токами нагрузки в максимальном и минимальном режимах.

Рис.4.14 Процесс регулирования с помощью переключения отпаек трансформатора.
Выдержка времени в регуляторах служит для предотвращения их работы при кратковременных отклонениях напряжения от заданного значения. При увеличении выдержки времени уменьшается общее количество переключений, однако одновременно снижается и качество регулирования. При уменьшении выдержки времени качество регулирования повышается, однако при этом увеличивается частота переключений и их общее число. Это ухудшает условия работы переключающих устройств. Практически выдержка времени выбирается в пределах 1-3 мин.
Для оценки влияния указанных величин на точность регулирования рассмотрим процесс регулирования, изображённый на рис.4.14.
В начальный момент времени 0 регулируемое напряжение находилось внутри зоны нечувствительности регулятора (ε). Далее в момент времени 1,понижающееся напряжение вызвало срабатывание чувствительного органа регулятора и начался отсчёт времени. По истечении выдержки времени t1 в момент 2 подаётся команда на переключение отпайки и через время t2 (время работы переключающего механизма) напряжение скачком возрастает на величину, определяемую ступенью регулирования (E) и вновь оказывается внутри зоны ε. В промежуток времени 4,5,6 происходит аналогичный процесс переключения с той лишь разницей, что переключатель возвращается в прежнее положение. В промежуток времени 7,8 произошло кратковременное понижение напряжения, на которое регулятор не среагировал, т.к. его выдержка времени t1 оказалась больше, чем длительность этого понижения напряжения t3.
Встречное регулирование напряжения.
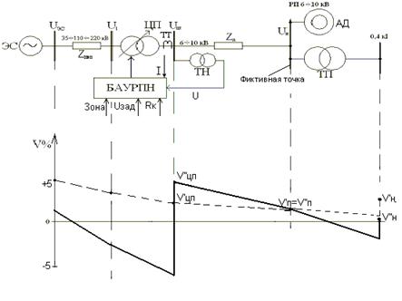
При встречном регулировании стабильный уровень напряжения обеспечивается не на шинах ЦП, а в некоторой удаленной от ЦП точке электрической сети. Она называется “контрольной” или “фиктивной” точкой.
При этом автоматический регулятор обеспечивает с определенной степенью точности уровень напряжения на шинах ЦП, равный сумме напряжения уставки Uзад и потери напряжения от ЦП до фиктивной точки ΔU:
Uцп = Uзад + ΔU = Uзад + IZл.
Иначе говоря, напряжение в ЦП зависит от тока нагрузки, оно растет с увеличением тока нагрузки.

Рис.4.15. Зависимость напряжения в ЦП от тока нагрузки при встречном регулировании (I', Uцп', I'', Uцп'' – ток нагрузки и напряжение в ЦП в min и max режимах).
Для реализации такого закона в регуляторе должен быть смоделирован участок электрической сети от ЦП до фиктивной точки. Это моделирование осуществляется с помощью специального сопротивления токовой компенсации, через которое пропускается ток нагрузки. Величина этого сопротивления служит вторым (после Uзад) параметром встречного закона и приближенно определяется по формуле
.
Для реализации встречного закона измеряются и подаются на вход регулятора напряжение U (с трансформатора ТН) и ток нагрузки I (с трансформатора ТТ). В результате напряжение на шинах ЦП в максимальном режиме (днем) будет выше, чем в минимальном (ночью) (см. рис. 2 и 3).


Рис.4.16. Автоматическое регулирование напряжения в ЦП по встречному закону.
Примерный график отклонений напряжения в эл. сети при встречном регулировании напряжения в ЦП приведён на рис.3. Фиктивная точка в данном примере выбрана на шинах РП 6-10 кВ.