
2. Скатная крыша (pitched roof): Выбрав геометрический метод PolyRoof, вы можете создавать скатные крыши на любой многоугольной или изогнутой базе.
· Выбор метода многоугольной геометрии: С активным Roof Tool, выберем Polyroof в окне информации.

· Черчение контура скатной крыши: начертим ось крыши точка за точкой по внешней стороне стены. Когда вы завершите, отобразится диалоговое окно PolyRoof Settings.
|
|
|
Теперь введем параметры крыши в диаловое окно PolyRoof Settings. Установим Eave Overhang (карниз) в 1'-0", Roof Thickness (толщина крыши) в 4", высоту крыши в 9'-0" и шаг в 5/12. Кликнем на OK чтобы создать крышу.

· Изменение вальмовой крыши (Hip roof) на двускатную крышу (Gable Roof): Активизируйте инструмент стрелки (Arrow Tool) и выберите скатную крышу, которую вы создали. Чтобы разгруппировать крышу, выберем Ungroup из меню Tools. Выберем вальмовую крышу (Hip roof) чтобы удалить и нашмем клавишу Del. Теперь кликнем на Roof Tool, выберем край крыши и растянем ее ребро до края стены как показано. Повторим это для противоположной двускатной крыши.
|
|
|
Обрежем верхние участки стены до уровня крыши. Выберем все стены под новыми крышами и перейдем в меню Edit. Выберем команду Trim to Roof command и проверим наличие галочки на Trim Top. Кликнем на Trim.

3. Крыша с цилиндрическим сводом: Этот метод позволяет нам создавать крышу любой, даже очень сложной формы. В примере который описан ниже мы будем моделировать простую крышу с циллиндрическим сводом в 3D-Окне.
· Создание трехмерной параллельной проекции: Выберите 3D Projection Settings из меню Image. Создайте параллельную проекцию, подобную показанной на рисунке ниже.

Создание крыши с цилиндрическим сводом в 3D: Активизируем Roof Tool, кликнем на кнопку Edit Mode в палитре 3D Navigation и выберем геометрический метод Barrel Vaulted (цилиндрический свод) в окне информации. Далее откроем Magic Wand Settings (параметры волшебной палочки) в меню Tools и изменим Deviation from Curves (Отклонение от Кривых) с 2" на 1".

|
|
Замечание: Clean Wall & Beam Intersections должно находится в положении ON (включено) при создании крыши с цилиндрическим сводом в 3D.
Переместим курсор к углу стены, откуда будет начинаться цилиндрическая крыша. Кликнем и переместим курсор чтобы указать ширину цилиндрической крыши. Кликнем на углу стены после чего отобращиться палитра с тремя параметрами. Выберем параметр Curved Barrel Vaulted (изогнутый цилиндрический свод).

Чтобы точно указать высоту крыши, прежде всего необходимо изменить систему высоты на пользовательское начало координат, и после этого ввести 3'-0" в окно координат и нажать на Enter.
|
|
Теперь установим длину крыши с цилиндрическим сводом переместив курсор на длину здания и кликнем на угле стены, чтобы закончить.

· Подрезка крыши в 3D: Следующим шагом будет соединение стены с начерченой нами крышей. Чтобы сделать это, нам нужно растянуть стену и обрезать ее на уровне крыши. Выберем инструмент стрелки (Arrow Tool) и кликнем на стене, как показано на рисунке внизу слева. Активизируем Wall Tool (инструмент создания стен) и изменим высоту стены 15'-0" чтобы стена была выше чем крыша.

Выделив стену, выберем команду Trim to Roof в меню Edit Menu. Выберем Trim Top в появившемся диалоговом окне. Кликнем на кнопке Trim чтобы обрезать стену.

Развернем модель и повторим эту же операцию с противоположной стеной.
4. Размещение слуховых и потолочных окон: Потолочное окно, размещенное на верхней части крыши будет автоматически вставлено в крышу и откорректировано в соответствии с углом наклона крыши, повернуто под правильным углом (паралелльно ссылочным линиям крыши), и отверстие под окно будет автоматически вырезано в крыше.
· Установка потолочного окна: Объекты потолочных окон сохранены в каталогах Dormers и Skylights стандартной библиотеки ArchiCAD. Двойным кликом активизируйте инструмент работы с объектами (Object Tool) и выберите Skylight Top Hung из библиотеки ArchiCAD. Расположение потолочных окон в библиотеке ArchiCAD показано ниже. Установите значения параметров как показано на рисунке. Установите текущий уровень в Roof.

Вы можете вставлять потолочные окна как в 2D так и в 3D. В окне поэтажного плана, вы располагаете потолочные окна внутри контура крыши. В 3D Window, кликните на плане крыши. ArchiCAD определит где вы осуществили клик и расположит там потолочное окно.
|
|
Вы так же может располагать потолочные окна на других крышах, используя команду multiply. Сначала выбираем потолочное окна в окне поэтажного плана и после этого открываем меню Edit и выбираем команду Multiply.
|
|
Если вы откроете после этого 3D Window то увидете расположенные на крыше потолочные окна.
Конструкционные элементы здания.
В этом разделе вы изучите как строить, перемещать и редактировать балки и фермы. Инструмент работы с балками (Beam Tool) создает прямые, горизонтальные конструкционные элементы прямоугольного профиля. Вы также можете увидеть, как вы сможете генерировать связочные элементы с помощью TrussMaker.
Что будет изучено
· Фундамент
· Beam Tool
o Параметры балок
o Установка балок
o Редактирование балок
· TrussMaker
o Создание фермы
o Профиль фермы
В данном разделе будем использовать файл, с которым мы работали в предыдущем разделе.
1. Создание структуры фундамента: Для этих целей используется команда Slab Accessories.
· Выбор плиты нижнего уровня: Команда Slab Accessories использует конструкционную плиту в качестве контура для создания фундамента. Чтобы выбрать плиту, перейдем на нижний уровень, методом выбора уровня из меню Stories (этажи).

Далее, выберием плиту, которая расположена по периметру здания. Плита будет подсвечена пунктиром, что говорит о том, что она выбрана. Теперь переместимся в меню Extras и выберем Slab Accessories в команде Accessories.

· Установка параметров: Диалоговое окно Object Settings позволяет вам выбрать объект xs7-footing. Если вы выберите его, отобразится интерфейс объекта. Он содержит две страницы, на первой вы можете установить тип основания, опорную стену и размеры фундамента, на второй странице вы найдете параметры для атрибутов профиля. Измените размеры как вам необходимо и нажмите на OK.

Расположите объект на уровень Bilding Slabs, как показано ниже.

Замечание: профиль параметрического объекта будет заштрихован только в том случае, если вы установите галочку на Use Symbol Section Attributes в панели Section Attributes.

2. Beam Tool: Beam Tool создает вертикальные или горизонтальные конструкционные элементы прямоугольного профиля. Балки могут взаимодействовать друг с другом и с конструкционными элементами. Балки могу чертиться как на поэтажном плане, так и в 3D Window и могут содержать отверстия. Вы этом примере мы создадим обрешетку пола для верхнего этажа.
· Выбор комбинации уровней для плана обрешетки (Framing Plan): чтобы установить рабочее пространство для Framing Plan, выберите комбинацию уровней Framing Plan из Layers в меню Options Menu.
· Переход на верхний этаж: Чтобы переместится на верхний этаж, выберите Stories в меню Options и тут выберить Upper Story.
· Редактирование параметров балок: Двойным кликом активизируйте инструмент Beam Tool и здесь установим параметры балок. Прежде всего установим информацию для поэтажного плана и атррибуты сечения. Назначим для балок тип линии - пунктир, и выберем Дерево (Wood) как аттрибут сечения.

Установим размер балки в 10"x2" и верх рамы 8"x10".
|
|
· Установим материалом всех сторон балки сосну (Pine) и выберем уровень Framing.
|
|
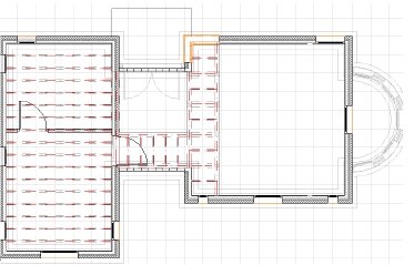
· Создание обрешетки пола (Floor Framing): выберем параметр Distance Marker в окне координат и введем 1'-4". Переместим курсор на внутреннюю сторону стены. На стене отобразится маркер. С активным инструментом Beam кликнем на маркере и переместим курсор к противоположной стене до тех пор пока не увидим что курсор принял вид закрашенного карандаша, и тогда кликнем, чтобы завершить нашу первую балку.
|
|
Выберем инструмент стрелку, кликнем на балке чтобы подсветить ее, и выберем Multiply из меню Edit. Выберем в этом меню Spread, введем 1'-4" в качестве промежутка и кликнем на OK.

Теперь кликнем на краю балки чтобы подветить ее и переместим курсор к углу на противоположной стороне комнаты.
|
|
· Редактирование параметров балки: двойным кликом активизируем инструмент Beam и выберем Beam Settings. Установим Beam size (размер балки) как
1'-0" x 6" и толщину обрешетки в 8'-10".
|
|
· Создание балок: С активным инструментом Beam, кликнем посредине между колоннами и растянем балку до следующей колонны. Повторим это действие для каждой колонны.

Когда закончите, заполните обрешетку пола как показано в предыдущем примере.

· Создание балки под стеной. Установим параметры балки: активизируем инструмент Beam и выберем Beam Settings. Установим размер балки как 1'-2" x 9 1/2" и верх балки в 9'.
|
|
Установим материал как Заретушированная поверхность (Surface-Whitewash) для всех сторон балки и выберем уровень Wall-Exterior.
|
|
Разместим балку как показано ниже.
|
|
3. TrussMaker: TrussMaker позволяет вам создавать фермы и стропила. Иерархическое меню TrussMaker находится в меню Extras.
· Создание контура фермы: Переместимся на пустое пространство в вашем поэтажном плане. Откроем Line Settings и установим цвет пера в pen 1/black. Выберем инструмент Line и установим его как Single Line (еденичная линия). Кликнем на поэтажном плане и введем длинну линии используя окно координат, 12'-1" для X и 0' для Y. Нажмем Enter.
|
|
Откроем цветовую палитру пера (Pen Color Palette) еще раз и установим цвет пера в pen 9/ Magenta. Теперь начертим вертикальную линию для ферм. Выберите метку Half (половина) в окне координат и кликнем чтобы начать линию, затем введем 2'-8 9/32" для Y-координаты и нажмем на Enter.
|
|
Откроем инструмент Circle/Arc и установим цвет пера в pen 1/black. Далее, выберем инструмент Circle и установим геометрический метод 3 point (по трем точкам) в окне информации.
|
|
Кликнем на конце горизонтальной линии, чтобы начать, затем кликнем на верхнем конце вертикальной линии, и затем на другом конце горизонтальной, чтобы завершить дугу.
|
|
И наконец, активизируем инструмент Line еще раз и добавим несколько дополнительных линий для фермы как показано.
|
|
Замечание: во время создания фермы вы можете назначать различные цвета пера для сечения.
· Выбор в TrussMaker: чтобы создать ферму из созданного нами контура, выберите все линии, которые мы создали. Для этого активизируйте инструмент Arrow Tool и кликните один раз на одной стороне профиля и переместите курсор чтобы выбрать все созданные нами линии. Кликните еще раз чтобы завершить выбор, переместитесь в меню Extras выберите Create Truss (создать ферму) в TrussMaker.
|
|
· Установка параметров: отобразится диалогове окно Object Settings, в котором можно установить параметры для деревянного каркаса, полного профиля и стале-проката. Выберем деревянный каркас (Timber Construction) и кликнем на панели аттрибутов. Введем 11' для высоты фермы. Установим материал в Wood-Pine (дерево-сосна), и установим уровень как Roof как показано ниже.

Далее, кликнем на панели Truss Profiles и установим параметры как показано ниже. Когда завершите, сохраните вашу конструкцию на жесткий диск в библиотеку ArchiCAD 70.

После этого объект отобразится на 2D-плане. Выберем инструмент стрелка и выберем с его помощью нашу ферму. Теперь выберем Drag в меню Editu, кликнем на краю фермы и переместим его к колонне, как показано на рисунке.

И наконец выберем команду Multiply из меню Edit, установим 3 копии и выберем Distribute. Кликнем на углу фермы, перместим ее к противоположной стене и кликнем чтобы завершить.

Фурнитура и оборудование
В этом разделе мы изучим как размещать, редактировать и создавать фурнитуру и оборудование с помощью инструмента работы с объектами (Object Tool), как работать с библиотекой объектов ArchiCAD, создавать собственные двумерные и трехмерные библиотечные детали, которые можно будет добавлять к библиотеке деталей вашего проекта.
Что будет изучено
· Инструмент работы с объектами (Object Tool)
o Размещение объектов
o Вращение объектов
o Множественное копирование объектов
o Растягивание объектов
· Библиотека ArchiCAD
В данном разделе будем использовать файл, с которым мы работали в предыдущем разделе.






