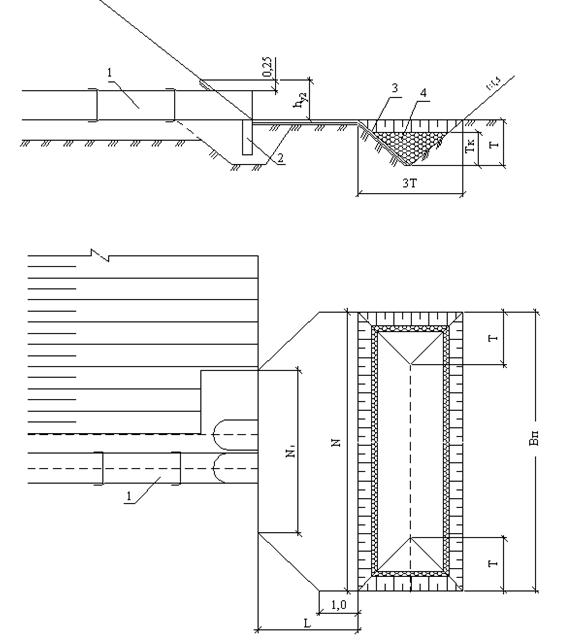
Укрепление русла на выходе заканчивается предохранительным откосом 3 (рис.2.5.1).

Рисунок 2.5.1 Схема укрепления русла и откосов: 1 – звено трубы; 2 – противофильтрационный экран; 3 – предохранительный откос; 4 – наброска камня
Для уменьшения длины укрепления русла принято, что в паводок скорость движения воды после конца укрепления больше неразмывающей для грунта. Поэтому после конца укрепления образуется воронка размыва, выполняющая роль водобойного колодца как гасителя энергии водного потока. Ее называют ковшом размыва. Ковш размыва включает предохранительный откос и наброску камня (рис. 2.5.1).
Предохранительный откос предназначен для предотвращения развития размыва по направлению к трубе. Наброска камня уменьшает глубину размыва.
Ширина укрепления у предохранительного откоса N, ширина предохранительного откоса Вп, глубина предохранительного откоса Т и толщина каменной наброски Тк обосновываются расчетом.
Ширина укрепления у предохранительного откоса:
N=Враст+3, (2.5.1)
|
|
|
где Враст – ширина растекания потока.
Ширина растекания потока определяется по формуле:
, (2.5.2)
где d – отверстие одноочковой трубы;
L – длина укрепления от конца оголовка (табл.2.5.3);
bп – ширина потока на выходе (табл.2.5.2);
Дэ – эквивалентный диаметр, равный для круглых труб
;
no – количество очков труб (по заданию);
n – показатель степени, определяемый по формуле:
, (2.5.3)
где Qc – сбросной расход (по заданию);
Qk – эталонный расход:
, (2.5.4)
Таблица 2.5.2
| Отверстие, м | 1,0 | 2х1,0 | 3х1,0 | 1,2 | 2х1,2 | 3х1,2 |
| Ширина потока на выходе bп, м | 1,00 | 2,45 | 3,92 | 1,20 | 2,90 | 4,62 |
| Отверстие, м | 1,4 | 2х1,4 | 3х1,4 | 1,6 | 2х1,6 | 3х1,6 |
| Ширина потока на выходе bп, м | 1,40 | 3,32 | 5,22 | 1,60 | 3,75 | 5,36 |
Длина укрепления L назначается в зависимости от отверстия трубы с учетом типа укрепления. Русло на выходе трубы по типовому проекту [6] рекомендуется укреплять монолитным бетоном или плитами ПК100.12.е. В этом случае длину укрепления L можно принять по таблице 2.5.3.
Таблица 2.5.3
| Отверстие, м | 1,0 | 2х1,0 | 3х1,0 | 1,2 | 2х1,2 | 3х1,2 |
| Длина укрепления L, м | 2,0 2,0 | 2,8 3,0 | 3,4 3,0 | 2,0 2,0 | 2,8 3,0 | 3,4 3,0 |
| Отверстие, м | 1,4 | 2х1,4 | 3х1,4 | 1,6 | 2х1,6 | 3х1,6 |
| Длина укрепления L, м | 3,0 3,0 | 4,2 4,0 | 5,1 5,0 | 3,5 4,0 | 4,7 5,0 | 5,6 6,0 |
| П р и м е ч а н и е: в числителе значения указаны для укрепления монолитным бетоном, в знаменателе для укрепления плитами ПК100.12.е |
Ширина предохранительного откоса (рис. 2.5.1) обосновывается следующим образом. Вначале определяется предельная глубина в конце укрепления при неограниченном времени прохождения паводка и отсутствии каменной наброски.
, (2.5.5)
где
– масштабный коэффициент (табл.2.5.4);
Qc, Qk, L, Дэ, d, bп – см. обозначение в формуле (2.5.1);
, (2.5.6)
dгр – расчетный диаметр частиц грунта лога, м (по заданию).
|
|
|
Таблица 2.5.4
| Эквивалентный диаметр трубы Дэ, м | 1,0 | 1,2 | 1,4 | 1,6 | 2,0 |
Масштабный коэффициент | 0,85 | 0,83 | 0,82 | 0,81 | 0,80 |
Далее вычисляется расчетная глубина размыва в конце укрепления при ограниченном времени прохождения паводка и отсутствии каменной наброски:
, (2.5.7)
где Кс – коэффициент снижения глубины размыва за счет ограниченного времени прохождения паводка (табл.2.5.5).
Таблица 2.5.5
| Вид грунта | Значение коэффициента Кс при количестве очков | ||
| Песчаный и супесчаный | 0,6 | 0,56 | 0,51 |
| Гравий, суглинки, глины | 0,75 | 0,70 | 0,64 |
Ширина предохранительного откоса вычисляется по формуле:
, (2.5.8)
где К1 – коэффициент, определяемый по таблице 2.5.6.
Полученное по формуле (2.5.8) значение Вп сопоставляется с шириной укрепления у предохранительного откоса N по формуле (2.5.1). Если Вп<N, то принимается Вп=N, если Вп>N, то оставляют полученную Вп и принимают N=Вп.
В случае укрепления русла плитами ПК100.12.е следует принять ширину конца укрепления кратной ширине стороны плиты.
Таблица 2.5.6
| Тр/Дэ | Значение К1, при отношении L/Дэ | |||
| 0,2 | 0,25 | 0,17 | 0,12 | 0,10 |
| 0,4 | 0,43 | 0,35 | 0,25 | 0,19 |
| 0,6 | 0,58 | 0,47 | 0,35 | 0,26 |
| 0,8 | 0,68 | 0,56 | 0,45 | 0,32 |
| 1,0 | 0,75 | 0,63 | 0,50 | 0,40 |
| 1,2 | 0,80 | 0,69 | 0,57 | 0,44 |
| 1,4 | 0,83 | 0,73 | 0,61 | 0,48 |
| 1,6 | 0,85 | 0,76 | 0,65 | 0,52 |
| 1,8 | 0,88 | 0,80 | 0,68 | 0,56 |
| 2,0 | 0,90 | 0,82 | 0,71 | 0,58 |
| 2,4 | 0,91 | 0,85 | 0,75 | 0,63 |
| 2,8 | 0,93 | 0,86 | 0,78 | 0,66 |
| 3,2 | 0,95 | 0,87 | 0,80 | 0,68 |
Глубина предохранительного откоса может быть принята равной полученной по формуле (2.5.7) при отсутствии каменной наброски, т.е. Т=Тр. Если эта глубина большая (Тр>1,5 м), то для ее уменьшения следует предусматривать каменную наброску в ковш размыва. В этом случае предусматривается наброска камня и глубина предохранительного откоса Т определяется исходя из расчетной глубины размыва в конце укрепления при ограниченном времени прохождении паводка и наличии каменной наброски по формуле:
, (2.5.9)
где Тпр – глубина размыва по формуле (2.5.5);
dгр – диаметр частиц грунта, м (по заданию);
dн – диаметр камня наброски (0,10-0,30), м;
Тр – глубина размыва по формуле (2.5.7);
WK – удельный (на 1 п.м. ширины предохранительного откоса) объем каменной наброски, определяется по формуле (2.5.10).
, (2.5.10)
где hкам – высота каменной наброски, которой задаются в пределах 0,30-0,80м.
При укреплении русла на выходе монолитным бетоном глубину заложения предохранительного откоса принимают равной расчетной глубине размыва, полученной по формуле (2.5.9). В случае укрепления откоса плитами ПК100.12.е эту глубину следует согласовать с размерами плит, укладываемых на откос с заложением 1:1,5. При заложении предохранительного откоса 1:1,5 при длине плиты 1,0м высота откоса 0,56м. Следует учесть конструкцию сопряжения плит русла и откосов (рис. 2.5.14).
Ширину N1 укрепления русла на выходе у подошвы насыпи (рис. 2.5.1) назначают по таблице 2.5.7
Таблица 2.5.7
| Отверстие | 1,0 | 2х1,0 | 3х1,0 | 1,2 | 2х1,2 | 3х1,2 |
| Ширина N1, м | 3,4 4,0 | 4,7 5,0 | 6,2 7,0 | 3,5 5,0 | 5,2 6,0 | 6,9 8,0 |
| Отверстие | 1,4 | 2х1,4 | 3х1,4 | 1,6 | 2х1,6 | 3х1,6 |
| Ширина N1, м | 3,7 5,0 | 5,6 7,0 | 7,6 8,0 | 4,0 5,0 | 6,1 7,0 | 8,3 9,0 |
| П р и м е ч а н и е: в числителе приведены значения для укрепления монолитным бетоном, в знаменателе – плитами ПК100.12.е |
Пример 2.5
Исходные данные: круглая одноочковая труба отверстием 1,6м пропускает сбросной расход Qc=5,0м3/с, расчетный диаметр частиц грунта лога dгр=0,5мм=0,0005м, укрепление русла монолитным бетоном.
Требуется запроектировать укрепление русла на выходе трубы.
По таблице 2.5.3 назначаем длину укрепления русла L=3,5м, по таблице 2.5.2 – ширину потока bп=1,60м. Эквивалентный диаметр трубы Дэ=1,6м. Эталонный расход QK=1,6* Дэ5/2=5,18м3/с.
Вычислим показатель степени n в формуле (2.5.2) по (2.5.3):
.
Вычислим ширину растекания потока по формуле (2.5.2):
.
Ширина конца укрепления по формуле (2.5.1):
N=Враст+3=4,5+3=7,5м.
Вычислим предельную глубину размыва по формуле (2.5.5), предварительно определив величину М по формуле (2.5.6):
,

Расчетная глубина размыва в конце укрепления при ограниченном времени прохождения паводка и отсутствии каменной наброски вычисляется по формуле (2.5.7), приняв для супесчаных грунтов по таблице 2.5.5 значение Кс равным 0,6.
|
|
|
.
Ширину предохранительного откоса вычислим по формуле (2.5.8). Коэффициент К1 найдем в таблице 2.5.6 по интерполяции для значений
Тр/Дэ =3,3/1,6=1,25 и L/Дэ=3,5/1,6=2,2 => К1=0,72;
Вп=3*3,3/0,72=13,75м.
Сопоставим ширину предохранительного откоса Вп=13,75м и ширину конца укрепления русла N=9,1м монолитным бетоном. Принимаем N=Вп=13,75м.
В случае укрепления русла плитами ПК100.12.е следует принять ширину конца укрепления кратной ширине стороны плиты, т.е. N=Вп=14,0м
При отсутствии наброски камня глубина размыва большая (Тр=3,3 м). Поэтому для уменьшения глубины размыва проектируем наброску камня высотой 0,60м средним диаметром камня 0,20м.
Удельный (на 1 п.м.) объем камня по формуле (2.5.10):
.
Расчетную глубину размыва при наличии наброски камня вычислим по формуле (2.5.9):

В практике проектирования укрепления принимают высоту наброски камня равной половине высоты предохранительного откоса. Оставляем высоту предохранительного откоса – 1,22м и высоту наброски камня – 0,60м.
При укреплении откоса плитами ПК 100.12.е в один ряд высота укрепления составит (0,56+0,12)=0,68 м, в два ряда (2*0,56+0,12)=1,24 м.






