В 1886 г. был спущен на воду танкер «Gluckauf» (дедвейт 2300 т). Это судно первым официально зарегистрировано Английским Ллойдом как танкер, поэтому часто историю танкеростроения обычно начинают с него.
Танкерный флот рос быстро. Увеличивались и размеры танкеров, особенно перевозящих сырую нефть (рис. 4.1).
В терминологии судостроения и судоходства появились понятия: суда-«мамонты» или Very Large Crude Carrier (VLCC) - дедвейтом от 175 до
300 тыс. т; суда-«монстры» или Ultra Large Crude Carrier (ULCC) - дедвейтом свыше 300 тыс. т. Самый большой танкер мира «Batillus» (Франция -
=
= 401,1 м; В = 63,0 м; Н = 35,9 м; DW = 554 тыс. т) вошел в строй в 1976 г. (рис. 4.2).
Танкеры тех времён строились с продольными переборками (от одной до трёх) и сравнительно большим количеством поперечных переборок, на расстоянии до 0,1L (или до 0,2L – при наличии промежуточных отбойных переборок), с одинарными бортами и днищем. Система набора корпуса – смешанная или продольная. Рамные связи с высокими стенками (так называемые отбойные листы) образуют мощные поперечные и продольные рамы, гасящие энергию слошинга – ударов жидкого груза о конструкции при качке судна. Примеры конструкций танкеров приведены на рис. 4.3, 4.4.
|
|
|
Для приёма балласта использовались грузовые танки. При сливе балласта загрязнялась окружающая акватория, поэтому с ростом тоннажа и размеров танкеров обострилась экологическая проблема их эксплуатации. В результате появились суда с чисто балластными танками, предназначенными только для заполнения водой в балластном переходе. Такие танкеры имеют и эксплуатационные преимущества: уменьшение коррозии грузовых танков, сокращение времени стоянки в порту (балласт может приниматься параллельно с операцией разгрузки), отсутствие необходимости мыть танки (если нет перемены сорта груза) и т.д.
Однако наибольший общественный резонанс вызывали катастрофы с танкерами. В 1967 г. у берегов Англии разломился супертанкер «Torrey Canyon». 120 тыс. т нефти вылилось в море, угрожая всему живому в
огромном районе. В 1978 г. у берегов Франции сел на мель и разломился супертанкер «Amoco Kadis», вылив в море 220 тыс. т нефти. Подобных
катастроф с тех пор было несколько десятков. Главными причинами аварий были несовершенные конструкции, плохое техническое состояние
судов, неопытные, плохо оплачиваемые экипажи, безответственность
инспектирующих технических служб и судовладельцев.
Рис. 4.1. Эволюция танкеров до середины 70-х годов XX века /21/
Рис. 4.2. Нефтеналивные танкеры типа «Батиллус» - самые большие
из всех транспортных судов (высота борта 35,9 м; осадка 28,6 м)
Рис. 4.3. Грузовой танк судна «Exxon Valdez» (вылившего в море
37 тыс. т нефти при столкновении с айсбергом у берегов Аляски
в 1989 г.)
|
|
|
Рис. 4.4. Мидель-шпангоут танкера типа «Владивосток» (DW = 15 тыс. т)
В связи с экологической опасностью танкеров Международная конвенция по предотвращению загрязнения с судов (MARPOL), принятая в 1973 г. с дополнительным Протоколом 1978 г., выдвинула ряд требований к конструкции корпуса танкеров, в том числе:
1) обязательное наличие чисто балластных танков;
2) ограничение предельных размеров танков с целью уменьшения разливов нефти при аварии;
3) создание конструктивной защиты в виде двойного дна и двойных бортов, высотой (шириной) до 2 м.
Когда в 70-х годах ХХ в. разразился энергетический кризис, множество «грязных» супертанкеров было выведено из эксплуатации. В результате формирования новых требований к танкерам в настоящее время строятся «экологически чистые» танкеры с двойным дном и двойными бортами. Набор двойных бортов и двойного дна не контактирует с жидким грузом. В результате упрощается зачистка танков. Для уменьшения коррозии подпалубного набора на многих современных танкерах набор стали размещать наружу (рис. 4.5).
Рис. 4.5. Мидель-шпангоут двухкорпусного танкера с надпалубным набором
Вместе с тем двухкорпусные танкеры имеют ряд недостатков по сравнению с однокорпусными: они дорогие и тяжёлые; срок службы их оказался меньшим в связи с повышенной коррозией и трудностью её контроля в междудонных и междубортных балластных цистернах. Двойной корпус представляет собой удвоенную поверхность для разрушительной работы коррозии. Мало того, такой корпус действует как термос, не давая морской воде охлаждать содержимое танков. А скорость коррозии увеличивается вдвое с повышением температуры на каждые 7 °С.
Грузовое пространство танкеров отделено от МО и форпика коффердамами (короткими пустыми отсеками длиной обычно в одну шпацию). Типичное расположение танков двухкорпусника приведено на рис. 4.6.
Рис. 4.6. Типичное расположение переборок и цистерн танкера
![]() |
Типичные поперечные сечения морских танкеров схематически представлены на рис. 4.7.
а) б) в)
Рис. 4.7. Типовые миделевые сечения крупнотоннажных танкеров
(закрашены балластные цистерны):
а – однокорпусный, с двумя продольными переборками; б – с двойным
бортом; в – с двойным дном; г – двухкорпусный с двумя продольными
переборками; д – двухкорпусный с одной продольной переборкой; е –
с промежуточной палубой и бортовыми балластными цистернами
(типа Coulombi Egg /18/)
Небольшие танкеры для сырой нефти являются обычно однокорпусными. На речных судах допускается применение так называемой двухъ-ярусной или навесной системы набора (рис. 4.8). В такой конструкции балки основного набора не проходят сквозь вырезы в рамных балках, как при традиционной (нарезной) системе набора. Рамные балки имеют два пояска (двутавр или швеллер). Одним из поясков они привариваются к пояскам основного набора. Такая конструкция является высокотехнологичной (исключаются сложные узлы пересечения балок) и удобной в эксплуатации (упрощается промывка танков), однако имеет меньшую несущую способность и надёжность, поэтому не допускается для морских судов.
Рис. 4.8. Мидель-шпангоут нефтеналивной баржи
с навесной конструкцией набора /16/
![]() |
Разновидностью танкеров являются продуктовозы (перевозящие лёгкие нефтепродукты) и химовозы – суда, имеющие встроенные или вкладные грузовые танки (обычно изнутри безнаборные и покрытые антикоррозионными покрытиями). Типичные поперечные сечения таких танкеров схематически представлены на рис. 4.9.
Рис. 4.9. Типовые миделевые сечения продуктовозов и химовозов
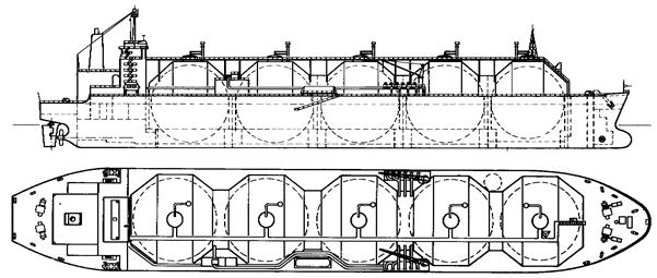
К танкерам по характеру груза относятся и суда, предназначенные для перевозки сжиженных газов – газовозы. Специфика груза, находящегося в охлажденном до -50...-160 °С состоянии, а иногда - и при высоком давлении, требует сложных конструктивных решений: применения специальных материалов, тщательной тепловой изоляции и т. д.
|
|
|
Рис. 4.10. Типовые миделевые сечения газовозов
![]() |
Примеры конструктивных схем газовозов показаны на рис. 4.10 – 4.12.
Рис. 4.11. Газовоз «Echigo Maru»
Рис. 4.12. Газовоз «WeserGas»









