В овцеводстве животных сортируют на следующие основные технологические группы: бараны (производители, пробники), матки (холостые, суягные, подсосные), ягнята, ремонтный молодняк, откормочное поголовье, валухи. Созданы специализированные предприятия для содержания овец одной половозрастной группы (маток, ремонтного молодняка и т. д.) и неспециализированные - для содержания овец разных половозрастных групп (табл. 3).
Овец одного пола и возраста объединяют в отары (группы) и содержат, как правило, в одном здании. В случае приотарного осеменения, зимнее и ранневесеннее ягнения проводят в овчарнях с тепляками (утепленное помещение) и родильном отделении. Для проведения весеннего ягнения, овчарни строят без тепляков или устраивают базы-навесы с тепляком.
Для проведения ягнения маток при цикличном осеменении отдельных групп, строят специально оборудованные овчарни, разгороженные на секции (огарки) вместимостью по 15...30 голов каждая. Овец кормят и поят, как правило, на выгульной площадке, а в период ягнения - внутри помещения.
|
|
|
Состав и взаимное расположение на участке основных производственных зданий и сооружений, а также объектов обслуживающего назначения определяют с учетом системы содержания овец, направления продуктивности, специализации и размера предприятия.
В производственной зоне размещают баранник для содержания баранов-производителей и баранов-пробников; овчарни для содержания маток или маток с ягнятами; овчарни для содержания и ягнения маток (оборудованные тепляком и родильным отделением); овчарни для искусственного выращивания и откорма ягнят; овчарни для выращивания ремонтного молодняка; баз-навес для укрытия овец; пункт искусственного осеменения; пункт стрижки овец; пункт дойки овец.
На овцеводческих предприятиях всех направлений продуктивности при бараннике и овчарнях размещают выгульно-кормовые площадки из расчета 3м2 на одну голову для баранов-производителей, баранов-пробников и маток, 2 м2 - для ремонтного молодняка и 1 м2 - для откормочного поголовья и валухов.
Овчарни проектируют, как правило, одноэтажными и прямоугольными (в плане). Овец содержат в секциях, вместимость которых для баранов-производителей должна быть не более 25 голов, баранов-пробников - 50 ягнят на искусственном выращивании в возрасте до 45 дней - 25, в возрасте старше 45 дней - 75, маток, ремонтного молодняка и откормочного поголовья - 250 голов.
Таблица 3
| Назначение предприятия | Направление продуктивности | ||
| тонкорунное и полутонкорун-ное | шубно-шерстное и мясо-молочное | каракульское и мясо-сальное | |
| Специализированные: маточные ремонтного молодняка откорма молодняка и взрослого поголовья Неспециализированные с законченным оборотом | 3;6;9 3;6;9 5; 10; 20 1,5; 3; 6; 9 | 0,5; 1,2 1;2 1; 2; 4 1;2;3 | 3; 6; 9 3; 6; 9 5; 10; 20 1,5; 3; 6; 9 |

|
|
|
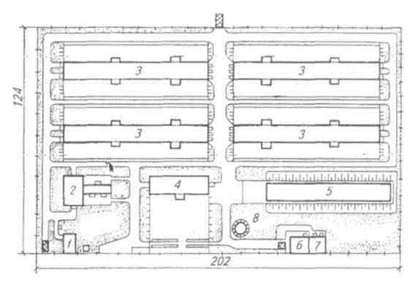
Рис. 7. Овцеводческая ферма с законченным оборотом стада на 2500 голов мясо-шерстного направления (все размеры даны в метрах):
1 - бригадный дом с санпропускником (7,5x12м); 2 - пункт искусственного осеменения (18 х 28 м); 3 - овчарни на 500 маток каждая (12x81 м); 4 - овчарня на 500 голов ремонтного молодняка (12x33 м); 5 - траншея для хранения силоса; 6 - изолятор (9 х 12м); 7 - амбулатория (9x9м); 8 - резервуар для воды вместимостью 100м3
В связи с тем, что по технологии предусмотрена постоянная перегруппировка отар, никаких стационарных перегородок, разделяющих помещения на секции, не делают.
Для зимнего ягнения маток в овчарне устраивают тепляк вместимостью 30 % общего поголовья маток. В тепляке предусматривают секции, каждая из которых рассчитана на 8...12 маток с ягнятами, родильное отделение со специальной площадкой (из расчета 115 м2 на 100 суягных маток), разделенной на секции по 1,8...2 м2, и несколько рядов индивидуальных клеток площадью 1,2...1,4 м2. Помещения для овец, как правило, строят шириной 12 или 18 м с несущим каркасом без промежуточных опор. На рисунке 7 показана овцеводческая ферма с законченным оборотом стада на 2500 голов мясо-шерстного направления.
ТЕМА № 2
МЕХАНИЗАЦИЯ ПРИГОТОВЛЕНИЯ КОРМОВ К СКАРМЛИВАНИЮ






