Это косвенный метод, основанный на определении границ области расположения корней характеристического уравнения на комплексной плоскости, что дает возможность приблизительно оценить качество управления.
Пусть имеется дифференциальное уравнение замкнутой САУ:
(a0pn + a1pn-1 + a2pn-2 +... + (an)y = (b0pm + b1pm-1 +... + bm)u.
Передаточная функция САУ
,
где p~1, p~2,...,p~m - нули передаточной функции, p1, p2,..., pn - полюса передаточной функции.
Переходный процесс зависит как от полюсов, так и от нулей, то есть определяется как левой, так и правой частями дифференциального уравнения. Это существенно усложняет анализ. Поэтому рассмотрим частный, но весьма распространенный случай, когда передаточная функция замкнутой САУ не имеет нулей:
.
Тогда уравнение динамики приобретает вид:
(a0pn + a1pn-1 + a2pn-2 +... + an)y = b0u.
Общее решение данного уравнения имеет вид:
y(t) = yсв + yвын = åAiepit + bо/an.
Время переходного процесса tпп определяется длительностью свободного процесса, который представляет собой сумму n экспоненциально затухающих составляющих (рис.88). Затухание каждой из составляющих определяется вещественной частью соответствующего плюса pi, которая для устойчивых систем должна быть отрицательна. Длительность переходного процесса определяется в основном свободной составляющей, имеющей наименьшее затухание, то есть наименьшее абсолютное значение вещественной части соответствующего полюса.

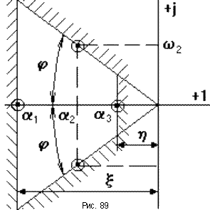
Если изобразить все полюса в комплексной плоскости корней (рис.89), то данный полюс (или пара комплексно сопряженных полюсов) будет наиболее близко расположен к мнимой оси.
Для приблизительной оценки качества САУ на плоскости корней выделяется область в виде трапеции, на сторонах которой находится хотя бы по одному корню, все остальные корни - внутри данной области. Эта область характеризуется параметрами: h - степень устойчивости (равна расстоянию от мнимой оси до ближайшего корня или пары комплексно сопряженных корней); m = tg(j) - колебательность (характеризует колебательность переходного процесса и величину перерегулирования); x - своего названия не имеет, равна вещественной части наиболее удаленного от мнимой оси корня.
По степени устойчивости h можно приблизительно вычислить время переходного процесса, которое определяется по моменту, когда свободная составляющая с наименьшим затуханием уменьшится до величины 
Ai, где Ai - начальное значение данной составляющей, то на рис.84:
yсв3(t) = A3
= 
A3 = >
.
В общем случае, когда передаточная функция замкнутой САУ имеет нули, то использование данного метода может дать большую ошибку. Однако всегда качество управления будет тем лучше, чем больше h и меньше m, поэтому данный метод имеет смысл для любых САУ, но приближенно.

Зная значения h, x, m можно оценить область, за которую кривая переходного процесса выходить не будет (рис.90). Для этого строятся две кривые: u(t,h) - миноранта и v(t,h) - мажоранта, ограничивающая кривую переходного процесса соответственно снизу и сверху так, что u(t,h)
e(t)
v(t,h), где e(t) = yo-y(t). Формулы для определения миноранты и мажоранты берутся в справочниках для конкретных случаев.






