В реальном трансформаторе эти соотношения несколько нарушаются, но при нагрузках близких к номинальным эти отклонения относительно малы.
Трансформатор на рис. 12-1 называется двухобмоточным. Во многих случаях применяются трансформаторы с несколькими первичными и вторичными обмотками – многообмоточные. Чаще всего применяются однофазные и трехфазные трансформаторы. С другим числом фаз применяются в специальных устройствах.
Силовые трансформаторы служат для преобразования энергии переменного тока в электрических сетях энергетических систем. Кроме того, имеются трансформаторы специального назначения: выпрямительные, сварочные, измерительные, и др.
Силовые трансформаторы бывают масляные и сухие. Из-за пожароопасности масла, выполняющего роль электрической изоляции и охлаждающего агента, в общественных и жилых зданиях и в ряде других случаев применяются сухие трансформаторы.
В паспортных табличках силовых трансформаторов указывается:
1. Номинальная полная мощность Sн, кВ×А;
2.Номинальные линейные напряжения обмоток Uл.н.,В; кВ;
3.Номинальные линейные токи Iл.н., А;
4.Номинальная частота переменного тока fн, Гц;
5. Число фаз, m;
6. Схема и группа соединений обмоток;
7. Напряжение короткого замыкания Uk;
8. Режим работы (длительный, кратковременный)
9. Способ охлаждения.
§12-2 Магнитопроводы трансформаторов.
Виды магнитопроводов – подразделяются на стержневые и броневые. Магнитопровод однофазного стержневого трансформатора имеет два стержня С для размещения обмоток и два ярма Я.

рис 12.2. а) стержневой трансформатор.
б) броневой трансформатор
Каждая из двух обмоток 1 и 2 состоит из двух частей, расположенных на двух стержнях, соединенных последовательно либо параллельно. Это приводит к увеличению коэффициента электромагнитной связи.
Броневой трансформатор имеет один стержень с двумя обмотками и развитое ярмо, которое частично закрывает обмотки подобно броне.
При трансформации трехфазного тока можно использовать три однофазных трансформатора – трансформаторную группу или групповой трансформатор. Однако чаще применяются трехфазные трансформаторы с общим для всех фаз магнитопроводом они компактнее и дешевле.
Если для трехфазных синусоидальных токов соблюдается условие:
ia + ib + ic =0,
то для синусоидальных токов трех трансформаторов также соблюдается условие:
Фа + Фb + Фс =0.
Поэтому если объединить три стержня 1, 2, 3 в общий стержень, то поток в нем будет равен нулю, и его можно удалить. Тогда получим трехфазный трехстержневой трансформатор. Конструкцию этого трансформатора можно упростить, расположив все три стержня в одной плоскости, что было предложено Доливо-Добровольским в 1889г. Эта конструкция получила всеобщее распространение. Влияние несимметрии магнитных линий (для средней фазы их длина несколько короче) весьма незначительно.
Броневые трансформаторы из-за сложности конструкции в нашей стране распространения не получили.

Рис.12.3 трансформаторная группа.
Рис. 12.4 идея образования трехфазного трехстержневого трансформатора.
По способу сочленения стержней с ярмами различаются трансформаторы со стыковыми и шихтованными магнитопроводами. Стыковые применяются редко из-за наличия немагнитных зазоров в местах стыков, вызывающих заметное увеличение магнитного сопротивления и вследствие этого намагничивающего тока.
Стержневые магнитопроводы имеют в сечении вид многоугольника, вписанного в окружность.


Рис.12.7 а) шихтованный; б) стыковой
Рис. 12.9.
Число стержней увеличивается с увеличением мощности (рис.12.9,б)
Конструкция обмоток трансформаторов должна удовлетворять требованиям высокой электрической и механической прочности, а также нагревостойкости.
В зависимости от номинального тока и напряжения, конструкции обмоток весьма разнообразны.
Обмотки изготавливаются из медных и алюминиевых проводов. Плотность тока в медных обмотках масляных трансформаторов 2 ¸ 4,5 А/мм2, в сухих 1,2 ¸ 1,3 А/мм2. В алюминиевых – на 40¸45% меньше. Во многих случаях витки и катушки обмоток наматываются из нескольких параллельных проводников.
В большинстве случаев обмотки трехфазных трансформаторов соединяются либо в звезду(U), либо в треугольник(D).Выбор схемы соединения обмоток зависит от ряда причин. Например, для сетей с напряжением 35кВ и более, выгодно соединять обмотку в звезду и заземлять нулевую точку, так как при этом напряжении выводов трансформатора и проводов линии передачи относительно земли в
раз меньше линейного, что снижает расход дорогостоящей электрической изоляции. Осветительные лампы накаливания более низкого напряжения имеют большую световую отдачу, а осветительные сети выгодно строить на более высокое напряжение. Поэтому вторичные обмотки трансформаторов, питающих осветительные сети, соединяются обычно в звезду и осветительные лампы включаются на фазное напряжение – между линейными и нулевыми проводниками.
В ряде случаев, когда ток обмотки невелик, при соединении в звезду обмотки получаются более дешевыми, так как число витков при этом уменьшается в
раза, а сечение проводов увеличивается также в
раза, вследствие чего трудоемкость изготовления обмотки и стоимость обмоточного провода уменьшается.
С другой стороны, с точки зрения влияния высших гармоник, и поведения трансформатора при несимметричных нагрузках, целесообразно соединять одну из обмоток трансформатора в треугольник.
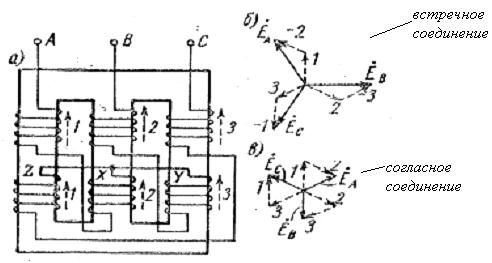
В некоторых случаях выполняют соединение обмоток по схеме зигзага, когда фаза обмотки разделяется на две части, которые располагаются на разных стержнях и соединяются последовательно. При этом вторая половина обмотки подключается встречно первой, потому что при встречном соединении (см. рис. 12-22,б) э.д.с. фазы в
раз больше, чем при согласном.

Рис. 12.22. соединение трехфазной обмотки зигзагом встречно.
.
Однако, при соединении обмоток зигзагом расход обмоточного провода на 15 % больше, поэтому это соединение применяется только при неравномерной нагрузке фаз с наличием токов нулевой последовательности.
Для включения трансформатора на параллельную работу с другими трансформаторами имеет значение сдвиг фаз между э.д.с. первичной и вторичной обмоток. Поэтому введено понятие о группах соединения обмоток.
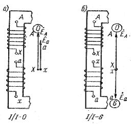
На рис. 12-23 а, показаны обмотки однофазного трансформатора, намотанные по левой винтовой линии и называемые поэтому левыми, причем у обоих обмоток начала А, а находятся сверху, а концы Х, х – снизу. Будем считать э.д.с. положительной, если она действует от конца обмотки к ее началу, а обмотки сцепляются с одним и тем же потоком. Вследствие этого э.д.с. этих обмоток в каждый момент времени действует в одинаковых направлениях. Поэтому э.д.с. ЕА и Еа совпадают по фазе.

Рис. 12.23. Группы соединения обмоток однофазного трансформатора.
Если же у одной из обмоток переменить начало и конец (рис. 12.23, б), то направление э.д.с., изменится на обратное, и э.д.с. ЕА и Еа будут иметь сдвиг на 180°. Такой же результат получится, если одну из обмоток выполнить «правой».
Для обозначения сдвига фаз обмоток трансформатора векторы их линейных э.д.с. уподобляют стрелкам часового циферблата, причем вектор обмотки ВН принимают за минутную стрелку, направленную на цифру 12, а вектор э.д.с., обмотки НН принимают за часовую стрелку. Тогда на рис. 12.23,а часы будут показывать 0 или 12 часов, и такое соединение обмоток называют группой 0. На рис. 12.23, б часы будут показывать 6 ч, и такое соединение обмоток называют группой 6. В этих случаях соединения обозначаются I/I-0 и I/I-6. В России (СССР) стандартизованы и изготавливаются однофазные трансформаторы только с соединением I/I-0.
В трехфазном трансформаторе при соединениях обмоток и э.д.с. как показано на рис. 12.24, а звезды фазных э.д.с. и треугольники линейных э.д.с., будут иметь вид на рис. 12.24 б. При этом одноименные векторы линейных э.д.с. (ЕАВ, Еаb) направлены одинаково, т.е. совпадают по фазе. Поэтому схема соединений обозначается Y/Y-0.
Если на рис. 12.24 а, произвести перестановку фаз обмотки НН и разместить фазу «а» на среднем стержне, фазу «b» - на правом, а фазу «с» - на левом, то на векторной диаграмме НН (рис. 12-24, б) произойдет круговая перестановка фаз a, b, c по часовой стрелке. При этом получится группа соединений 4, а при обратной перестановке будет группа 8.

Рис. 12-24. Группа соединений Y/Y-0.

Рис. 12-24,г. Группа Y/Y – 4
Если переменить местами начала и концы обмоток, то получатся еще группы соединений 6, 10, 2. Таким образом, при соединении по схеме Y/Y возможно шесть групп соединений (0, 2, 4, 6, 8, 10), причем все они четные. Такие же группы соединений можно получить по схеме D/D.
При соединении обмоток по схеме Y/D(рис. 12-25,а) векторные диаграммы э.д.с. обмоток ВН и НН будут иметь вид на рис. 12-25,б. При этом одноименные линейные э.д.с., например, `ЕАВ и `Еab будут сдвинуты на 30° и расположатся на циферблате по рис. 12-25, b, это соединение обмоток обозначается Y/D-11.
При круговых перестановках фаз и при перемаркировке начал и концов одной из обмоток можно получить также другие нечетные группы 1, 3, 5, 7, 9.
Большой разнобой в схемах и группах соединений трансформаторов нежелателен.

Рис. 12-25. трехфазный трансформатор со схемой и группой соединений Y/D-11
.
Поэтому ГОСТ 11677-75 предусматривает изготовление трехфазных силовых трансформаторов со следующими группами: Y/Y0 – 0; D/Y0 – 11; Y/D - 11; Y0/D - 11, а также Y – зигзаг – 11.
При этом первым обозначено соединение обмотки ВН, вторым – НН, а индекс «0» указывает на то, что наружу выводится нулевая точка обмотки. Обозначения начал и концов обмоток трансформаторов приводится в таблице 12-1.
Зажимы нулевой точки при соединении в звезду обозначаются 0, 0m, 0
Таблица 12 – 1
| Обозначение начал и концов обмоток | Наименование обмоток трансформатора | |
| Трехфазные | Однофазные | |
| A, B, C X, Y, Z a, b, c x, y, z Am, Bm, Cm Xm, Ym, Zm | А Х а х Аm Xm | Обмотки высшего напряжения: Начала Концы Обмотки низшего напряжения: Начала Концы Обмотки среднего напряжения: Начала Концы |
§12-5 Элементы конструкции и способы охлаждения трансформаторов (масляных).
Трансформаторы мощностью Sн£ 20 кВ×А имеют гладкие баки. Внутри бака возникает естественная конвекция масла: масло возле обмоток и магнитопровода, нагреваясь поднимается вверх, а у стенок бака охлаждается и опускается вниз. Наибольшая допускаемая температура масла в верхних слоях £ 95°С.
У трансформаторов Sн>20 до 1800кВ×А к баку привариваются трубы для увеличения поверхности охлаждения бака.
При Sн ³ 1800 кВ×А используются гладкие баки с подвешенными к ним трубчатыми охладителями(рис. 12- 26), которые сообщаются с внутренней полостью бака в ее верхней и нижней частях. Циркуляция масла в охладителе также совершается в результате естественной конвекции. При Sн=10¸60 МВ×А для более интенсивного отвода тепла от охладителей применяется их обдувание вентиляторами. При этом теплоотдача увеличивается на 50¸60%.
Еще более интенсивным является водяное охлаждение через водяные охладители (теплообменники).
На крышке трансформатора устанавливаются выводы для соединения с внешней сетью.
Трансформаторы с Sн> 75 кВ×А снабжаются расширителями, представляющими собой сосуд, соединенный при помощи патрубка с баком. Открытая поверхность масла, при колебаниях температуры окружающей среды и нагрузки трансформатора, всегда должна оставаться в пределах расширителя, что уменьшает открытую поверхность масла и его окисление.
Для предотвращения повреждения бака в случаях аварии и бурного разложения масла и выделения газа на крышке трансформатора устанавливается выхлопная труба.
Между расширителями и баком при Sн> 500 кВ×А устанавливается газовое реле, которое в случае аварии дает сигнал на отключение трансформатора от сети.
Глава 13. Намагничивание магнитопроводов трансформаторов.
§13-1 Явления, возникающие при намагничивании магнитопроводов.
При намагничивании магнитопроводов вследствие насыщения магнитной цепи возникают явления, требующие отдельного изучения. Рассмотрим режим холостого хода, когда первичная обмотка подключается на синусоидальное напряжение, а вторичная разомкнута.
При холостом ходе однофазного трансформатора для первичного напряжения действительно уравнение:

т. е. напряжение U расходуется на падение напряжения в обмотке r×i и уравновешивание э.д.с. – е. Если пренебречь незначительным падением напряжения r×i, то (ri=0)

Поэтому, если напряжение синусоидально u = Um × sin wt,то поток Ф также должен изменятся по синусоидальному закону Ф = Фm sin (wt - p/2). Если пренебречь потерями в стали, то потребляемый из сети ток холостого хода i = i0 является чисто реактивным намагничивающим током (i0 =i0r). Этим током создается синусоидальный поток Ф.


Рис. 13-1 определение реактивной составляющей намагничивающего тока.
Рис. 13-2 гармоники намагничивающего тока.
Но так как при появлении насыщения стали пропорциональность между Ф и i0r нарушается, то при синусоидальном потоке Ф ток i0r уже не будет синусоидальным.
На рис. 13-1 в левом квадранте представлена синусоидальная кривая потока Ф = f(t) в функции времени, а в правом квадранте - кривая потока в функции намагничивающего тока Ф = f(i0r). В нижнем квадранте: i0r = f(t) – несинусоидальная кривая намагничивающего тока, которая содержит все нечетные гармоники (n = 1, 3, 5….), из которых наряду с первой или основной (n = 1), наиболее сильной будет третья гармоника, которая при В = 1,4Т составляет 30%, пятая 15% от основной.
Кроме реактивной составляющей i0r, ток холостого хода i0 содержит также относительно малую активную составляющую i0а, которая синусоидальна и вызвана магнитными потерями в магнитопроводе. Полный намагничивающий ток
i0 = i0а + i0r
имеет несимметричную форму.
У трехфазного трансформатора с соединением обмоток U/D намагничивающие токи фаз i0rа, i0rb, i0rc, как и y однофазного будут содержать нечетные гармоники. В каждой фазе высшие гармоники тока будут распологаться относительно основной гармоники тока идентичным образом, как и у однофазного. Все четные гармоники отсутствуют (см. ТОЭ, Ф. Е. Евдокимов, с. 427).
Однако в то время как основные гармоники отдельных фаз будут сдвинуты относительно друг друга на 120°, то третьи на 3×120°= 360° или 0°, пятые на 5×120°=600° или на 240°, седьмые на 7×120°=840° или на 120°, девятые на 9×120°=3×360° или на 0° и т. д.
Таким образом, гармоники кратные 3 (n = 3, 9, 15…) в отдельных фазах обмотки будут совпадать по фазе. По этой причине в линейных токах, которые представляют собой разность токов соответствующих фаз, гармоники, гармоники кратные трем, будут отсутствовать (см. ТОЭ с. 439).
По этой причине при несинусоидальных напряжениях

Поэтому токи этих гармоник будут циркулировать внутри замкнутого треугольника (рис. 13-3, а), причем будучи равными по значению и совпадая по фазе, они образуют общий замкнутый циркуляционный ток.

Рис. 13-3. Питание трансформатора с соединением обмоток Y/D на холостом ходе:
а) – со стороны обмотки, соединенной в треугольник;
б) – со стороны обмотки, соединенной в звезду.
Если трансформатор с соединением обмоток Y/D питать на холостом ходу со стороны обмотки Y (рис. 13.3, б), то гармоники, кратные трем, в фазных токах существовать не могут, поскольку они должны совпадать по фазе и в то же время их сумма должна равнятся нулю, так как из нулевой точки выхода нет (а ток должен замкнуться, как и магнитный поток).
Однако при наличии насыщения для получения синусоидального изменяющегося магнитного потока в однофазном трансформаторе намагничивающий ток i0 должен содержать гармоники, кратные трем. Поскольку в рассматриваемом случае трехфазного трансформатора наличие таких гармоник тока невозможно, то поток будет несинусоидальным, а ток i0 будет близок к синусоидальному, т. к. гармоники n = 5, 7, 11… относительно малы. При такой форме тока i0r, кривая потока ФY вследствие насыщения будет иметь уплощенную или затупленную форму сверху (рис. 13-4,а)

Рис. 13-4. Формы кривой потока, при синусоидальном намагничивающем токе (а) и векторная диаграмма потока токов третьей гармоники (б).
Такая кривая потока наряду с основной гармоникой Ф1Y будет содержать также относительно сильную третью гармонику Ф3Y. Третьи гармоники Ф3Y всех трех фаз совпадают по фазе и будут индуктировать во вторичной обмотке, соединенной треугольником, три равные по значению и совпадающие по фазе э. д. с.Е3D (рис. 13-4,б). Складываясь в контуре треугольника, эти э.д.с. создают в этом контуре ток I3D, который вследствие преобладания индуктивного сопротивления будет почти чисто индуктивным. Создаваемые этим током потоки Ф3D будут почти полностью компенсировать поток Ф3Y. Поэтому результирующие потоки фаз будут практически синусоидальными.
Таким образом, по сравнению с питанием со стороны обмотки, соединенной треугольником, разница заключается практически только в том, что третья и кратные ей гармоники намагничивающего тока i0 возникают на вторичной стороне (рис. 13-3,б).
Из изложенного следует, что в случае соединения одной из обмоток трансформатора в треугольник(рис. 13-3 а, б) магнитные потоки Ф, э.д.с. и напряжения фаз остаются синусоидальными. Это обстоятельство составляет существенное преимущество трехфазных трансформаторов, у которых одна из обмоток соединена в треугольник.
Трансформатор с соединением обмоток Y/Y.
В нем кратные трем гармоники в намагничивающих токах первичной и вторичной обмоток существовать не могут. Однако, при этом магнитные потоки фаз наряду, с основной гармоникой Ф1 содержат еще третьи гармоники Ф3. Поэтому характерной особенностью соединения Y/Y является наличие третьих гармоник потока Ф3, которые во всех трех фазах магнитопровода совпадают по фазе. В результате этого фазные э.д.с. и напряжения несинусоидальны и содержат третьи гармоники э.д.с. Е3. Величина этих гармоник может быть значительной – до 30% от первой гармоники э.д.с. Е1. Однако линейные э.д.с. и напряжения синусоидальны, так как в разности э.д.с. двух фаз Е3 исчезают.
Таким образом, в трехфазных трансформаторах с соединением Y/Y возникают неблагоприятные явления:
- Искажения кривых фазных напряжений.
- В трехстержневых трансформаторах также добавочные потери от вихревых токов.
Поэтому такие трансформаторы, как правило, не строят.
Расчет магнитной цепи трансформатора производится также, как и у электрических машин и других электромагнитных устройств – по закону полного тока для средней магнитной линии
,
Где Н – напряженность магнитного поля;dl – элементы длины магнитных линий по участкам; åi – полный ток, охватываемый магнитной линией.
Глава 14. Схема замещения трансформатора и ее параметры
§14-1. Индуктивности обмоток и электромагнитное рассеяние.
В трансформаторах со стальным магнитопроводом m ¹ const, поэтому L и М ¹ const, как и в остальных электромагнитных системах, магнитная проницаемость стали m во время цикла перемагничивания непостоянна, поэтому в течение этого цикла непостоянны также собственные индуктивности L и взаимная индуктивность М обмоток трансформатора. В результате при подключении трансформатора к сети с синусоидальным напряжением в его намагничивающем токе i0 возникают высшие гармоники.

Рис. 14-1. Магнитные потоки трансформатора при одностороннем намагничивании (i1¹0, i2 =0).
Но при работе трансформатора на ток i0 накладывается ток нагрузки, по отношению к которому ток i0 и, в особенности, его высшие гармоники малы и ими можно пренебречь, а учитывать только основную гармонику тока i0. При этом можно полагать, что для данного режима работы m, L и М постоянны, а все силовые линии полностью замыкаются по магнитопроводу и поэтому сцепляются со всеми витками первичной и вторичной обмоток.
Пусть поток Фс создается током первичной обмотки i1 при i2 = 0. Тогда собственная индуктивность первичной обмотки от потока в магнитопроводе
Lc1 = w1Фс/ i1 (14.1)
Величину Lc1 можно выразить также через магнитное сопротивление магнитопровода
, (14-2)
где lk, Sk и mk соответственно означают длину, площадь сечения и магнитную проницаемость k-го участка магнитной цепи. При этом
Фс = F1/ Rmc = w1× i1 / Rmc (14-3)
и после подстановки этого значения Фс в (14-1) получим:
(14-4)
Значение Rmс может быть определено по данным расчета магнитной цепи или опытным путем:
, где lk, mk, Sk – длина, магнитная проницаемость и площадь сечения k-го
участка.
Аналогично индуктивность вторичной обмотки от потока магнитопровода Фс
(14-5)
а взаимная индуктивность от потока:
Мс = w1×w2 / Rmс (14-6)
Магнитное сопротивление потоку Фс одинаково для поля обеих обмоток и тогда
, (14-7)
Кроме потока Фс, током i1 создается также поток Ф в 1, силовые линии которого частично замыкаются по воздуху. Потокосцеплениям этого потока y в 1 и y в 2 c первичной и вторичной обмотками соответствует собственная индуктивность первичной обмотки и взаимная индуктивность обмоток:
и взаимная индуктивность двух обмоток Мв12 = y в 12 / i1
При питании вторичной обмотки током i1 создается поток Фв2, замыкающийся частично по воздуху. Потокосцеплениям ψB1 и ψB21 этого потока с первичной и вторичной обмотками соответствует собственная индуктивность вторичной обмотки
L в 2 = ψ в 2 / i2
и взаимная индуктивность двух обмоток M в 21 = ψ в 21 / i2. При этом, согласно принципу взаимности, M в 12 = M в 21 = M в. Для потоков Фв1 и Фв2 имеют более сложный характер, чем поле потока Фс, поэтому
(14-8)
Полные собственные индуктивности обмоток:
(14-9)
и полная взаимная индуктивность
M = Mc + M в, (14-10)
где Lс1, Lс2 и Мс >>> L в 1, L в 2, и M в, так как обмотки через воздух относительно малы.
Понятие об электромагнитном рассеянии.
Полнота электромагнитной связи двух индуктивно связанных цепей характеризуется коэффициентом связи этих цепей
< 1, (14-11) 
что обусловлено наличием потоков Ф в 1 и Ф в 2. Явление неполной электромагнитной связи называется электромагнитным рассеянием, поэтому, наряду с «С» введено понятие коэффициента электромагнитного рассеяния
(14-12)
Степень неполноты электромагнитной связи (рассеяние) оказывает большое влияние на многие технические показатели и характеристики трансформаторов и вращающихся электрических машин.
В трансформаторах с ферромагнитным магнитопроводом электромагнитная связь чрезвычайно высока, а рассеяние мало: с = 0,998 ¸ 0,995; s = 0,001 ¸0,004; поэтому определить s расчетом или опытом трудно и возникает необходимость в непосредственном определении параметров, характеризующих электромагнитное рассеяние.
§14-2. Уравнение напряжения трансформатора.
Рабочий процесс трансформатора можно исследовать на основе уравнений напряжения его обмоток. Емкостными связями до f < 1 ¸ 5 кГц пренебрегаем. В трансформаторах без ферромагнитных сердечников L11, L22 и М постоянны.

Рис. 14-2. схема однофазного двухобмоточного трансформатора.
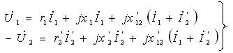
Пренебрегая магнитными потерями в магнитопроводе для однофазного двухобмоточного трансформатора действительны следующие дифференциальные уравнения напряжений на основании второго закона Кирхгофа: пусть L11, L22 и М = const, тогда:
(14-13)
где u1, u2, i1, i2 – мгновенные значения напряжения и тока, положительные направления которых указаны на рис. 14-2. Причем первичная обмотка – приемник, а вторичная – источник электрической энергии.
При синусоидальных напряжении и токе вместо дифференциальных выражений удобнее пользоваться комплексными уравнениями для действующих значений токов и напряжений. Для этого в (14-3) следует подставить

и после дифференцирования сократить на 
(14-14)
где х11 = wL11; х22 = wL22; х12 = wМ (14-15), представляют собой полные собственные и взаимные индуктивные сопротивления обмоток.
При синусоидальной нагрузке трехфазных трансформаторов электромагнитные процессы протекают во всех фазах одинаково и электромагнитные величины в каждой фазе сдвинуты по фазе на 120°. При этом комплексы
1,
2,
1и
2 представляют собой фазные значения напряжений и токов.
Уравнения (14-13) и (14-14) полностью определяют процессы, происходящие в трансформаторе, и позволяют решать задачи, связанные с работой трансформатора.
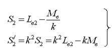
Например, если, определив из первого уравнения (14-14) комплекс I1, и
подставить его значение во второе уравнение(14-14), то получим зависимость вторичного напряжения
2 от тока нагрузки
2:
(14-16)
Первый член правой части выражения (14-16) определяет величину
2 =
20 при холостом ходе, т.е. при
2 = 0:
, (14-17)
При коротком замыкании вторичной обмотки, когда
1=0, а
2 =
2k
, (14-18)
Если пренебречь r1 и r2 (которые <<< x11, x22), множитель в квадратных скобках будет:
, (14-19)
т.е. значение коэффициента рассеяния согласно равенству (14-12).
Тогда:


Отсюда видно, что падение напряжения и ток короткого замыкания определяются небольшой долей коэффициента рассеяния s полного индуктивного сопротивления х22 , обусловленной электромагнитным рассеянием. Это же можно сказать и о ряде других величин, характеризующих эксплуатационные свойства трансформаторов и вращающихся электрических машин. Кроме того, ввиду неравенства чисел витков w1 ¹ w2 параметры r1, r2, L11, L22, M, x11, x22 и x12 u1, u2,а также напряжения u1, u2, U1, U2 и токи i1, i2, I1, I2 могут сильно различаться по значению.
Поэтому определение величин, характеризующих электромагнитное рассеяние, составляет важную задачу теории электрических машин.
В связи с изложенным теория электрических машин развита в следующих тесно связанных друг с другом направлениях:
1. Индуктивно связанные обмотки приводятся к одинаковому числу витков, в результате чего порядки напряжений токов и параметров этих обмоток становятся соответственно одинаковыми.
2. Из полных собственных индуктивностей L11, L22 и индуктивных сопротивлений x11 и x22 выделяются составляющие – индуктивности рассеяния S1 и S2 и индуктивные сопротивления рассеяния x1 и x2. При этом остающиеся части L11-S1, L22-S2, x11- x1 и x22-x2
соответствуют индуктивно связанным цепям с полной связью (с = 1).
3. Независимо от расчета полных индуктивностей и индуктивных сопротивлений, разрабатываются непосредственные методы расчета малых параметров (рассеяния), чем достигается необходимая точность в определении этих малых параметров рассеяния.
4. От электрических цепей с индуктивной связью делается переход к схемам замещения с электрической связью.
5. Индуктивности и индуктивные сопротивления рассеяния вводятся в явном виде в расчетные соотношения и схемы замещения, что позволяет с необходимой точностью рассчитывать величины, зависящие от электромагнитного рассеяния.
§14-3. Схемы замещения двухобмоточного трансформатора.
Приведение вторичной обмотки к первичной.
Так как в общем случае w2 ¹w1,то Е2 ¹ Е1 и I2 ¹ I1,то различны и параметры обмоток, т.е. их активные и индуктивные сопротивления, что затрудняет количественный учет процессов, происходящих в трансформаторах, и построение векторных диаграмм.
Чтобы избежать этих трудностей, обе обмотки трансформатора приводятся к одному числу витков. Обычно приводят вторичную обмотку к первичной, имеющую такое же количество витков, с условием, чтобы эта операция приведения не отразилась на энергетическом процессе. При этом число витков вторичной обмотки изменяется в «k» раз

В результате такого приведения
2 = k×
2;
2 = k×
2. (14-21)
Чтобы мощность приведенной и реальной обмоток при всех режимах работы были равны, необходимо соблюдать равенство
2×
2 =
2×
2, где наведенный вторичный ток
2 =
2/k. (14-22)
Намагничивающие силы приведенной и реальной обмоток
2×w¢2 =
2×w2 (14-23)
Суммарное сечение всех витков приведенной обмотки должно быть таким же, как и у реальной обмотки, а сечение каждого витка, должно уменьшаться в k-раз. Но поскольку приведенная обмотка имеет в k-раз больше витков, то
r¢2 = k2r2 (14-24)
x¢2 = k2x2 (14-25)
Очевидно, что потери в приведенной и реальной обмотках одинаковы:

Одинаковы также относительные падения напряжения во вторичных обмотках приведенного и реального трансформаторов:

Схема замещения без учета магнитных потерь.
Сделаем в уравнениях (14-14) подстановки:
(14-26)
Умножив при этом второе уравнение (14-14) на k, получим
(14-27)
При переходе к электрической связи двух цепей в соответствующей схеме замещения должна появится общая для обеих цепей ветвь, которая обтекается суммой токов обеих цепей İ1 +İ¢2. Соответственно этому, в уравнениях напряжений этих цепей должны появиться одинаковые члены с множителями (I1 +İ¢2). Из уравнений (14-27) видно, что для получения в них таких членов нужно прибавить к первому уравнению и вычесть из него член jkx12I¢2. При этом:
(14-28)
Введем следующие наименования и обозначения
- приведенное активное сопротивление вторичной обмотки
r¢2=k2 r 2 (14-29)
- приведенное взаимное индуктивное сопротивление
x¢12 = kx12; (14-30)
- индуктивное сопротивление рассеяния первичной обмотки
x1 = x11 - k×x12; (14-31)
- приведенное индуктивное сопротивление рассеяния вторичной обмотки,
(14-32)
где
(14-33)
представляет собой непреведенное индуктивное сопротивление вторичной обмотки.
В результате подстановок в (14-28) получим следующие уравнения напряжений приведенного трансформатора:

(14-34)
Этим уравнениям соответствует схема замещения рис. 14-3, а. Аналогичным образом можно также преобразовать уравнения напряжения в дифференциальной форме (14-13), произведя в них подстановки
u2 = u¢2/k; i2=ki¢2 (14-35).
При этом получается схема замещения рис. 14-3, б, где:
(14-36)
(14-37)
S1 и S¢2 представляют собой индуктивности рассеяния первичной и вторичной обмоток, а
(14-38)

приведенную взаимную индуктивность.

Рис. 14-3. Схемы замещения двухобмоточного трансформатора без учета магнитных потерь (Т-образные):
а) – в комплексной форме
б) – в дифференциальной форме.
По уравнениям (14-34) и схеме замещения рис. 14-3 получается идеальный трансформатор, у которого приведенные собственные взаимные индуктивные сопротивления одинаковы и равны
и поэтому с2 = 1 и s = 0
Параметры схемы замещения по рис. 14-3.
При
:
Приведенная взаимная индуктивность:

или на основании
(14-4)
(14-39)
Последний член (14-39) весьма мал по сравнению с первым, поэтому с достаточной точностью
(14-40)
Соответственно, согласно выражениям x11 = wL11; x22 = wL22; x12 = wM; x¢12 = kx12; и
M¢12 = Lc1,
,
, или
(14-41)
Следовательно, сопротивление x¢12 с большой точностью равно сопротивлению самоиндукции первичной обмотки от потока, замыкающегося по магнитопроводу.
Ветви 1-2 схем замещения называются намагничивающими ветвями; их ток:
, создает результирующую намагничивающую силу обмоток трансформатора:
, которая в свою очередь создает результирующий поток стержня с амплитудой Фс.
Напряжение на этих ветвях:
, т. е. равно по значению и обратно по знаку э.д.с. Е1, которая индуктируется в первичной обмотке результирующим потоком магнитопровода и отстает от него на 90°.
Индуктивности рассеяния обмоток (без математических выкладок):
(14-42)
(14-43)
Таким образом, индуктивности рассеяния S1, S2 и S¢2 и индуктивные сопротивления рассеяния
x1=wS1; x2=wS2; x¢2=wS¢2, (14-44)
при
, определяются магнитным потоком, замыкающимся главным образом по воздуху.
Однако вторыми членами равенств (14-42) и (14-43) по сравнению с первыми, пренебречь нельзя, и поэтому потоки, замыкающиеся по воздуху можно назвать потоками рассеяния лишь условно.
Схема замещения с учетом магнитных потерь.
Потери в стали магнитопровода Рмг при заданной частоте пропорциональны величинам:
Рмг ~ В2с ~ Ф2с ~ Е21 ~ U212,
т.е. пропорциональны квадрату напряжения U12 на зажимах 1-2 намагничивающей цепи схемы замещения рис. 14-3, а. Если к этим зажимам параллельно х12 = хс1 подключить активное сопротивление rмг, то потери в этом сопротивлении будут также пропорциональны U212. Значение сопротивления rмг можно подобрать так, чтобы потери в нем равнялись магнитным потерям:

(14-45)
Отсюда:

Рис. 14-4. Намагничивающая цепь с учетом магнитных потерь.
где m1 – коэффициент подбора.
Намагничивающий ток
M =
1+
2, разделяется в двух ветвях намагничивающей цепи на активную
МА и реактивную
МГ составляющие, из которых первая определяет мощность магнитных потерь, а вторая создает поток магнитопровода. Однако, расчеты вести удобнее, если объединить две параллельные ветви в одну общую ветвь. Тогда:
. (14-46)
Так как rмг>> x¢12, то
;
, (14-47)
При увеличении насыщения магнитопровода, т.е при увеличении Фс, Е1 или U1, приведенное индуктивное сопротивление x¢12 при f = const уменьшается. Однако, при этом rмг » const, а значение rM уменьшается.
Схема замещения с учетом магнитных потерь согласно рис. 14-4, б показана на рис. 14-5, а. Если использовать обозначения:
(14-48),
то схему замещения можно использовать проще (рис.14-5, б).

Рис. 14-5. Схема замещения двухобмоточного трансформатора с учетом магнитных потерь.
В режиме холостого хода
и
- току холостого хода.
В итоге получилась весьма простая Т-образная схема замещения трансформатора, представляющая собой пассивный четырехполюсник. Сопротивление намагничивающей цепи этой схемы zм отражает явления в ферромагнитном магнитопроводе. Оно значительно больше сопротивления Z1 и Z¢2, которые включают в себя активные сопротивления и индуктивные сопротивления рассеяния обмоток. Для силовых трансформаторов в относительных единицах Zм* = 25 ¸ 200; z1*» z¢2* = 0.025 ¸ 0.10.
Уравнения напряжений и схему замещения трансформатора можно представить также в относительных единицах, имея в виду что Uн = zн × Iн.
Упрощенная схема замещения.
Поскольку zм >> z1» z¢2, то можно положить во многих случаях zм = ¥, что означает разрыв намагничивающей цепи схемы замещения, т.е. Iм = 0, что аналогично пренебрежению намагничивающим током или током холостого хода, что в ввиду малости
во многих случаях допустимо. При этом

При zм = ¥ и Iм = 0 схема замещения принимает вид, изображенный на рис. 14-6. Параметры этой схемы:
(14-49)

Рис. 14-6. Упрощенная схема замещения трансформатора
называются соответственно: полным, активным и индуктивным сопротивлениями короткого замыкания. Обычно в силовых трансформаторах z k* = 0,05 ¸ 0,15.
Замыкание вторичных зажимов трансформатора накоротко, соответствует замыканию накоротко вторичных (правых) зажимов схемы замещения и при этом сопротивление трансформатора будет равным zк.
§14-4. Определение параметров схемы замещения трансформатора.
Могут быть определены расчетным и опытным путем.
Расчетное определение:
Активные сопротивления обмоток легко рассчитываются по обмоточным данным, если известны коэффициенты вытеснения тока, учитывающие увеличение активных сопротивлений под влиянием поверхностного эффекта. Обычно эти коэффициенты находятся в пределах 1,005 ¸ 1,15.
Параметры намагничивающей цепи легко определяются по данным расчета магнитной цепи по закону полного тока

или на основании вычисления энергии магнитного поля магнитопровода или его намагничивающей (реактивной) мощности (см. §13-2).
(14-45).
Чтобы найти х¢12 для заданного значения э.д.с.
(12-3)
надо определить поток Фс, затем намагничивающую силу F по формулам (13-1) и (13-2)
, (13-1)
где: nф – число стыков магнитопровода, d - величина зазора для шихтованных магнитопроводов d = 0,003 ¸ 0,005мм. Действующее значение основной гармоники намагничивающего тока
, (13-3)
где w - число витков обмотки, k – коэффициент, учитывающий наличие высших гармоник в магнитопроводе: при Вст = 1Т k = 1,5 и Вст = 1,4Т k = 2,2. Магнитная характеристика показана на рис. 13-1. Тогда:
.
Метод противовключения.
Наибольшую трудность, вследствие сложного характера магнитных полей в воздухе, представляет определение индуктивных сопротивлений рассеяния х1 и х¢2, имеющих важное значение, влияние которых на эксплуатационные показатели и характеристики трансформатора гораздо больше, чем влияние параметров намагничивающей цепи. Для вычисления х1 и х¢2 используется метод противовключения (метод Роговского в 1909 г.), который состоит в том, что: если питать трансформатор с первичной и вторичной сторон
такими напряжениями, что
,то поток Фс = 0 и Е1 = Е2 = 0.
Намагничивающие силы первичной и вторичной обмоток при этом равны по значению и противоположны по знаку F1 = - F2, откуда и происходит название метода.
Если измерить U1, U2, I1, I2 и мощности P1 и P2, то можно определить параметры
, где m – число фаз.
и, наконец, сопротивления рассеяния

В связи с изложенным можно сказать, что в режиме противовключения существуют только магнитные поля рассеяния.
Идея метода противовключения лежит в основе всех расчетных методов определения индуктивных сопротивлений рассеяния.
При w 1 ¹ w 2 осуществление опыта Роговского практически невозможно, так как в магнитопроводе даже при небольшом нарушении условия: 
возникает заметный поток Фс, сравнимый с потоком в воздухе Фв. Поэтому опыт проводят на макетах с w1 = w2 или при замене вторичной обмотки приведенной.
В силу значительных трудностей обычно рассчитывается сумма индуктивных сопротивлений рассеяния, исходя из картины магнитного поля в режиме противовключения, когда
и все магнитные линии направлены вертикально вверх и их длина l d > l
- коэффициент Роговского, где ld - высота стержня магнитопро-

вода; l – высота катушки.
§14-5. Опытное определение параметров схемы замещения трансформатора.
Определяются по данным опыта холостого хода и короткого замыкания.

Рис. 14-10. Схема опыта холостого хода однофазного трансформатора.
Измеряемые величины очевидны из рис.14-10. Из данных опыта холостого хода (О.Х.Х) определяются:
- полное, активное и индуктивное сопротивления х.х.
; (14-60)
- коэффициент трансформации
(14-61)
- коэффициент мощности х.х.
(14-62)
; (14-70)
в действительности z1Io можно пренебречь и положить
.

Рис. 14-11. Векторная диаграмма трансформатора при холостом ходе.
Для трехфазного трансформатора при соединении первичной обмотки в звезду
(14-63)
а при соединении ее в треугольник:
(14-64)
Коэффициент мощности холостого хода:
(14-65)
Целесообразно определять относительные значения перечисленных сопротивлений. Из схемы замещения при холостом ходе следует
(14-68)
В силовых трансформаторах r1 и x1 в десятки, сотни раз меньше rM и xM. Поэтому с большой точностью можно считать, что параметры холостого хода равны параметрам намагничивающей цепи:
zo = zM; ro = rM; xo = xM, (14-69)
и мощность холостого хода Ро » Рмг – магнитным потерям в магнитопроводе, а
(14-71)
Вследствие преобладания индуктивного сопротивления при Uo = Uн коэффициент мощности cosφ ≤ 0,1.
Так как r1<< rM, то потери холостого хода практически представляют собой потери в стали магнитопровода, включая потери от вихревых токов в стенках бака.
Опыт холостого хода производят обычно для ряда значений Uo: от Uo» 0,3 Uн до Uo» 1,1 Uн и по полученным данным строят характеристики холостого хода: I, Po, zo, ro, cosφo = ¦(Uo).
Опыт короткого замыкания.

Рис. 14-13. Схема опыта короткого замыкания.
Вторичная обмотка замыкается накоротко, а к первичной подводится пониженное напряжение, чтобы I1 ≤ Iн. При этом:
(14-72)
Для трехфазного трансформатора по показаниям приборов определяются средние значения линейного напряжения Uк.л., линейного тока Iк.л. и мощности короткого замыкания Рк.
Напряжение Uк = Uк.н, при котором ток короткого замыкания равен номинальному: I = Iн, носит название напряжения короткого замыкания и обозначается «Uк».
Величина Uк в относительных единицах равна сопротивлению короткого замыкания в относительных единицах
(14-77) 
Величина выражается на практике также в процентах:
(14-78)
Векторная диаграмма трансформатора при коротком замыкании с Iк = Iн изображена в двух видах на рис. 14-15, а, б. Треугольник на рис. 14-15, б называется треугольником короткого замыкания. Его катеты представляют собой активную и реактивную составляющие напряжения короткого замыкания:
(14-79)

Рис. 14-15. Векторные диаграммы трансформатора при коротком замыкании с Iк = Iн.
В трансформаторах мощностью Sн = 10кВ×А обычно cosφk» 0,65, а при Sн = 60кВ×А обычно cosφk» 0,05, т.е. в мощных трансформаторах преобладают составляющие ukr и xk по сравнению с uka и rk.Значение uka* приводится к температуре обмоток 75°С.
Напряжение короткого замыкания uk характеризует значение активных сопротивлений r и индуктивных сопротивлений рассеяния x трансформатора, и является поэтому важной характеристикой трансформатора. Значение uk% указывается в паспортной табличке трансформатора. В силовых трансформаторах uk% = 4,5 ¸ 15. Первая цифра относится к трансформаторам с номинальным линейным напряжением Uлн ≤ 10 кВ, а вторая – с Uлн = 500 кВ, которые обладают большим рассеянием между обмотками.
Значение э.д.с. Е1 в опыте короткого замыкания при Iк = Iн в 15 ¸ 40 раз меньше Uн. При этом магнитные потери в 225 ¸1600 раз меньше, чем в случае U = Uн, и весьма малы.Поэтому мощность короткого замыкания Рк с большой точностью представляет собой мощность электрических потерь в обмотках, включая добавочные потери в стенках бака и в крепежных деталях от потоков рассеяния. Следовательно, и rk = r1 + r¢2, определенное из опыта короткого замыкания, является эквивалентным сопротивлением с учетом этих потерь.
Если короткое замыкание происходит при номинальном первичном напряжении, то
,
или в относительных единицах 
Если, например, uk% = 10%, то Iк =10 Iн;
uk% = 4,5%, то Iк =22,2 Iн;
uk% = 15%, то Iк =6,7 Iн.
Глава 15. Работа трансформатора под нагрузкой.
§15-1. Физические условия работы.
Будем иметь в виду однофазный трансформатор или трехфазный с симметричной нагрузкой, когда мо






