- знать: основные формулы расчета железобетонной ребристой плиты покрытия;
- уметь: определять несущую способность ребристой плиты покрытия;
- подбирать сечение арматуры;
- определять погиб ребристой плиты.
Исходные данные:
| № варианта | Класс бетона | Класс продольной арматуры | Длина плиты l, м | Ширина плиты b, м | Размеры приведенного сечения плиты | Расчетная нагрузка на 1 м2 | ||
, см | , см | h, см | ||||||
| В25 | А400 | 6,0 | 1,2 | 9,2 | ||||
| В20 | А400 | 6,0 | 1,2 | 7,5 | ||||
| В25 | А500 | 6,0 | 1,2 | 8,6 | ||||
| В30 | А400 | 6,0 | 1,2 | 7,0 | ||||
| В25 | А400 | 6,0 | 1,5 | 9,0 | ||||
| В40 | А600 | 6,0 | 1,5 | 10,4 | ||||
| В30 | А400 | 6,0 | 1,5 | 11,1 | ||||
| В30 | А400 | 6,0 | 1,8 | 12,0 | ||||
| В20 | А500 | 6,0 | 1,8 | 12,0 | ||||
| В25 | А500 | 6,0 | 1,8 | 7,8 | ||||
| В20 | А400 | 6,0 | 2,0 | 8,2 | ||||
| В30 | А400 | 6,0 | 2,0 | 10,0 | ||||
| В30 | А400 | 6,0 | 2,0 | 8,0 | ||||
| В40 | А400 | 6,0 | 2,2 | 9,3 | ||||
| В35 | А500 | 6,0 | 2,2 | 9,5 | ||||
| В25 | А400 | 6,0 | 1,2 | 10,8 | ||||
| В20 | А400 | 6,0 | 1,2 | 9,2 | ||||
| В25 | А400 | 6,0 | 1,2 | 7,5 | ||||
| В30 | А600 | 6,0 | 1,2 | 8,6 | ||||
| В25 | А400 | 6,0 | 1,5 | 7,0 | ||||
| В40 | А500 | 6,0 | 1,5 | 9,0 | ||||
| В30 | А400 | 6,0 | 1,5 | 10,4 | ||||
| В30 | А500 | 6,0 | 1,8 | 11,1 | ||||
| В20 | А400 | 6,0 | 1,8 | 12,0 | ||||
| В25 | А400 | 6,0 | 1,8 | 12,0 | ||||
| В20 | А600 | 6,0 | 2,0 | 7,8 | ||||
| В30 | А400 | 6,0 | 2,0 | 8,2 | ||||
| В30 | А400 | 6,0 | 2,0 | 10,0 | ||||
| В40 | А400 | 6,0 | 2,2 | 8,0 | ||||
| В35 | А400 | 6,0 | 2,2 | 9,3 | ||||
| В25 | А500 | 6,0 | 1,2 | 9,5 | ||||
| В20 | А400 | 6,0 | 1,2 | 10,8 | ||||
| В25 | А500 | 6,0 | 1,2 | 12,2 |
Порядок выполнения практической работы:
1. Ребристая плита перекрытия длинномерная конструкция поэтому нагрузки собираются на 1м2, а расчет будем производить на 1 м длины при ширине плиты b (м) нагрузка будет равна:
qр = Nр·b, (кН/м);
где: Nр – расчетная нагрузка на 1 м2 перекрытия (кН/м2);
b – ширина плиты (м).
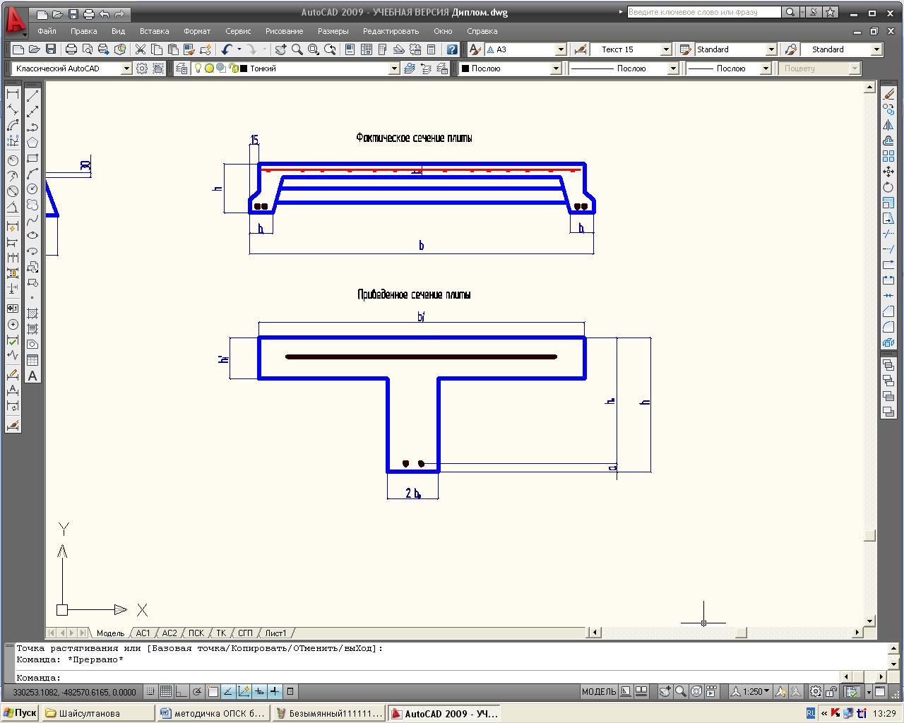
2. Назначить размеры приведенного сечения, который имеет вид тавра (полка может быть сверху и снизу)
bр - сумма двух ребер, (мм)
где: b – ширина плиты (мм);
=b – 30, (мм)
где: b – ширина плиты (мм);

3. Определить изгибающий момент:
, (кН·м)
где:
- расчетная нагрузка с учетом ширины плиты, (кН/м);
- коэффициент надежности по назначению;
- расчетная длина плиты, (м): определяется по формуле:
l – B, (м)
где: l – длина плиты, (м);
В – зазор между плитами, (м) В=0,1 м
4. Определить поперечную силу:
, (кН)
где:
- расчетная нагрузка с учетом ширины плиты, (кН/м);
- расчетная длина плиты, (м).
5. Определить площадь сечения продольной арматуры в каркасе КР-1
,
где: Rb – расчетное сопротивление бетона на сжатие, (МПа), (15, стр.22, табл. 6.8)
М- изгибающий момент, (кН·см);
- ширина полки, (м)
по таблице (Приложение Б) определяем коэффициент η.
Определить площадь поперечного сечения продольной (рабочей) арматуры в каркасе Кр-1
Аs =
, (см2)
где: М- изгибающий момент, (кН·см);
RS – расчетное сопротивление арматуры на растяжение, (МПа), (15, стр.33, табл. 6.14)
h0 – расчетная высота сечения, (см) определяется по формуле;
h0=h-ав, (мм)
где: h – высота плиты, (мм);
ав – защитный слой бетона, (мм);
η – коэффициент зависящий от А0
принимаем 4 стержня диаметром (Приложение А)
6. Проверить прочность плиты по наклонному сечению
, (кН)
где:
-коэффициент принимаемый равным 1,5, (15, стр.56 фор. 8.57);
-расчетное сопротивление бетона на растяжение, (МПа), (15, стр.22, табл. 6.8);
-ширина ребра, (см)
h0 – расчетная высота сечения, (см)
с-длина проекции наиболее опасного наклонного сечения на продольную ось элемента, (см) определяется по формуле:
, (см)
7. Проверить условие на действие изгибающего момента
,
где:
- расчетное сопротивление бетона на сжатие, (МПа), (15, стр.22, табл. 6.8);
- ширина полки, (см);
- высота полки, (см);
- расчетная высота сечения, (см).
8. Расчет плиты по второй группе предельных состояний
8.1 Определить кривизну в середине пролета плиты
, 
где:
- расчетное сопротивление бетона на растяжение по второй группе предельных состояний, (МПа), (15, стр.22, табл. 6.8);
- модуль упругости арматуры, (МПа), (15, стр.34, п. 6.2.12);
- площадь сечения продольной арматуры, см2;
- изгибающий момент, (кН·м)
- ширина ребра, (см);
- высота продольных ребер, (см);
- расчетная высота сечения, (см);
,
– коэффициент (Приложение В)
=
,
где:
- модуль упругости бетона, (МПа), (15, стр.25, табл. 6.11);
- модуль упругости арматуры, (МПа), (15, стр.34, п. 6.2.12);
- площадь сечения продольной арматуры, см2;
- ширина ребра, (см);
- расчетная высота сечения, (см).
8.2 Определить прогиб
, см
где:
- расчетная длина плиты, см;
- кривизна в середине пролета плиты, (
).
Пример: Расчет ребристой плиты покрытия
Исходные данные: b = 1,2 м, h = 300 мм, l=6,0 м, класс бетона В25, класс арматуры А500, Nр=12,2 кН/ м2,
= 3см,
= 16см, h = 30см
Решение:
1. Ребристая плита перекрытия длинномерная конструкция поэтому нагрузки собираются на 1м2, а расчет будем производить на 1 м длины при ширине плиты b (м) нагрузка будет равна:
qр = Nр·b, (кН/м);
qр = 12,2 · 1,2 = 14,64 кН/м
2. Назначить размеры приведенного сечения, который имеет вид тавра (полка может быть сверху и снизу)
bр - сумма двух ребер, (мм)
bр – 80 + 80 = 160 мм
=b – 30, (мм)
=1200 – 30 = 1170 мм

3. Определить изгибающий момент:
, (кН·м)
l – B, (м)
6,0 – 0,1 = 5,9 м
= 63,7 кН·м
4. Определить поперечную силу:
, (кН)
= 43,19 кН
5. Определить площадь сечения продольной арматуры в каркасе КР-1
,
= 0,05
по таблице (Приложение Б) определяем коэффициент η = 0,97
Определить площадь поперечного сечения продольной (рабочей) арматуры в каркасе Кр-1
Аs =
, (см2)
h0=h-ав, (мм)
h0=300 – 40 = 260 мм
Аs =
= 5,8 см2
Принимаем 4 стержня диаметром 14 мм Аs = 6,16 см2 располагая по 2 стержня в каждом ребре.
6. Проверить прочность плиты по наклонному сечению
, (кН)
, (см)
= 26 см
= 65,52 кН
Условие выполняется.
7. Проверить условие на действие изгибающего момента
, (кН·см)
= 12469 кН·см
Условие выполняется.
8. Расчет плиты по второй группе предельных состояний
8.1 Определить кривизну в середине пролета плиты
, 
=
,
=
= 0,09
=1,6·

8.2 Определить прогиб
, см
= 0,56 см
Условие выполняется
Контрольные вопросы к практическим работам №4 и №5
1. Классификация плит покрытия (перекрытия).
2. От чего зависит расчетное сопротивление арматуры?
3. От чего зависит расчетное сопротивление бетона?
4. Основные виды приведенного сечения плит покрытия (перекрытия).
5. Основные классы бетона и арматуры принимаемые при проектировании железобетонных плит покрытия (перекрытия).
, см
, см