Изготовлению декораций в мастерских предшествует работа, состоящая из шести стадий: составление окончательной планировки декораций по картинам и актам, изучение эскиза или макета декораций с точки зрения монтировки спектакля и¶особенностей технологии в процессе производства, составление технологического описания по каждому предмету оформления, разработка габаритных и конструктивных чертежей, технических расчетов (в том числе и игровых станков), подсчет стоимости изготовления всего оформления, включая костюмы и прочие затраты, определение графика изготовления оформления и запуск декораций в производство.
Подготовительный период можно считать фундаментом спектакля. А фундамент нередко определяет качество возводимого здания. Поэтому подготовительные работы занимают важное место в процессе создания новой постановки. Непродуманные конструкции и фактуры, нерешенные вопросы монтировки и порядка перемен декораций жестоко мстят потом, когда готовое оформление выносится на сцену.
|
|
|
Ошибки в размерах, неверные фактуры, непродуманная организация перестановок приводят к многочисленным переделкам, затягивают срок выпуска спектакля, сказываются на качестве и стоимости декораций, не говоря уже о ненужной спешке и нервозной обстановке на репетициях.
| Работа над макетом и планировкой |
Воплощение замысла художника в пространстве начинается с компоновки и проверки расположения декораций на плане сцены. Вычерчивание планировки декораций — их расположения в виде сверху, — по сути дела, является первым этапом монтировки спектакля. Немалую роль в этой работе играет точность имеющегося плана сцены.
Реальные размеры сцены, габариты установленного оборудования всегда отличаются от чертежей рабочего проекта, по которым велось строительство. Поэтому, во избежание ошибок, необходимо промерить всю сцену и по этим уточненным размерам вычертить подробный план на уровне планшета (рис. 118). На плане указывается размещение карманов, авансцены, оркестра, дверных проемов и всех остальных архитектурных особенностей сцены. Пунктиром отмечаются галереи и переходные мостики. Сплошной линией — поворотный круг, подъемно-опускные площадки, портальные башни, шахты штанкетных подъемов и другие обозначения механического оборудования, сокращающего размеры сценической площади или определенным образом влияющие на расположение и монтировку декораций. Помимо этого, на плане сцены должны быть помечены планшетные лючки для подключения световой аппаратуры, чтобы случайно не перекрыть их декорациями.
Для более удобного нанесения планировки декораций и быстрого определения их местоположения на план сцены тонкими линиями наносится масштабная сетка. Горизонтальные линии начинаются от красной линии сцены, а вертикальные от ее центра. Пересечения линий образуют квадраты со сторонами,¶равными 1 м в натуре. На осевой линии делаются отметки, соответствующие расположению штанкетных подъемов и софитов. Такие же отметки с указанием номера подъема наносятся и на боковых сторонах чертежа. Обычно они располагаются по обе стороны: каждый подъем обозначается на той стороне сцены, с которой он управляется. Это дает возможность легко ориентироваться при разметке на плане оформления, сразу определить расположение подвесных декораций, их расстояние от красной линии и выявить общую картину загрузки верхового оборудования.
|
|
|
|
| Рис. 118. План сцены |
План сцены должен обязательно включать переднюю часть зрительного зала и, по возможности, боковые осветительные ложи. В этой части чертежа наиболее важными являются отметки крайних мест первого ряда партера, при помощи которых определяют видимость декораций из зала, развеску одежды сцены и уточняют многие размеры.
¶Вертикальный разрез сцены делается по ее продольной оси. Разрез охватывает всю высоту сцены от низа трюма до колосников, арьерсцену, оркестровую яму в ее полном сечении, выносной софит и т. д. На разрезе показываются переходные мостики, галереи, штанкеты, софиты, горизонт, круг, занавес и другие виды оборудования (рис. 119). Для определения высоты декораций и одежды сцены необходима отметка, находящаяся на уровне глаз человека, сидящего в первом ряду партера. Эта точка находится на расстоянии 115—120 см от пола.
Наилучшим масштабом для плана и разреза сцены является 1:20. Большинство театров избегает слишком больших листов, сокращая этот масштаб до 1:50. Однако с уменьшением величины чертежа теряется его точность. Чтобы избежать ошибок из-за мелкого масштаба, помимо общей планировки изготавливается план игровой части сцены в стандартном для театра масштабе 1:20.
|
| Рис. 119. Вертикальный разрез сцены |
Планы и разрезы печатаются типографским способом на плотной белой бумаге, пригодной для рисования и черчения. На
¶бланках указываются наименование театра, основные данные сцены — габариты механического оборудования, грузоподъемность штанкетных подъемов и пр. Оставляется место для названия спектакля, номера акта, картины. Для того чтобы планировка, вычерченная карандашом, четко читалась, не сливаясь с маштабной сеткой и другими линиями, планы сцены печатаются голубой или светло-зеленой краской.
Работа над планом сцены протекает в несколько этапов. Сначала художник определяет на ней принципиальное размещение декораций, выясняя общие размеры, проверяя условия видимости и монтировочную схему. По этой первоначальной планировке делается черновой макет. Черновой выгородочный макет является промежуточной, но очень важной стадией в работе над изобразительной стороной спектакля. Картонная выгородка в главных чертах определяет образ будущего оформления. В ней художник' проверяет пространственное решение, уточняет основные размеры декораций, систему развески одежды сцены, занавесов, задников и других подвесок. Здесь же определяется расположение наиболее активно обыгрываемых мест, опорных точек и т. д. В процессе этой работы меняется планировка
¶ |
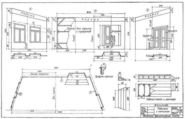
| Рис. 120. «Женитьба>, комедия Н. В. Гоголя. Худ. Н. Акимов; а — эскиз декорации; б — планировка декорации |
¶187
¶декорации, которая снова вычерчивается после утверждения чернового макета.
Чистовой макет — это уже объемный проект декорации, по которому снимаются рабочие чертежи, определяются фактуры, разрабатываются системы зарядки декораций и способы их перестановки. Поэтому, перед тем как приступить к изготовлению чистового макета, художник совместно с макетчиком и заведующим постановочной частью еще раз возвращаются к работе над планом сцены.
|
|
|
Найденные в черновом макете планировочные решения не просто фиксируются на новом плане сцены, а глубоко прорабатываются во всех деталях. В новой планировке важно не только с наибольшей точностью определить все размеры декораций, но и возможность правильного размещения вспомогательных устройств — рабочих станков и лестниц, путей эвакуации актеров и работников сцены согласно требованиям техники безопасности. Одним словом, на плане сцены решается вся организация спектакля от картины к картине (рис. 120).
На этом этапе уже полезно привлечь к работе главного машиниста сцены и художника по свету. Изучая черновой макет и разработанную на его основе планировку, машинист знакомится с монтировочной стороной будущего спектакля, внося свои коррективы и поправки. Как бы опытны ни были художник и заведующий постановочной частью, машинист сцены лучше знает все возможности своей сцены, и поэтому его советы могут быть очень ценными. Художник по свету рассматривает макет и планировку с позиции освещения данного спектакля. Его пожелания и рекомендации иногда требуют частных изменений в композиции и монтировке. Так, например, намечая расстановку источников света, он может попросить увеличить какую-то часть декорации, чтобы спрятать за нее прибор, развернуть в ту или иную сторону стенку павильона, чтобы она попала в зону действия софита или выносных прожекторов, и т. п.
Предварительные консультации с работниками сцены и другими специалистами — конструкторами, электриками, расчетчиками и т. д. — помогают избежать ошибок в дальнейшем проектировании декораций, вселяя в художника уверенность в полноценной реализации рожденного им замысла. С другой стороны, вовлечение руководителей сценических цехов и производственных мастерских в творческий процесс создания декорационного оформления на ранних стадиях позволяет им лучше подготовиться к дальнейшей работе над спектаклем. Участие руководителей цехов в разработке макета превращает их в соавторов художника.
|
|
|
Следующим этапом создания внешней формы спектакля является изготовление чистового макета. Чистовой макет делается по точным размерам и в фактурах, дающих ясное представление о будущем оформлении. И в то же время театральный макет
¶это не модель, в которой все, даже незначительные детали, отделано с одинаковой тщательностью. Театральный макет — это прежде всего художественный образ изобразительной стороны спектакля, выраженный в пространстве. Он сочетает ясность проекта с выразительностью и своеобразием почерка художника. Изготовление чистового макета — не простая фиксация найденного, а непрерывный творческий процесс, в ходе которого возможны изменения в области композиции, фактур и монтировочного решения. По готовому макету еще раз составляется планировка декораций. В этой планировке вычерчиваются все элементы оформления — декорации, одежда сцены, мебель, рабочие станки и лестницы, отмечаются открытые люки планшета, заспинники за окнами и дверьми и т. д. и т. п. Отдельные части декораций и предметы мебели снабжаются пояснительными надписями. Если декорации разных картин заготавливаются заранее, на фурках или поворотном круге делается генеральная планировка, раскрывающая общую схему зарядки спектакля или акта. А затем к ней добавляются планировки отдельных картин. Иногда полезно наложение нескольких планировок на один план сцены. Совмещение нескольких планировок, наносимых разным цветом, позволяет в некоторых случаях полнее увидеть монтировку спектакля, взаиморасположение отдельных картин. Однако в сложных композициях такой способ делает чертежи малопонятными.
Готовый макет, принятый режиссером-постановщиком, утверждается художественным советом, техническим советом театра и пожарно-технической комиссией, состоящей из представителей органов, ведающих техникой безопасности и противопожарной техникой. К этому моменту режиссер, художник и заведующий постановочной частью должны быть готовы к ответам на любые вопросы и выступать «единым фронтом» в защиту своих замыслов. На техническом совете детально прорабатываются не только техника и технология изготовления и монтировки декораций, но и вопросы обеспечения безопасных условий труда актеров и работников сценических цехов. Эта сторона особенно тщательно рассматривается при сдаче макета пожарно-технической комиссии и подлежит выполнению в обязательном порядке.
Прежде чем приступить к следующему этапу проектирования декораций — составлению рабочих чертежей, некоторые театры производят на сцене точную выгородку будущих декораций. По макету и планировке машинист сцены отбирает части декорации ходового и неходового репертуара и из них собирает полное оформление спектакля. На выгородке проверяются соотношение главных масс и отдельных частей декораций, видимость игровых мест из зрительного зала, размеры оконных и дверных проемов, заспинников, расположение рабочих станков и лестниц и т. д. и т. п. Особенно важна выгородка для режиссера и актеров. Зачастую режиссеру и актерам трудно ощутить реальные пространства и размеры в масштабном макетном изображении. При первой монтировочной репетиции на этой почве могут возникнуть недоразумения. Точная выгородка декораций позволяет полностью разобраться во всех пространственных соотношениях, в реальной площади обыгрываемых мест, размерах выходов, подъемов и спусков. Художнику по свету на выгородке предоставляется полная возможность разработки предварительного плана размещения аппаратуры, проверки расстояний для проекционных декораций и многое другое. Заведующий постановочной частью, совместно с художником, машинистом сцены и старшим мебельщиком-реквизитором, определяет возможность подбора отдельных частей декораций, одежды сцены, мебели и прочих предметов обстановки.
В итоге выгородки еще раз уточняется планировка, записываются все изменения в размерах, наименование предметов, подлежащих подбору, и все материалы передаются для исполнения рабочих чертежей.
| Рабочие чертежи |
Чистовой макет, окончательно выверенная планировка, а в случае проведения выгородки — записи по ее итогам, служат основными материалами, по которым выполняются рабочие чертежи декораций. В театральном производстве в большинстве случаев рабочие чертежи представляют собой эскизный (технический) проект, содержащий, согласно ГОСТ, «принципиальные конструктивные решения, дающие общее представление об устройстве и принципе работы изделия, а также данные, определяющие назначение, основные параметры и габаритные размеры разрабатываемого изделия».1
Основная масса изделий показывается в общих видах, разрезах, сечениях и узлах, дающих полное представление о размерах и конструкции проектируемой декорации. В этом смысле выполнение чертежей для театра приведено в соответствие с государственным стандартом, допускающим отсутствие деталиро-вочных чертежей на изделия индивидуального производства.
Степень подробности чертежа зависит от условий, в которых изготавливаются декорации, и сложности их конструкции. Для опытных мастеров нет нужды показывать конструкции стенок, простых станков, колонн и других декораций, изготавливаемых по общепринятой схеме. Однако, если в технологию изготовления, конкретную конструкцию вносятся какие-либо изменения, отступающие от стандартных правил, либо данное изделие допускает несколько конструктивных вариантов, а также в случае сложных декораций — разборных арок, потолков, крупногабаритных станков, лестниц со сложной конфигурацией и пр., мастерским должны быть представлены чертежи с полной конст-
1 Единая система конструкторской документации. Основные положения (ГОСТ 2.103 — 68). М., 1969, с. 20.
¶руктивной разработкой, вплоть до отдельных деталей. Подробная конструктивная разработка обязательна и для передачи заказа в сторонние мастерские, где могут существовать свои традиции и приемы исполнения, или в предприятия, прямо не связанные с театральным производством.
Для чертежей театральных декораций установлен единый масштаб —1:20. Отдельные узлы, детали, сопряжения и соединения показываются в более крупном изображении — от 1:10 до натуральной величины. Нанесение размеров производится в соответствии с утвержденным стандартом (ГОСТ 2. 307—68). В театральном черчении все размеры проставляются в сантиметрах. Исключения составляют изделия из металла, для которых размеры проставляются по правилам машиностроительного черчения в миллиметрах. Отдельные детали и сборные комплексы показываются в двух или трех проекциях, в зависимости от сложности изделия, с разрезами, сечениями, дающими точное представление о форме и размерах проектируемой декорации. Для декорации, состоящей из отдельных частей, делается сборочный чертеж, указывающий их взаимное расположение, способы примыкания или присоединения. Каждая часть маркируется номером и текстовым наименованием. Маркировка на сборочном чертеже должна соответствовать маркировке деталей или частей, выносимых на другие листы.
Обычно сборочный чертеж дается в виде сверху, т. е. в плане. Если этой проекции недостаточно, выворачивают фасад или разрез по одной-двум осям. Сборочный чертеж-план помещается в левом нижнем углу листа.
В правом углу помещается штамп, где предусматриваются графы для наименования театра, названия спектакля, акта, картины и изображенной декорации. Здесь же проставляется масштаб и дата выполнения чертежа. Готовый чертеж утверждает своей подписью художник спектакля, а заведующий художественно-постановочной частью визирует его к исполнению.
При вычерчивании павильона в нижней части листа располагается его план, а в верхней — развертка всех стен (рис. 121). План необходим для того, чтобы при изготовлении павильона и его монтировке в мастерской было ясно, под каким углом соединяются отдельные стенки, каким образом на них поставить крепления. В простых павильонах, где нет большого количества дверных и оконных проемов, арок и прочих элементов архитектуры, дается сплошная развертка стенок. Места стыков обозначаются сплошной линией, а складов — пунктирной. В более сложных случаях между отдельными стенками оставляется разрыв для размерных линий и боковых продольных разрезов. Все стенки как на плане, так и на фасадной развертке пронумеровываются по единой системе.
Стенки павильона, как и все декорации, вычерчиваются с лицевой стороны.
¶ 
Рис. 121. Чертеж декорации
¶Поскольку все детали павильона изготавливаются по месту, а в театральном строительстве, по сравнению с машиностроением, допуски имеют довольно широкие границы, все двери, окна, карнизы и прочие элементы архитектуры показываются заодно со стенками. На объемные детали делается поперечный разрез, поясняющий конструкцию, объем и способ примыкания детали к стенке. Поперечные разрезы окон и дверей показывают глубину коробок, расположение оконных рам и сторону, в которую открываются створки окна и двери. В сложных филенчатых дверях, панелях, карнизах необходимы наложенные или выносные сечения. Профили мелких и криволинейных деталей даются в укрупненных масштабах, вплоть до натуральной величины. На чертеже указываются места и способы крепления навесных предметов — картин, портьер и пр. Для показа конструкции отдельных узлов декорационных рам или способа соединения разъемных частей пользуются вырывами, как бы вырезая часть холщовой обтяжки стенки.
Расположение средников и ручников дается только в исключительных случаях, когда по особым конструктивным или иным соображениям они должны быть поставлены в строго определенном месте. Так, например, если средник используется для крепления навесной детали — зеркала, картины, драпировки, — то он должен быть на чертеже привязан размером к верху или низу стенки. Декорационные рамы строятся из брусков стандартных сечений, поэтому размеры брусков специально не оговариваются.
Жесткие потолки вычерчиваются преимущественно в одной: проекции — виде сверху. Разрез дается только для показа высоты передней фермы и способа ее крепления к потолочной раме. Форма потолка определяется планировкой павильона. Если; павильон имеет сложную, изломанную конфигурацию, то потолок строится по обобщенной планировке. По всем его сторонам, кроме лицевой, делается напуск величиной в 20 см, для того чтобы, в случае неточной установки павильона, между стенками. и потолком не образовался просвет.
Объемно-каркасные и станковые декорации вычерчиваются не менее чем в двух проекциях. Для простых станков, лестниц и других объемных декораций достаточно габаритного чертежа и пояснительной надписи, указывающей расстояния между несущими рамками, величину толщины настила и, в отдельных случаях, сечения брусков. Объемно-станковые декорации в виде отдельных декорационных комплексов, как правило, показываются в собранном виде. Сборочный чертеж с разрезами и вырывами позволяет наглядно показать все принципиальное конструкционное решение, монтаж и способ соединения отдельных, частей. Так, например, план, фасад и боковой разрез станка с лестницей и балюстрадой дают исчерпывающую информацию о конструкции несущих рам, лестницы, ограждения и крепежных приспособлений. Снятая часть настила станка позволяет увидеть на плане расположение несущих и монтажных рам.
Станки, имеющие сложную, криволинейную форму, разные уклоны и высоты, показывают в плане и разрезе. Для того чтобы сложную конфигурацию станка перенести на пол мастерской, план станка расчерчивается на квадраты.
В зависимости от сложности мебель вычерчивается либо в масштабе 1:10, либо в натуральную величину. Масштабный чертеж делается для несложной мебели прямых форм. Шаблон-рисунок в натуральную величину — для гнутой мебели, с криволинейными деталями, резьбой и лепкой. В чертеже и шаблоне показывается не менее двух проекций изделия. На чертеже проставляются все размеры, сечения отдельных элементов, размеры обивки и пр. В шаблонах размеры не ставятся.
На мягкие декорации дается схематический чертеж в масштабе от 1:50 до 1:200. На чертеже указываются размер, направление швов, ширина пояса и кармана, способ прикрепления декорации к подъему. Ажурные прорезные декорации изготавливаются по эскизу (рис. 122).
Чертежи предметов бутафории и реквизита выполняются в масштабе 1: 10 или 1: 5. Для большинства этих изделий предпочтительнее вычерчивание шаблонов, облегчающих процесс изготовления.
| Технологическое описание и смета |
Рабочий чертеж дает представление о размерах изделия и о его конструкции. Но перед тем как изделие запустить в производство, необходимо установить, из каких материалов и каким образом оно должно быть изготовлено, обработано, окрашено. Ответы на все вопросы, связанные с технологией изготовления, способами обработки, имитацией фактуры, дает специальная ведомость, которая называется «технологическое описание» или иначе «монтировочная ведомость».

Рис. 122. Чертеж мягкой декорации
¶Технологическое описание составляется заведующим художественно-постановочной частью и художником спектакля. В нем дается полный перечень всех предметов оформления спектакля и краткое описание технологии изготовления. Так, например, при изготовлении павильона важно отметить, какой тканью' обтягивать стенки — холстом, тарной тканью, байкой или другой фактурой; каким образом окрашивать обтяжку — клеевой, анилином; применять ли трафарет или тиснение; оклеивать ли двери и окна тканью с последующей окраской маслом или покрывать гуашью по дереву, каким способом имитировать оконное стекло — тюлем, сеткой, оргстеклом; и т. д. и т. п.
Пример составления технологического описания приведен на рис. 123. В первой графе дается наименование и краткое описание изделия, его габаритные данные и площадь в квадратных метрах. Понятие «изделие» здесь распространяется как на отдельную деталь, так и на целый декорационный комплекс. Разграничение оформления на изделия производится в зависимости от сложности данной декорации. Павильон, насыщенный дверьми, окнами, арками, колоннами и карнизами, лучше разбить на стенки, записав их по отдельности. Это значительно упростит заполнение графы «технология изготовления» и сделает более наглядным весь лист описания. В простых по архитектуре и небольших по размерам павильонах все его составные части можно поместить под одним номером.
Таким же образом подходят и к другим элементам декорации: станки записываются вместе с приставленными к ним лестницами, ограждениями тех и других, маскировками и заглушинами; фурки с направляющими, а иногда заодно с мягкой обтяжкой, и т. д. Определение площади изделия необходимо для последующего подсчета количества потребных материалов и стоимости рабочей силы.
В следующих графах проставляется количество изделий и дается схематический рисунок. Наличие рисунка помогает ориентироваться в разнообразной номенклатуре изделий, уменьшает возможность путаницы и разночтений в процессе производства.
Графа «технология изготовления» является основной. Здесь очень кратко приводится наименование основных материалов, идущих на изготовление изделия, технология окраски и обработки.
Как правило, составление технологического описания начинают с декораций общего оформления спектакля: игрового портала, занавеса, одежды сцены, половика и пр. Затем приводится описание декораций по актам и картинам. Завершает список мебель, бутафория и реквизит. Мелкая бутафория, а тем более предметы реквизита, в макете не делается. Их перечень берется из так называемой выписки — списка необходимого реквизита, сделанного помощником режиссера. Разумеется, эта
| Наименование изделия | Кол-во | Рисунок | Описание изготовления | |
| 1. Павильон из 4 стен, с двумя дверьми и двумя окнами. Перспективный. На верху стен — объемный карниз, окна и двери работающие | 60 ж2 | Жесткий, под холст. С обратной стороны оклеить бумагой. Роспись клеевой. Двери оклеить бязью. Коробка центральной двери разборная. Коробка левой двери —вставная с наличником. Окраска дверей и окон маслом. Рамы окон затянуть тюлем. Карниз навесной на крюках, оклеить тиком. Окраска клеевой |
Рис. 123. Технологическое описание
выписка еще не является окончательной. В процессе репетиционной работы она многократно изменяется в деталях, добавляется и сокращается. Но основные предметы бутафории и реквизита должны быть даны заранее, в момент составления технологического описания и подготовки сметы.
Чем полнее и четче разработано технологическое описание, тем меньше вопросов возникает у мастеров, занятых изготовлением декораций, тем яснее они представляют свою задачу. Конечно, по ходу дела возникают другие решения, другие способы и приемы изготовления, направленные на улучшение качества изделий и на уменьшение их стоимости. Но это нисколько не умаляет значения предварительной разработки технологии, а наоборот, подчеркивает ее необходимость, как основу для дальнейшего творчества. Все изменения в технологии, замена одних материалов другими согласовываются с заведующим художественно-постановочной частью и художником спектакля.
Технологическое описание, доведенное до каждого производственного цеха, способствует четкой организации труда, экономии рабочего времени, наиболее точному воплощению художественного замысла. Предварительная разработка технологии выявляет заранее основную номенклатуру потребных материалов,
Материалы | ||||
| Наименование | Ед. изм. | Кол-во | Цена | Сумма |
| Доски Фанера Гвозди Бумага Клей Мука Петли Краски Краски масляные Бортовка Бязь Тюль театральный Вспомог. материал | м3 лист кг кг кг кг шт. кг кг м м м м3 | 0,8 10 2,4 0,6 2,4 25 12 2,5 0,8 | 53—70 1—30 0—19 0—20 0—79 0—04 0-07 1—45 3—00 0-90 1—05 1-00 0-08 | 42—96 13—00 0—46 1—20 0—47 0—10 1-75 17-40 7—50 77—40 16-80 ' 8-00 0—64 |
| Всего | 187-68 |
перечень которых выписывается для подсчета стоимости и составления заявки на приобретение.
Составление сметы, т. е. подсчет стоимости оформления, производится на основе рабочих чертежей и технологического описания. К этому моменту заведующий художественно-постановочной частью должен точно знать, какие предметы оформления будут подобраны из имеющихся в театре запасов, какие подлежат изготовлению в своих мастерских, какие будут заказаны в сторонних организациях или приобретены в готовом виде. Ибо стоимость каждого изделия находится в прямой зависимости от условий, в которых оно изготавливается.
Декорации, взятые из старого спектакля в неизменном, не переделанном виде, сохраняют свой инвентарный номер и продолжают числиться за той постановкой, для которой они изготовлены. В этом случае их стоимость в смете не отражается. Так, например, одежда сцены, мебель, посуда, половик могут применяться в нескольких спектаклях текущего репертуара, и вводить их стоимость в смету нового спектакля бессмысленно и не нужно. Но если старая декорация переделывается и исключается из инвентаризационной описи того спектакля, для которого она была изготовлена, то ее новая стоимость складывается ¶из первоначальной (с учетом износа) и стоимости вновь затраченных работ. Эта новая стоимость подлежит включению в смету нового спектакля.
Как уже было сказано выше, величина стоимости и условия производства находятся в тесной взаимосвязи. Одно и то же изделие, изготовленное в разных производственных условиях, будет иметь разную цену. Дело в том, что стоимость изготовления любого предмета складывается из трех видов затрат: стоимости переработанных материалов, заработной платы производственных рабочих и накладных расходов на заработную плату. Чем крупнее производство, тем выше уровень накладные расходов, чем меньше изделие поддается механической обработке и серийному, поточному способу производства, тем больше затраты труда, а следовательно, выше и стоимость рабочей силы. Таким образом, единичные изделия, заказанные на крупном промышленном предприятии, будут стоить гораздо дороже, чем изготовленные в театральных мастерских. Поэтому к услугам заводов театры обращаются только в тех случаях, когда конструкция или рложная технология изготовления не позволяет выполнить работу своими силами.
Что касается -готовых промышленных изделий, таких, как мебель, костюмы, посудохозяйственные изделия, галантерея, бижутерия и др., то их отпускная стоимость существенно отличается от стоимости изготовления в условиях театра. Поэтому при составлении сметы важно определить возможность приобретения более дешевых готовых предметов и согласовать с художником и режиссером их перечень.
Стоимость рабочей силы и накладные расходы учитываются не во всех театральных мастерских. В большинстве театров мастерские находятся на бюджете театра. Их работники входят в штат постановочной части и получают заработную плату в виде твердых месячных окладов. В этих случаях смета на изготовление оформления нового спектакля складывается только из стоимости материалов, потраченных в процессе производства. В мастерских, находящихся на самостоятельном балансе, хозрасчете, где введена сдельная оплата труда, приходится определять трудовые затраты, учитывая величину заработной платы, накладные, цеховые и управленческие расходы. Подсчет стоимости рабочей силы ведется в объеме человеко-часов, необходимых для изготовления данного изделия, либо по специальным нормам и расценкам. Нормы и расценки разрабатываются как на отдельные производственные операции, так и на все изделия в целом.
Для того чтобы правильно определить номенклатуру материалов, их количество, затрату труда, необходимо знать не только размеры изделия, но и все технологические процессы, связанные с его изготовлением. Вот почему при составлении сметы, с одной стороны, руководствуются рабочими чертежами, а с другой — технологическим описанием. В тех случаях, когда подсчет ведется только по затратам на материалы, без учета стоимости рабочей силы, целесообразно объединить в одном листе оба документа — описание и смету, как это показано на рис. 123.
При подсчете количества потребных материалов важно прежде всего определить единицы измерения, в которых будет вестись счет. Установленные государственным стандартом единицы измерения различных материалов не всегда удобны для составления театральной сметы, поэтому, в некоторых случаях, приходится пользоваться промежуточными, переводя их потом в стандартные. Так, например, доски отпускаются и оцениваются в кубических метрах. Определить количество долей кубометра для изготовления, допустим, декорационной стенки довольно трудно. Значительно удобнее подсчитать количество брусков, а затем общую сумму погонных метров бруска перевести в кубометры досок. Не менее важно учитывать и наличие отходов, неизбежных в любом производстве, усадку тканей при пошиве и окраске и многие другие факторы, влияющие на общее количество затрачиваемых материалов, а следовательно, и на стоимость изготовления декораций.
Нестандартность, оригинальность театральных изделий не позволяет выработать единые универсальные нормы расхода материалов на декорации. Однако практика театра выработала ряд приемов и методов подсчета, среди которых есть и нормативы на отдельные виды декораций. Самым элементарным и, кстати, наиболее точным является прямой подсчет материалов по чертежам. Зная конструкцию декорации и технологию ее изготовления, путем арифметического подсчета можно высчитать, сколько и каких материалов потребуется в процессе производства. Для облегчения работы подсчет ведется по одной какой-то части декорации или одному элементу конструкции и полученный результат умножается на количество частей или элементов, сходных по величине и конструкции. Так, при подсчете материалов на изготовление станка достаточно просчитать одну рамку, перемножив полученное на общее количество рам. Но не всегда и не все материалы высчитываются таким образом. По чертежу можно вычислить количество брусков, петель, даже гвоздей в штуках, но как определить количество клея, муки, бумаги, краски и других подобных материалов? Для этого необходимы справочные данные, выведенные опытным путем.
Справочные таблицы определяют весовое количество гвоздей, идущих на одно столярное соединение, петлю и погонный метр обтяжки; среднее количество краски на 1 кв. м живописи, количество косынок, получаемых из одного листа фанеры, и т. д.
Самыми универсальными нормами являются нормы расхода материалов на плоские жесткие декорации. Эти нормы определяют количество материалов, идущих на изготовление 1 кв. м стенки. Зная общее количество квадратных метров всех стенок,¶нетрудно произвести арифметический подсчет.1 Эти нормы могут быть применены и при подсчете лесоматериала для станковых рамок. Количество досок, идущих на настил, определяется еще проще — оно равно объему всех щитов, выраженному в кубометрах. К этому количеству нужно, как и для всех изделий из дерева, прибавить 20—30% объема на несортность древесины и на отходы. Фанерные покрытия исчисляются сначала в квадратных метрах, а потом переводятся в листы.
Все ткани, кроме технических, независимо от их ширины, имеют одну единицу измерения — погонный метр. Для того чтобы найти количество погонных метров ткани, нужно площадь декорации разделить на ширину ткани. На задник площадью 150 кв. м понадобится 250 м ткани шириной 60 см (150:0,6 = = 250) или 188 м ткани шириной 80 см (150:0,8=180). Но фактически той и другой ткани пойдет немного больше. Все ткани при сшивке, окраске и огнезащитной пропитке дают усадку. Величина усадки зависит от сорта ткани, ее плотности, толщины, других данных. В среднем принято считать усадку в швах равной 2—3 см на каждый погонный метр и 4—5 см на окраску и пропитку. Таким образом, общая величина усадки равна приблизительно 6 см. Следовательно, в нашем примере к найденному количеству нужно еще прибавить 15 м для первого случая (250 м x 0,06 м = 15 м) и 11 м для второго (188 x 0,06= 11,28 м). При больших расходах ткани на спектакль эти припуски вырастают в значительные цифры. Кроме этого, для мягких декораций необходимо учитывать способ раскроя ткани, особенно если декорация имеет сложную конфигурацию. В таких случаях ткань шьется целым куском по весьма приближенной форме, а затем выкраивается нужный рисунок.
Количество шнура, идущего на вязки кулис, падуг и задников, высчитывают, исходя из следующих данных: на каждый погонный метр декорации пришивается 4 вязки, каждая вязка делается из отрезка шнура длиной 0,5 м. Следовательно, на каждый метр декорации уходит 2 м шнура.
Количество ткани, идущей на обтяжку павильонов, определяется так же, как и на мягкие декорации: вся площадь павильона, независимо от количества и величины имеющихся в нем проемов, делится на ширину выбранной ткани плюс припуски на посадку.
Стоимость материалов определяется ценой за определенную единицу измерения. Цена материалов берется, в одних случаях, по розничным ценам, в других — по оптовым, в третьих — выводится средняя цифра, куда может войти стоимость транспортировки от места получения до театра. Розничные цены выше оптовых, поэтому театру не всегда выгодно, да и позволено, покупать материалы в магазинах. Средние цены берутся для таких
1 Нормы расхода материала и справочные таблицы даны в приложении¶материалов, расход которых по отдельным видам и сортам невозможно определить заранее, теоретически. К таким материалам относятся краски. Гуашевые красители разных цветов имеют различную стоимость. Высчитать, какое количество каждого цвета пойдет на живописную окраску той или иной декорации совершенно невозможно. Поэтому для всех клеевых красок выводится средняя цена, которая колеблется от 1 руб. 45 коп. до 1 руб. 50 коп. Средней ценой пользуются и для определения шломатериалов — досок, поскольку и здесь возможны колебания, зависящие от сорта досок.
В предварительных подсчетах также трудно определить количество и стоимость мелких материалов вспомогательного характера, необходимых для технологического процесса. К ним относятся иголки, мыло, нитки (если речь не идет о массовом пошиве мягких декораций), краска для маркировки декораций и масса других мелочей. Для этих материалов выводится общая цена, исчисляемая на единицу измерения декорации. Так, в ряде ленинградских театров стоимость вспомогательных материалов составляет: для мягких декораций 20 коп, на каждый квадратный метр, а для жестких 8 коп. на кубометр затраченных пиломатериалов.
В смете запись материалов и их стоимость производится следующим образом. Сначала записывается наименование материала, затем его единица измерения, потом количество, цена за единицу и сумма. В графах «цена» и «сумма» стоимость обозначается четырьмя цифрами через черточку. Первые две цифры обозначают рубли, вторые — копейки. Буквенные обозначения рублей и копеек не делаются. В обозначении количества материалов отделение целых чисел от дроби производится запятой.
Сметы, включающие подсчет стоимости рабочей силы, имеют несколько различных форм записи. Наиболее распространенная форма показана на рис. 124. Для анализа сметы и дальнейшей работы с ней очень важно по каждому изделию иметь полную стоимость материалов и стоимость рабочей силы, а также их сумму, составляющую общую стоимость. Поэтому в смете должны быть ясно выражены эти три итога по каждой позиции. Для удобства накладные расходы исчисляются не по отдельным специальностям, а по всей сумме заработной платы.
Стоимость огнезащитной пропитки и химической окраски ткани, производимой в сторонних организациях, записывается либо по каждому изделию отдельно, либо по общему метражу в конце сметы. После определения стоимости изготовления всех предметов оформления подводится общий итог, представляющий полную стоимость оформления данного спектакля.
Любая, даже самая точная и скрупулезно высчитанная смета не может предусмотреть изменения в стоимости и количестве материалов, трудовых затрат, появления новых, не предусмотренных заранее изделий, возникающих по ходу репетиций, и других
| Наименование изделий | Основание | Наименование работ | Ед. изм. | Кол-во | Цена |
| Заспинник | Пошивочная | Сшивка | п/м | 0—04 | |
| мягкий | работа | заспинника | |||
| 8X6 | Живопись | Роспись | м2 | 0—12 | |
| Вспомогательные работы | |||||
| Всего |
Рис. 124. Примерная форма сметы
неожиданных расходов. Для покрытия этих расходов предусматривается денежный резерв, который составляет 3% от общей стоимости всего оформления. Итак, окончательным итогом стоимости оформления является стоимость материалов, заработной платы, начислений на нее и сумма резерва.
Готовая смета подвергается тщательному анализу со стороны заведующего художественно-постановочной частью, художника спектакля, старшего экономиста. Анализ сметы производится с позиции рентабельности и экономичности выбранной технологии, отобранных материалов, наиболее полного использования материалов, бывших в употреблении, и подбора. Если общий итог сметы превышает отпущенный на спектакль лимит денежных средств, она подлежит пересмотру.
Сокращение сметы производится прежде всего за счет использования более дешевых материалов, частичного изменения технологии изготовления второстепенных предметов, более широкого применения подбора, а иногда и за счет отказа от некоторых предметов декорации, оборудования или аппаратуры. Работа со сметой предусматривает прежде всего разумное и экономичное расходование денежных средств. Но никакая экономия не может быть оправдана, если в результате ее пострадает художественная сторона спектакля.
Исправленная и согласованная смета подписывается заведующим художественно-постановочной частью, художником спектакля и старшим экономистом театра. Эта смета, смета на изготовление материального оформления, является составной частью так называемой сводной сметы, отражающей все расходы, связанные с подготовкой и выпуском нового спектакля. Сводная смета включает два вида затрат: овеществленных и неовеществленных. К. категории овеществленных расходов относятся затраты на изготовление реальных предметов: декораций, мебели, бутафории,
| Сумма | Наклад. расх. 70% | Всего | Наиме-нов. материал. | Ед. изм. | Кол-во | Цена | Сумма | Общая стоимость | |
| 2—56 5-76 2—00 | Двунитка Шнур шторный Нитки Гуашь | М м бобина кг | 0,5 5,0 | 0—90 0—03 1—20 1—45 | 63—00 0—48 0-60 7—25 | ||||
| 10—32 | 7—22 | 17—54 | 71—33 | 88-87 |
костюмов, макета и пр. Неовеществленные расходы — это затраты на возможные командировочные расходы, связанные с подготовкой спектакля, гонорары приглашенных режиссеров, художников, композиторов, консультантов и т. д. Сумма затрат по обоим видам расходов составляет полную стоимость постановки. Сводная смета подписывается старшим экономистом, заведующим художественно-постановочной частью и утверждается директором театра. С этого момента обе сметы — смета на изготовление материального оформления и сводная — приобретают законную силу и служат основным документом как для руководства постановочной частью, так и для всех цехов, занятых в работе над новой постановкой.
Заведующий постановочной частью строго контролирует производимые расходы, сверяясь с суммами, определенными сметой, проявляя гибкость и оперативность в регулировании всех затрат в пределах отпущенной суммы.
Обычно художник приступает к работе над костюмом после сдачи эскизов декораций.
Образ, найденный художником в эскизе, должен удовлетворять не только самого автора и быть принятым режиссером-постановщиком, но и того, кому этот костюм предназначен,—актера. В работе над костюмом художнику приходится учитывать особенности фигуры актера, его индивидуальность, вкусы, его собственное видение данного персонажа. И далеко не всегда актер сразу соглашается на предложение художника, даже если оно полностью отвечает режиссерскому замыслу. Поэтому, до тех пор пока все три заинтересованные стороны не придут к соглашению, эскиз костюма не может быть передан в постановочную часть для исполнения.
¶В работе над костюмом художнику и режиссеру часто помогают масштабные картонные фигурки, раскрашенные в соответствии с предлагаемыми костюмами. Расставляя картонных «актеров» в макете, режиссер и художник проверяют общее колористическое решение декораций и костюмов, главные мизансцены в смысле правильного распределения как цветовых масс, так и цветовых акцентов. Особенно большую помощь этот прием оказывает при мизансценировании массовых сцен.
После утверждения эскизов художник совместно со старшим закройщиком-модельером составляет опись всех костюмов, подобную той, которая делается для декораций. В описи указываются действующее лицо, фамилия исполнителя, наименование материалов и способы их обработки. К эскизам прикалываются выкраски на каждую деталь, а еще лучше — кусочек окрашенной ткани. Обычно в костюмерных мастерских все цветные обрезки тканей собираются в специальный мешок или коробку и служат отличным подспорьем при подборе цвета для костюмов новой постановки. В опись заносятся не только все детали костюма, но и обувь, головные уборы, костюмный реквизит (платочки, веера, ордена, эмблемы, значки и пр.). В ней должны быть отмечены костюмы или их детали, подлежащие приобретению в готовом виде, технология изготовления специальных приспособлений — толщинок, изменяющих фигуру актера, турнюров и пр.
Особое внимание обращается на необходимость дублирования костюмов для вторых исполнителей. Решение этого вопроса связано со многими обстоятельствами. Во-первых, необходимость второго экземпляра зависит от комплекции обоих исполнителей. Если по внешним данным костюм может подойти обоим, то надобность в изготовлении дубля уже не носит обязательного характера. Но передача костюма одного исполнителя другому возможна только для мужского состава. Актрисам, даже при полном сходстве фигур, из соображений гигиены, предпочтительно заранее планировать индивидуальные костюмы, Во-вторых, нередко всю репетиционную работу несет один исполнитель, а второй явно «вступит в строй» только спустя несколько спектаклей после премьеры. Но если шитье второго костюма отложить на более поздний срок, то такое решение может плохо повлиять на самочувствие актера или актрисы. В таких случаях художнику и модельеру приходится проявлять большое чувство такта и предельную осторожность, посоветовавшись с режиссером.
Помимо эскиза костюма в ряде случаев художник должен делать отдельные эскизы на головные уборы и обувь, так как эти части костюма делают разные мастера, а часто и разные мастерские.
Определив количество костюмов, подлежащих подбору, переделке, покупке и изготовлению, закройщик-модельер составляет¶смету. Здесь также учитываются все особенности производства, связанные с нормированием труда, заказами сторонним организациям, приобретением и пр. Если, допустим, костюм требует художественной росписи или специальной художественной обработки, а в костюмерных театра нет таких специалистов, то сначала нужно выяснить возможность и стоимость такого заказа в других организациях.
Подготовленная смета рассматривается заведующим художественно-постановочной частью и выносится им на утверждение дирекции. При необходимости сокращения расходов, в первую очередь, определяется необходимость запланированного количества костюмов, особенно предназначенных для одного исполнителя. Другими путями удешевления являются замена дорогостоящих материалов более дешевыми, расширение подбора из запасного гардероба, упрощение художественной обработки костюмов второстепенных персонажей.
Окончательно утвержденный перечень костюмов, подлежащих изготовлению, и смета расходов передаются в театральные мастерские для исполнения.
| Запуск оформления в производство |
Запуск художественного оформления спектакля в производство — завершающий этап подготовительного периода. Исходными данными для производства служат рабочие чертежи, технологическое описание и смета. Но прежде чем мастерские приступят к работе, необходимо обеспечить их всеми материалами и составить график исполнения декораций, мебели, бутафории и костюмов.
Полный перечень потребных материалов составляется из их номенклатуры и количества, указанных в смете. Приобретением материалов по заявке постановочной части занимается административно-хозяйственная часть театра или специальный отдел снабжения. Но нередко вопросами снабжения приходится заниматься заведующему художественно-постановочной частью, закройщику-модельеру и даже художнику спектакля. Есть вещи, приобретение которых нельзя полностью доверить техническому работнику, незнакомому с общим художественным замыслом постановки или не обладающему достаточным вкусом. Отбор тканей для костюмов, мебели, украшений производится работником постановочной части при участии или консультации художника. Более того, художник и заведующий художественно-постановочной частью нередко сами на предприятиях города выискивают новые для театра, оригинальные материалы, отбирая наиболее интересные фактуры, следя за всеми новинками разных отраслей промышленности.
Правильное определение порядка изготовления составных частей художественного оформления спектакля имеет важное значение не только для планомерной организации труда, но и для обеспечения репетиционного процесса. Планирование исполнения декораций тесно увязывается с общим графиком выпуска спектакля, в котором самым важным для мастерских этапом является начало подгоночных и монтировочных репетиций. Однако это не означает, что до начала монтировок отдельные части декораций не попадают на сцену. Постановочная часть, художник и режиссер одинаково заинтересованы в проверке декораций в условиях сцены. Чем раньше они попадут на репетицию, тем больше возможности у художника проверить правильность изготовления, выразительность фактуры, тем больше возможности у режиссера их обыграть, а актерам привыкнуть к предлагаемым условиям. Поэтому при составлении графика учитываются пожелания режиссера, и в производство запускаются сначала те части декорации, которые нужны для репетиций в первую очередь.
Затем следуют декорации, для изготовления которых, в силу сложности технологии, трудоемкости, необходимо длительное время. И последнее, очень важное обстоятельство, определяющее принцип планирования работ,— одновременность и планомерность загрузки всех цехов. Если, допустим, работа спланирована так, что к моменту завершения столярных работ по павильону не готовы металлические крепления или холщовая обтяжка, или обойщики раньше времени занялись сшивкой холстов для жестких декораций, а художники простаивают, потому что не готова тканевая основа для задников, значит, нарушается вся технологическая цепочка, вносится путаница и неразбериха в производственный процесс, удлиняются сроки исполнения декораций.
Немаловажное значение в планировании имеют обеспеченность материалами к началу работы, а также сроки получения тканей из огнезащитной пропитки и химической окраски.
Составлением графика занимается заведующий художественно-постановочной частью совместно с руководителями производственных цехов. План, «спущенный» в мастерские «сверху» без предварительных консультаций с непосредственными исполнителями, малореален, поэтому вовлечение в эту работу представителей цехов имеет большое значение. Согласованный с режиссером-постановщиком и художником спектакля, подписанный заведующим художественно-постановочной частью, график исполнения декораций передается в мастерские. Один экземпляр графика остается у заведующего художественно-постановочной частью для контроля. Основные показатели графика передаются также заместителю директора театра. После получения всей документации: рабочих чертежей, технологического описания, сметы и графика работ мастерские приступают к изготовлению оформления.
В ходе производства заведующий художественно-постановочной частью постоянно следит за выполнением намеченного плана, принимая оперативные решения в случае задержек или изменений, возникающих по разным причинам. Периодически ответственные лица собираются у заместителя директора театра на производственные совещания, в ходе которых уточняются сроки выполнения заданий, разбираются вопросы, связанные со снабжением, привлечением дополнительных резервов, организацией работ и т. д. И эта работа ведется от начала производства до самой премьеры.
Материалы 





