Эскизная компоновка предназначена для приближенного определения положения зубчатых (червячных) колес, шкивов и звездочек относительно опор для последующего определения опорных реакций и расчета подшипников.
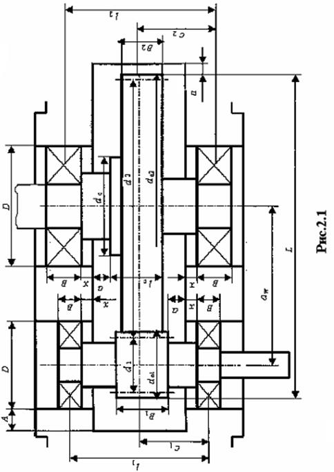
2.1. Цилиндрический редуктор (Рис.2.1)
Компоновку выполняем в одной проекции с разрезом по осям валов при снятой крышке редуктора в масштабе 1:1.
- Проводим оси валов на расстоянии межосевого расстояния передачи (аw); затем параллельно длинной стороне редуктора проводим горизонтальную осевую линию передачи. Вычерчиваем шестерню и колесо в виде прямоугольников по размерам В1, В2, d1, d2, dа1 и dа2 согласно выбранного варианта. Если длина ступицы колеса l c больше ширины венца колеса В2, вычерчиваем ступицу по размерам dc и l с.
- Проводим внутреннюю стенку корпуса редуктора:
а) принимаем зазор между торцом шестерни и внутренней стенкой корпуса равным а; при наличии ступицы зазор берется от торца ступицы;
б) принимаем зазор а от окружности вершин зубьев колеса до внутренней стенки корпуса;
|
|
|
в) принимаем зазор от окружности вершин зубьев шестерни до внутренней стенки корпуса равным а, если диаметр вершин зубьев шестерни (dа1) больше наружного диаметра подшипника D;
если dа1 меньше D принимаем расстояние между наружным диаметром подшипника D ведущего вала и внутренней стенкой корпуса А = d, где d - толщина стенки корпуса редуктора.
- Предварительно намечаем подшипники легкой серии согласно действующих сил в зацеплении и найденного диаметра вала в месте посадки подшипников. Из ГОСТа на выбранные подшипники выписываем наружный диаметр D и ширину подшипника В.
- Наносим контуры подшипников по размерам D и B на расстоянии x от внутренней стенки корпуса редуктора.
- Замеряем и проставляем размеры С1, С2, l 1 и l 2.
![]() |
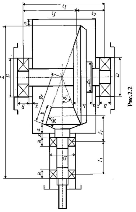
2.2. Конический редуктор (Рис.2.2 и Рис.2.3)
Построение конической зубчатой передачи начинаем с нанесения двух взаимно перпендикулярных осевых линий.
а). Из точки пересечения этих линий проводим под углом d 1 осевые линии делительных конусов и откладываем на них размеры Re и b.
б). Конструктивно оформляем по найденным ранее размерам шестерню и колесо. Вычерчиваем их в зацеплении.
в). На расстоянии а проводим внутреннюю стенку корпуса редуктора.
г). Предварительно намечаем подшипники на обоих валах и из ГОСТа выписываем размеры D и B.
д). На ведомом валу наносим контуры подшипников по размерам D и B на расстоянии x от внутренней стенки корпуса редуктора.
е).На ведущем валу наносим контур подшипника расположенного у шестерни по размерам D и В на расстоянии x от внутренней стенки корпуса редуктора. Замеряем расстояние f 1. Второй подшипник должен располагаться на расстоянии l 1 = (2...2,5) × f 1.
|
|
|
ж). Замеряем и проставляем размеры l 1, f 1, С2, f 2 и l 2.
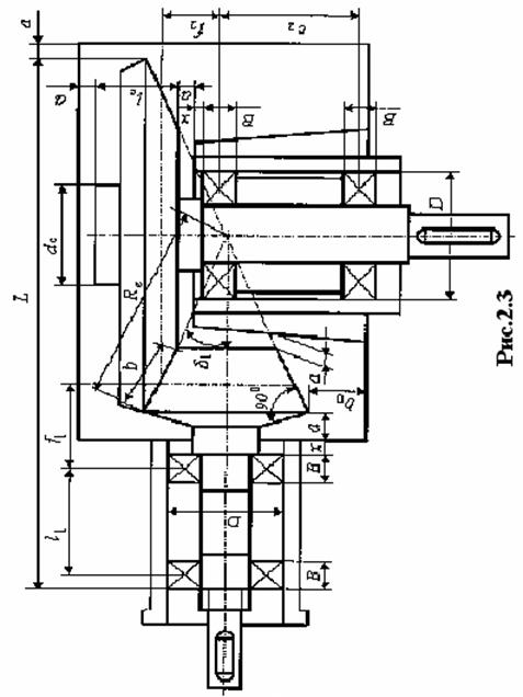
На Рис.2.3 дана схема с консольным расположением шестерни и колеса. Эскизная компоновка выполняется в той же последовательности и по тем же размерам.
![]() |
![]() |
2.3. Червячный редуктор (Рис.2.4 и Рис.2.5)
В отличие от зубчатых редукторов эскизная компоновка выполняется в двух проекциях.
Фронтальная проекция (а).
Проводим две параллельные горизонтальные осевые линии на расстояниии аw друг от друга. Далее проводим вертикальную осевую линию.
Из точки пересечения центра червячного колеса проводим делительную окружность размером d2.
Вычерчиваем контур червяка по геометрическим размерам b1, d1, da1 червяка и конструктивным размерам вала.
Проводим окружность наибольшего диаметра червячного колеса размером dам2.
В зависимости от принятого диаметра вала под подшипники и сил действующих в зацеплении предварительно выбираем радиально-упорные подшипники на ведущем и ведомом валах. Из ГОСТа на выбранные подшипники выписываем наружный диаметр D и ширину подшипника В.
Задаемся расстоянием между подшипниками червяка l 1»dам2. Для устранения защемления подшипников червяка из-за тепловых деформаций деталей передачи с одной стороны его устанавливают два радиально-упорных подшипника, с другой радиальный подшипник, свободно перемещающийся вдоль оси червяка (Рис.2.4). Такая конструкция применяется в редукторах с расстоянием между подшипниками червяка l 1> 8d для шариковых радиально-упорных подшипников и l 1 > 6d - для конических роликовых подшипников, где d - диаметр вала под подшипник. В противном случае червяк устанавливают на два радиально-упорных подшипника (Рис.2.5). Проводим контуры подшипников по размерам D и В.
Проводим внутреннюю стенку корпуса редуктора, выдерживая ранее найденные зазоры а и x.
В процессе компоновки возможно изменение первоначально принятого значения (l 1»dам2), которое определяется минимально допустимым
![]() |
![]() |
зазором а между корпусом и толщиной края бобышки h=5...8 мм.
Замеряем и проставляем размеры С1 и l 1.
Профильная проекция (б). Вторую проекцию червячной передачи выполняем в следующей последовательности.
На продолжении горизонтальных осевых линий проводим перпендикулярную осевую линию, которая проходит через оси симметрии червяка и червячного колеса.
Проводим контуры червяка по размерам d1(dw1), dа1 и червячного колеса по размерам b2, dам2, dс и l с.
Проводим внутреннюю стенку корпуса редуктора на расстоянии зазоров а и b0.
На расстоянии зазора x от внутренней стенки корпуса редуктора проводим контуры выбранных подшипников по размерам D и В.
Замеряем и проставляем размеры С2 и l 2.











