Цилиндрические зубчатые редукторы
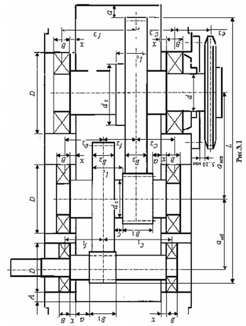
Развернутая схема редуктора (Рис.3.1 и Рис.3.2)
Наиболее распространенной схемой двухступенчатых редукторов является простая развернутая схема. Преимуществом этой схемы является малая ширина редуктора и высокая технологичность.
Эскизная компоновка такой схемы выполняется в следующей последовательности (Рис.3.1).
Проводим три осевые линии на расстоянии равным межосевым расстояниям быстроходной и тихоходной передач (аwб, аwт).
Проводим осевую линию быстроходной передачи и вычерчиваем контуры шестерни и колеса по геометрическим размерам B1, B2, d1, d2,da1 и da2. Если длина ступицы колеса выходит за размеры ширины венца В2, показываем контур ступицы колеса.
На расстоянии зазора «C» (см. п.1.3) проводим контур шестерни тихоходной передачи по размерам B1, d1 и da1.
Проводим ось симметрии относительно ширины шестерни B1.
![]() |
Проводим контур колеса тихоходной передачи по размерам В2, d2, da2, dc и l c.
На расстоянии зазора «a» (см.п.1.1) от ближайшей торцевой и наружной поверхности вращающейся детали проводим внутреннюю стенку корпуса редуктора.
По диаметру вала в месте посадки подшипника и с учетом сил, действующих в зацеплении предварительно выбираем подшипники для всех валов и из ГОСТа выписываем габаритные размеры D и В.
На расстоянии зазора x (см.п.1.4) от внутренней стенки корпуса проводим контуры подшипников по размерам D и В на всех валах.
Замеряем и проставляем размеры на каждом валу С1, f 1, C2, f 2, e2, C3 и f 3. Если на выходном участке тихоходного вала расположена звездочка или шестерня, необходимо определить размер e3.
По размеру D и проходному диаметру d выбираем стандартную сквозную крышку подшипника.
Вычерчиваем контур выбранной крышки по размерам стандарта.
На расстоянии зазора 5...10 мм проводим контур детали (звездочки или шестерни) на концевом участке вала по их геометрическим размерам и осевую линию по ширине детали.
Замеряем и проставляем размер e3.
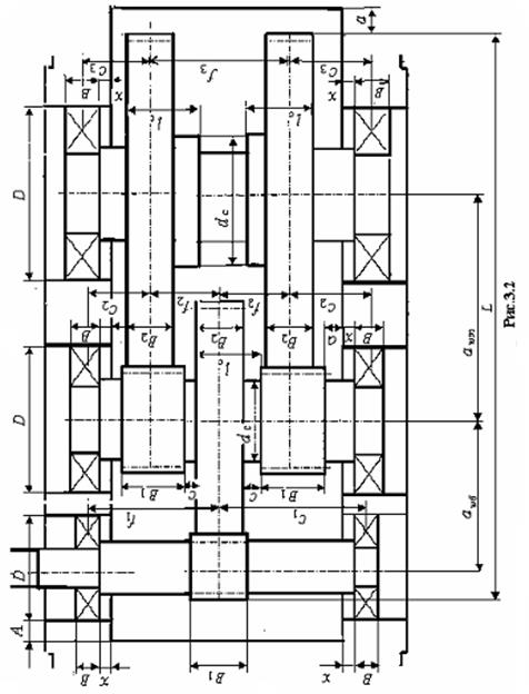
Для улучшения условий работы зубчатых колес и получения равномерной нагрузки на подшипники применяют редукторы с раздвоенной быстроходной или тихоходной (Рис.3.2) парой. Выполнение эскизной компоновки такого редуктора незначительно отличается от предыдущей схемы (см. Рис.3.1).
Проводим осевые линии валов на расстоянии аwб и аwт (Рис.3.2).
Проводим осевую линию и контуры шестерни и колеса быстроходной передачи по размерам B1, B2, d1, d2,da1 и da2. Далее проводим контур ступицы колеса, если она выходит за размер ширины венца колеса B2.
На расстоянии зазора «c» (см.п.1.3) проводим контуры двух тихоходных передач по размерам B1, B2, d1, d2, da1, da2, dc и l c.
На расстоянии зазора «a» проводим внутреннюю стенку корпуса редуктора.
![]() |
По диаметру вала с учетом сил, действующих в зацеплении, предварительно выбираем подшипники для всех валов и из ГОСТа на подшипники выписываем размеры D и В.
На расстоянии x от внутренней стенки проводим контуры подшипников на всех валах по размерам D и В.
Замеряем и проставляем размеры на всех валах С1, f 1, C2, f 2, C3 и f 3.
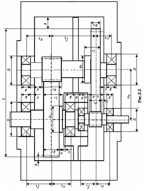
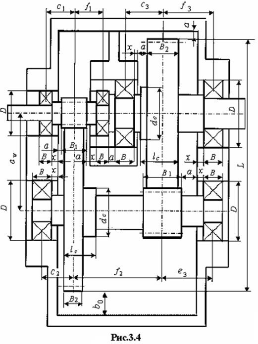
3.1.2. Соосная схема редуктора (Рис.3.3 и Рис.3.4)
Соосные редукторы по массе и габаритам близки к редукторам, выполненным по раздвоенной схеме и в ряде случаев позволяют получить более удобную компоновку машины в целом. Соосные редукторы выполняются по двум схемам: с горизонтальными передачами (Рис.3.3) и с вертикальным расположением передач (Рис.3.4). Эскизная компоновка обеих схем выполняется в одной последовательности.
Проводим две осевые линии валов на межосевом расстоянии аw.
Проводим ось симметрии быстроходной передачи.
Проводим контуры шестерни и колеса быстроходной передачи по размерам B1, B2, d1, d2,da1 и da2. Если длина ступицы l c больше ширины венца колеса B2, намечаем контур ступицы колеса по размерам dc и l c.
На расстоянии «a» (см.п.1.1) от торцевых поверхностей шестерни проводим стенку внутренней опоры с другой стороны внутреннюю стенку редуктора.
По принятым диаметрам под подшипник предварительно принимаем подшипники на всех валах и из ГОСТа на эти подшипники выписываем габариты подшипника D и В.
На расстоянии зазора x (см.п.1.4) от внутренней стенки корпуса редуктора и средней опоры проводим контуры подшипников быстроходного вала по размерам D и В.
На расстоянии зазора «a» от торца подшипника в средней опоре проводим контур подшипника тихоходного вала согласно размеров D и В.
От торца проведенного подшипника тихоходного вала на расстоянии x проводим внутреннюю стенку средней опоры со стороны колеса
![]() |
![]() |
тихоходной передачи.
Проводим контур тихоходного колеса на расстоянии «a» от средней опоры, если l c < B2, в противном случае зазор берется от торца ступицы колеса, по размерам B2, d2, da2.
Проводим ось симметрии ширины венца колеса B2 и контур шестерни тихоходной передачи по геометрическим размерам B1, d1, da1.
На расстоянии зазора «a» и b0 проводим внутренние стенки корпуса редуктора.
На расстоянии зазора x от внутренней стенки редуктора проводим контуры подшипников на тихоходном и промежуточном валах по выбранным размерам D и В.
Замеряем и проставляем размеры на быстроходном валу С1 и f 1, на промежуточном С2, f 2, e2 и тихоходном валах С3 и f 3.
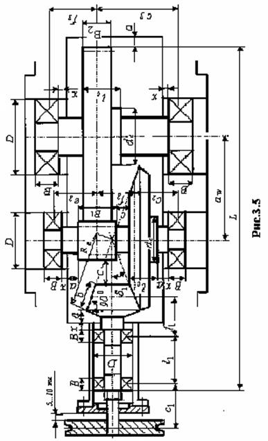
3.2. Коническо-цилиндрический редуктор (Рис.3.5)
Эскизную компоновку начинаем с проведения двух взаимно перпендикулярных осевых линий быстроходного и промежуточного валов.
Из точки пересечения этих линий проводим под углом d 1 осевые линии делительных конусов и откладываем на них размеры конусного расстояния Re и длину зуба b.
По найденным ранее конструктивным размерам оформляем конструкцию вала-шестерни и конического колеса.
На расстоянии зазора «C» (см.п.1.3) между вращающимися деталями проводим контур цилиндрической шестерни тихоходной передачи в виде прямоугольника по размерам B1, d1, da1.
Проводим ось симметрии цилиндрической шестерни.
На межосевом расстоянии аw цилиндрической передачи проводим осевую линию тихоходного вала.
Проводим контур цилиндрического колеса по размерам В2, d2, da2, dc и l c.
На расстоянии зазора «a» проводим внутреннюю стенку корпуса редуктора.
![]() |
По найденным ранее размерам валов под подшипники предварительно выбираем подшипники на всех валах и из ГОСТа на эти подшипники выписываем габаритные размеры D и В. Подшипники ведущего вала располагаем в стакане с целью регулировки конического зацепления.
Определяем положение подшипников вала конической шестерни. Для уменьшения неравномерности распределения удельных нагрузок по ширине зубчатого венца при консольном расположении шестерни один из подшипников должен быть расположен возможно ближе к этой шестерне. На расстоянии зазора x (см.п.1.4) проводим контур первого подшипника по размерам D и В.
Замеряем расстояние f 1. Второй подшипник размещаем на расстоянии l 1 = (2...2,5)× f 1.
На расстоянии зазора x от внутренней стенки корпуса редуктора наносим контуры подшипников на промежуточном и тихоходном валах по размерам D и В.
Замеряем и проставляем размеры:
- на ведущем валу f 1 и l 1; если на концевом участке вала расположен шкив либо иная передающая деталь, необходимо определить размер С1; по диаметру D и проходному диаметру вала d выбирается стандартная сквозная крышка подшипника; по размерам ГОСТа наносится контур крышки; на расстоянии зазора 5...10 мм проводим контур шкива либо иной детали расположенной на валу; проводим осевую линию шкива (детали), замеряем и проставляем размер С1;
- на промежуточном валу С2, f 2 и e2;
- на тихоходном валу С3 и f 3.











