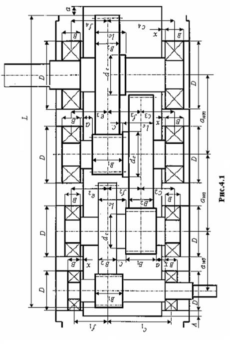
4.1. Цилиндрический редуктор (Рис.4.1)
Эскизная компоновка такой схемы выполняется в одной проекции.
Проводим три осевые линии на расстоянии равным межосевым расстояниям быстроходной, промежуточной и тихоходной передач (аwб, аwп, аwт).
Проводим ось симметрии быстроходной передачи и вычерчиваем контуры шестерни и колеса по геометрическим размерам B1, B2, d1, d2,da1 и da2. Если длина ступицы колеса выходит за размеры ширины венца В2, показываем контур ступицы колеса по размерам dc и l c.
На расстоянии зазора «C» (см. п.1.3) проводим контур шестерни промежуточной передачи по размерам B1, d1 и da1.
![]() |
Проводим ось симметрии относительно ширины этой шестерни B1.
Проводим контур колеса тихоходной передачи по размерам В2, d2, da2, dc и l c.
На расстоянии зазора «a» (см.п.1.1) от ближайшей торцевой и наружной поверхностей вращающейся детали проводим внутреннюю стенку корпуса редуктора.
По диаметру вала в месте посадки подшипников и с учетом сил, действующих в зацеплении, предварительно выбираем подшипники для всех валов и из ГОСТа выписываем габаритные размеры D и В.
|
|
|
На расстоянии зазора x (см.п.1.4) от внутренней стенки корпуса проводим контуры подшипников по размерам D и В на всех валах.
Замеряем и проставляем размеры на каждом валу С1, f 1, C2, f 2, e2, C3, f 3, e3, C4, f 4.
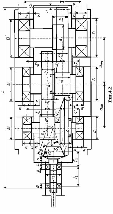
4.2. Коническо-цилиндрический редуктор (Рис.4.2)
Эскизную компоновку начинаем с проведения двух взаимно перпендикулярных осевых линий быстроходного и первого промежуточного валов.
Из точки пересечения этих линий проводим под углом d 1 осевые линии делительных конусов и откладываем на них размеры конусного расстояния Re и длину зуба b.
По найденным ранее конструктивным размерам оформляем конструкцию вала-шестерни и конического колеса.
На расстоянии зазора «C» (см.п.1.3) между вращающимися деталями проводим контур цилиндрической шестерни промежуточной передачи в виде прямоугольника по размерам B1, d1, da1.
Проводим ось симметрии цилиндрической шестерни.
На межосевом расстоянии аwп промежуточной цилиндрической передачи проводим осевую линию второго промежуточного вала.
Проводим контур цилиндрического колеса промежуточной передачи по размерам В2, d2, da2, dc и l c.
На расстоянии зазора «C» (см.п.1.3) между вращающимися деталями
![]() |
проводим контур цилиндрической шестерни тихоходной передачи в виде прямоугольника по размерам B1, d1, da1.
Проводим ось симметрии цилиндрической шестерни.
На межосевом расстоянии аwт тихоходной цилиндрической передачи проводим осевую линию тихоходного вала.
Проводим контур цилиндрического колеса тихоходной цилиндрической передачи по размерам В2, d2, da2, dc и l c.
На расстоянии зазора «a» проводим внутреннюю стенку корпуса
|
|
|
редуктора.
По найденным ранее размерам валов под подшипники предварительно выбираем подшипники на всех валах и из ГОСТа на эти подшипники выписываем габаритные размеры D и В. Подшипники ведущего вала располагаем в стакане с целью регулировки конического зацепления.
Определяем положение подшипников вала конической шестерни. Для уменьшения неравномерности распределения удельных нагрузок по ширине зубчатого венца при консольном расположении шестерни один из подшипников должен быть, возможно, расположен ближе к этой шестерне.
На расстоянии зазора x (см.п.1.4) проводим контур правого подшипника по размерам D и В.
Замеряем расстояние f 1. Второй подшипник размещаем на расстоянии l 1 = (2...2,5)× f 1.
Проставляем размеры на ведущем валу f 1 и l 1.
На расстоянии зазора x (см.п.1.4) от внутренней стенки корпуса проводим контуры подшипников по размерам D и В на двух промежуточных и тихоходном валах.
Замеряем и проставляем размеры на этих валах:
- на 1-м промежуточном валу C2, f 2, e2;
- на 2-м промежуточном валу C3, f 3, e3;
- тихоходном валу C4, f 4.








