Рассмотрим модель горизонтальной жестко заделанной балки и мысленно выделим из нее элементарный участок (Рис. V.4).

Рис. V.4
Если γ – угол поворота балки – постоянный, то со временем меняется и угол поворота сечения dφ, тогда длина дуги bb ' равна:
,
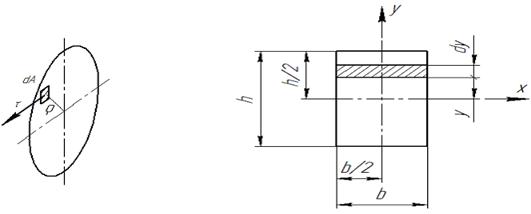
где ρ – расстояние от оси балки до элементарной площадки сечения (Рис. V.5, а).

а) б)
Рис. V.5
Тогда:
.
При использовании формулы (V.1), получим:
. (V.2)
Из закона распределения касательных напряжений следует, что крутящий момент dМz в сечении представляет собой равнодействующий момент касательных напряжений в сечении:
,
где dA – площадь элементарной площадки.
Тогда полный внутренний крутящий момент Мz:

или:
.
Из курса теоретической механики известно:
,
где Iρ - полярный момент инерции сечения.
Тогда используя формулу (V.2), получим формулу распределения касательного напряжения по сечению:
.
Значение касательного напряжения определяется величиной радиуса ρ от оси балки до элементарной площадки сечения (Рис. V. 6):

Рис. V. 6
если ρ =0, то τ =0
если ρ =max= d /2, то τ =max.
|
|
|
Внутренняя зона (ρ ~0) не сопротивляется скручиванию, поэтому валы обычно делают с осевым отверстием, т.е. валы кольцевого сечения.
Оценка деформации вала заключается в определении угла поворота φ вала под действием крутящего момента:
,
тогда:
.
Произведение Iρ · G является механической характеристикой материала и называется жесткостью.
Iρ – геометрическая характеристика сечения, которая показывает закономерность распределения элементарных площадок по всему сечению, при этом описывает способность сечения сопротивляться скручиванию. Размерность полярного момента инерции сечения:
.
Размерность полярного момента выводится из расчета статистического момента сечения,
определяемым интегралом:
,
тогда:
,
для балки прямоугольного сечения основной геометрической характеристикой при расчете на прочность является осевой момент инерции сечения Ix (Рис. V. 5, б):

.
Если радиус ρ разложить по теореме Пифагора:
,
то полярный момент инерции сечения равен:
,
тогда для круглого сечения:
.
Часто вместо полярного момента инерции сечения используется полярный момент сопротивления Wρ:
.






