ЛИНИИ
ГОСТ 2.303 – 68 устанавливает начертание и основное назначение линий на чертежах.
За основную линию чертежа принимается сплошная толстая линия, толщина которой s должна быть в пределах от 0,6 до 1,4 мм. Толщина линий должна быть одинаковой для всех изображений на чертеже, вычерчиваемых в одинаковом масштабе.
На чертежах применяются девять типов линий (табл. II.4).
Таблица 11.4. Типы линий



Линия сгиба (плавного перехода) показывается сплошной тонкой линией. Линия сгиба на развертках и изображение развертки, совмещенной с видом, выполняются штрихпунктирной линией с двумя точками. Таким же типом линий указываются части изделий в крайних или промежуточных положениях. При длинных линиях обрыва следует применять сплошную тонкую линию с двумя изломами (см. рис. 11.10).

Длина штрихов штриховых и штрихпунктирных линий выбирается от 2 до 8 мм и от 3 до 8 мм (в зависимости от толщины линии); расстояние между штрихами штриховых линий – от 1 до 2 мм, штрихпунктирных – от 3 до 4 мм. Длина штрихов тонких штрих – пунктирных линий должна быть от 5 до 30 мм в зависимости от величины изображения, расстояние между штрихами – от 3 до 5 мм (посередине точка).
|
|
|
Штрихпунктирные линии должны заканчиваться штрихами, а не точками. Штрихи в линии должны быть одинаковой длины. Центры окружностей должны отмечаться пересечением штрихов (рис. 11.12, я). Центры отверстий отмечаются пересечением центровой окружности и штрихов, направленных по ее радиусам. Если диаметр окружности равен или менее 12 мм, то ее центровые линии должны проводиться двумя сплошными штрихами, образующими в пересечении центр окружности. Штриховые линии (линии невидимого контура), если они доходят до линии контура изображения, должны упираться в линию контура без промежутка. При пересечении линий невидимого контура штрихи должны пересекаться (рис. 11.12, б).

Линию – выноску, пересекающую контур изображения и не отводимую от какой – либо линии, заканчивают точкой (см. рис. II.9 – шлифовать). Линию – выноску, отводимую от линий видимого и невидимого контуров, изображенных соответственно основной и штриховой линиями, заканчивают стрелкой (см. рис. II.9). На конце линии – выноски, отводимой от всех других линий, не должно быть ни стрелки, ни точки (см. рис. II.9). Линии – выноски не должны пересекаться между собой.
ГОСТ 2.104 – 68 распространяется на чертежи и другие технические документы и устанавливает форму и порядок заполнения основной надписи на чертежах.
Основные надписи и рамки выполняют сплошными основными и тонкими линиями по ГОСТ 2.303 – 68. Располагают основные надписи в правом нижнем углу чертежа или другого технического документа. Формат А4 располагается только вертикально (основная надпись внизу листа). Форматы больше А4 могут быть расположены как горизонтально, так и вертикально (основная надпись может быть нанесена как вдоль длинной, так и вдоль короткой стороны листа).
|
|
|
Рамку, ограничивающую поле чертежа, следует наносить сплошной основной линией на расстоянии 5 мм внутрь от границы формата. Рамку с левой стороны формата следует наносить на расстоянии 20 мм, оставляя поле для подшивки чертежа.
Содержание, расположение и размеры граф основной надписи, а также размеры рамок на чертежах и схемах (первый лист) должны соответствовать форме 1 (рис. II 13)
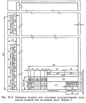
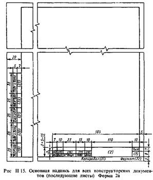
Основная надпись для текстовых конструкторских документов (первый или заглавный лист) – форме 2, последующие листы всех конструкторских документов – форме 2а (рис. 11.15).



В графах основной надписи указывается следующее.
Графа 1 – наименование изделия, а также наименование документа, если этому документу присвоен шифр
Графа 2 – обозначение документа по ГОСТ 2.201 – 80.
Графа 3 – обозначение материала детали (графу заполняют только на чертежах деталей).
Графа 4 – литера, присвоенная данному документу по ГОСТ 2.103 – 68 (графу заполняют последовательно, начиная с крайней левой клетки).
Графа 5 – масса изделия (в кг) по ГОСТ 2.109 – 73.
Графа 6 – масштаб (проставляется в соответствии с ГОСТ 2.302 – 68 и ГОСТ 2.109 – 73).
Графа 7 – порядковый номер листа (на документах, состоящих из одного листа, графу не заполняют)
Графа 8 – общее количество листов документа (графу заполняют только на первом листе)
Графа 9 – наименование предприятия, выпускающего документ.
Графа 10 – характер работы, выполняемой лицом, подписывающим документ, в соответствии с формами 1 и 2. Свободную строку заполняют по усмотрению разработчика, например: «Начальник отдела»; «Начальник лаборатории»; «Рассчитал».
Графа 11 – фамилии лиц, подписывающих документ.
Графа 12 – подписи лиц, фамилии которых указаны в графе 11. Подписи лиц, разработавших данный документ и ответственных за нормоконтроль, являются обязательными.
Графа 13 – дата подписания документа
Графы 14 – 18 – графы таблицы изменений, которые заполняют в соответствии с требованиями ГОСТ 2.503 – 74.
Графы 19 – 25 – изменения.
Графа 26 – обозначение документа, повернутое на 180 °, для формата А4 и для формата больше А4 при расположении основной надписи вдоль длинной стороны листа.
Графы 27 – 30 – заполняются заказчиком.
Графа 31 – подпись лица, копировавшего чертеж.
Для быстрого нахождения на чертеже (схеме) составной части изделия поле чертежа рекомендуется разбивать на зоны. Отметки наносят по горизонтали – арабскими цифрами справа налево, по вертикали – прописными буквами латинского алфавита снизу вверх. Зоны обозначают сочетанием букв и цифр, например: Al, A2, A3, B1, B2, ВЗ и т. д.
