Сливоналивная железнодорожная эстакада представляет сооружение у специальных железнодорожных путей, оборудованное сливоналивными устройствами и обеспечивающее выполнение операций по сливу нефти и нефтепродуктов из железнодорожных цистерн или их наливу.
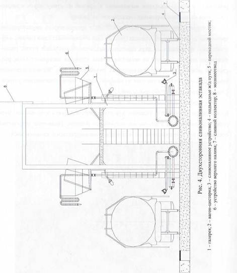
На территории нефтебазы ЗАО «СОВЭКС» предусмотрена двухсторонняя тупиковая сливоналивная эстакада (рис. 3). Она обеспечивает слив (налив) нефтепродукта из цистерн на двух параллельных железнодорожных путях, расположенных по обе стороны от эстакады. Длина эстакады составляет 60 м, расстояние между осями железнодорожных путей равно 8 м. Железнодорожная сливо-наливная эстакада состоит из галереи, коллекторов со сливными устройствами и отводными трубопроводами.
Для площадки сливоналивной эстакады предусмотрено твердое водонепроницаемое покрытие с уклоном для стока нефтепродукта к приемным устройствам (приямкам) в случае его аварийного розлива. Приемные устройства соединены через гидравлические затворы с производственной канализацией.
|
|
|


|

Рис. 5. Устройства для нижнего слива нефтепродуктов
Операции нижнего слива нефтепродуктов осуществляют через устройства, расположенные снизу цистерны. Слив нефтепродукта осуществляется принудительным способом с помощью насосов, расположенных в насосной станции. Так как на нефтебазу привозят нефтепродукты с температурой вспышки менее 120 °С, то используют закрытые сливоналивные устройства в виде системы трубопроводов шарнирно-сочленённого исполнения (рис. 5). С помощью шарнирных соединений сливоналивные устройства заводят под цистерну и подсоединяют к патрубкам.
|

Рис. 6. Устройство для верхнего налива нефтепродуктов
Устройства для верхнего слива и налива (рис.6) выполнены в виде вертикально установленных трубопроводов (стояков), которые в верхней части через поворотные сальники соединяются с гибкими гофрированными шлангами (рукавами), прикреплёнными для их разгрузки к поворотным консолям. Концы шлангов сливоналивных стояков для прочности оборудованы наконечниками. Для предотвращения пролива остатков нефтепродуктов на железнодорожные пути на эстакаде предусмотрены специальные системы сбора утечек с приемными устройствами (рис. 7). Для удобства открывания запорных люков цистерн эстакада оборудована специальными откидными мостиками. Металлические части мостиков, соприкасающиеся с цистернами, покрыты специальными резиновыми накладками для предотвращения высекания искр при откидывании мостика на цистерну.
В настоящее время нефтебаза ЗАО «СОВЭКС» в качестве перевалочного пункта нефтепродуктов не используется и поэтому операции по наливу цистерн не производятся.
|
|
|

Рис. 7. Приемные устройства системы сбора Рис. 8. Приспособления для выравнивания
утечек нефтепродуктов потенциалов между ж/д цистернами
и металлическими частями эстакады
Для предупреждения накапливания зарядов статического электричества железнодорожные пути, эстакады, трубопроводы и цистерны заземляют. Резиновые сливоналивные шланги с металлическими наконечниками заземляют проволокой или металлическим тросиком, обвивающим шланг по всей длине. Кроме того, предусматривают специальные устройства для выравнивания потенциалов между железнодорожной эстакадой и цистерной с нефтепродуктом (рис. 8).

Опасность разрядов атмосферного электричества предупреждают устройством молниеотводов (рис. 9 и рис. 10) и полным прекращением процессов слива и налива нефтепродуктов во время грозы.
![]() |
|
Для перевозки нефти и нефтепродуктов по железной дороге используют четырёх- или восьмиоспые вагоны-цистерны (рис. 1 1) грузоподъёмностью соответственно 60 и 120 т, которые, как правило, оборудуют универсальными сливоналивными приборами, предохранительными клапанами, а в отдельных случаях - паровой рубашкой.
Рис. 11. Общий вид железнодорожной цистерны для транспортировки нефтепродуктов
В качестве инженерного расчета первая подгруппа определяет параметры молниезащиты сливоналивной эстакады. Задания для выполнения инженерного расчета приведены в приложении 3. Варианты задания распределяются согласно списочному составу подгруппы. Выполненный расчет с выводами прилагается к отчету.







