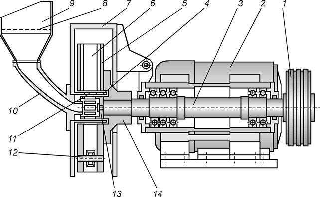
Среди струйных методов очистки наибольшее распространение имеет дробеметный метод. Сущность дробеметной очистки состоит в направлении на очищаемую поверхность отливки струи дроби, разогнанной в дробеметном аппарате до скорости 40¸100 м/с. Дробеметный аппарат (рис. 108) имеет следующие основные узлы: шпиндель 3, ротор 5, загрузочную воронку 9, распределительную коробку 4 и кожух 7.
Рис. 108. Устройство дробеметного аппарата |
Шпиндель предназначен для передачи вращательного движения от электродвигателя 2 к ротору 5 через клиноременную передачу 1. Ротор служит для придания дроби необходимой скорости и состоит из двух дисков, радиально расположенных лопастей 6 и крыльчатки (импеллера) 13. Распределительная коробка соединена с кожухом головки и имеет окно 11, положение которого можно изменить при повороте коробки и таким образом изменить направление струи дроби при вылете из аппарата.
Загрузочная воронка служит для подачи дроби из сепаратора в полость крыльчатки. Кожух предотвращает вылет дроби во внешнюю среду; он состоит из корпуса и крышки. Корпус и крышка головки с внутренней стороны покрыты сменными литыми щитами.
|
|
|
При работе аппарата дробь самотеком поступает в крыльчатку, разгоняется лопастями крыльчатки и под действием центробежной силы выбрасывается через окно распределительной коробки. Затем дробь подхватывается лопастями дробеметной головки, получает во время движения по ним высокую скорость и направляется в зону очистки.
Траектория движения дроби в аппарате (рис. 109) показана жирной линией. Дробь подается в отверстие крыльчатки нагнетателя 4 и попадает между его лопатками, которые выбрасывают дробь в отверстие 2 направляющей втулки 3. Дробь подхватывается внутренним краем лопатки 1. Так как разность скоростей лопатки и дроби велика, а направления движений почти совпадают, происходит ударное взаимодействие дробинок с лопаткой и дискретный характер их движения по всей лопатке.
Рис. 109. Траектория движения дроби в дробеметном аппарате |
Удар дробинок вызывает мгновенное повышение температуры в зоне удара, значительные деформации и снижение контактно-усталостной прочности, что приводит к интенсивному износу лопаток.
Срок службы лопаток ограничен. Низкая эксплуатационная стойкость лопаток вызывает значительные простои оборудования из-за частой замены изношенных лопаток, а также большие расходы по их изготовлению.
Помимо увеличения эксплуатационной стойкости лопаток за счет подбора более износостойких материалов эта стойкость может быть увеличена также за счет следующих мероприятий:
|
|
|
- создание такого криволинейного профиля радиально расположенной лопатки, который бы обеспечивал плавный, безударный вход дроби на поверхность лопатки;
- изменение положения лопатки относительно радиуса. Отклонение лопатки в сторону, противоположную вращению, обеспечивает вход дроби на лопатку без удара. Однако при этом наблюдается некоторое снижение скорости схода дробинок с лопастей;
- подача дроби сжатым воздухом вдоль лопаток.
Несмотря на ограниченную стойкость рабочих лопаток, дробеметный способ очистки имеет следующие преимущества перед другими способами:
- производительность его в 10 раз выше, чем при дробеструйной очистке;
- расход энергии в 10 раз меньше, чем при дробеструйной очистке;
- имеется возможность регулировать скорость вылета абразивного материала из дробеметного аппарата путем изменения частоты вращения рабочего колеса;
- меньшая, чем при дробеструйной очистке, запыленность рабочего места.
Недостатком дробеметной очистки следует считать затрудненность очистки отливок сложной конфигурации.
Производительность дробеметной очистки, как и дробеструйной, пропорциональна количеству дроби, выбрасываемой дробеметным аппаратом в единицу времени.
Рабочее колесо дробеметного аппарата выполняется чаще всего двухдисковым (рис. 110). В этом случае лопатки 2 устанавливаются в пазы дисков 5 и фиксируются от радиального смещения штифтами 7, для этого на лопатке имеется профильный прилив 6. Расстояние между дисками задается дистанционными колонками 8. Импеллер 4 соединен с диском 5 и вращается вместе с ним. Втулка 3 соединяется с кожухом колеса и остается неподвижной. Начальная установка втулки делается такой, чтобы угол между радиусом, проведенным через правую (по рис. 110) кромку отверстия 1 и предполагаемой осью факела дроби составлял примерно 140°.
Рис. 110. Крепление лопаток рабочего колеса дробеметного аппарата |
В безимпеллерных дробеметных аппаратах (рис. 111) дробь подается самотеком в направляющий патрубок, где подхватывается сжатым воздухом и вбрасывается в пространство между лопатками.
Импеллер и втулка с окном в данной конструкции отсутствуют. Встреча дроби с лопаткой происходит с меньшим ударом, поэтому срок службы лопаток и дроби выше, чем в импеллерных аппаратах. Изменить направление факела дроби можно путем поворота направляющего патрубка.
В зависимости от метода подачи отливок под струю дроби, и размещение очистных аппаратов дробеметное очистное оборудование разделяют на барабаны, столы, камеры и специальные установки. По характеру работы это оборудование бывает периодического и непрерывного действия.
Рис. 111. Безимпеллерный дробемет |
В дробеметном ленточном барабане периодического действия (рис. 112) очистка отливок осуществляется факелом дроби 5 в рабочем пространстве 1, образуемом перфорированным пластинчатым транспортером 3, охватывающим три шкива 4, и двумя торцовыми дисками 2.
Транспортер имеет два направления движения – рабочее (на рис. 112, б показано стрелкой), при котором отливки переворачиваются в рабочем пространстве, и, обратное, предназначенное для выгрузки отливок. Над рабочим пространством устанавливается один или два дробеметных аппарата 6. Отливки в дробеметный ленточный барабан периодического действия обычно загружают скиповым подъемником.
Рис. 112. Схема устройства дробеметного барабана периодического действия |
Барабан периодического действия может быть встроен в непрерывный поток. Отливки транспортером непрерывно подаются в промежуточный бункер-накопитель, из которого порциями перегружаются в ковш скипового подъемника. По мере очистки порции отливок (10¸15 мин) скиповый подъемник загружает отливки в барабан. Очищенные отливки пластинчатым транспортером барабана подаются на пластинчатый транспортер выгрузки и транспортируются на участок абразивной зачистки. Выпускаются барабаны для массы загрузки от 500 до 3000 кг отливок. Для очистки литья, подверженного бою, выпускаются барабаны, в которых пластинчатый транспортер заменен резиновой лентой.
|
|
|
Некоторые отливки, например, плоские диски, отливки, имеющие длинные тонкие выступающие части, тонкостенные отливки и др. не рекомендуется подвергать очистке в барабанах. Их чистят на дробеметных очистных столах, которые представляют собой плоскую карусель, часть которой закрыта и находится в зоне очистки, а другая часть выходит наружу для загрузки, разгрузки и перемены положения отливок. В установках непрерывного действия карусель вращается без остановок, пронося отливки под дробеметными аппаратами. В установках периодического действия отливки устанавливаются не на карусель, а на вращающиеся тарели. При работе такого стола карусель периодически останавливается, а тарели вращаются в зоне очистки под потоком дроби. Для ускорения процесса загрузки и разгрузки тарели делают съемными.
Крупные и тяжелые отливки очищаются в камерах периодического действия. Отливки в таких камерах устанавливают на самодвижущиеся столы, которые в большинстве случаев имеют вращающиеся платформы. Грузоподъемность столов достигает 50 т и более. В рабочем пространстве камеры отливка вращается на платформе, подвергаясь воздействию потоков дроби от нескольких дробеметных аппаратов. Камеры обычно снабжаются также дробеструйными аппаратами, с помощью которых производится очистка поверхностей в карманах и полостях, не доступных потоку дроби, направляемому дробеметным аппаратом.
В условиях крупносерийного и массового производства широко применяют камеры непрерывного действия (см. рис. 113). В этих камерах отливки закрепляются на подвесках, которые цепью подаются в зону очистки и вращаются там, подставляя поверхность отливок под потоки дроби. В таких камерах устанавливают 4, 6, 8, 12 и более дробеметных аппаратов, в зависимости от необходимой производительности.
|
|
|
Подвесной конвейер дробеметной камеры непрерывного действия устроен следующим образом (рис. 114). Тележка 5 подвески своими роликами 6 опирается на монорельс 1 двутаврового сечения. Тележки распределены по трассе конвейера с постоянным шагом и соединены тяговой цепью 2. На всех поворотах трассы цепь огибает звездочки. Одна из звездочек является приводной, а одна натяжной, для компенсации вытяжения цепи при износе шарниров. На оси подвески установлено зубчатое колесо 4. На крюк подвески может быть установлена этажерка для мелких или цепь с крючьями для крупных отливок.
Вращение подвесок в зоне обстрела дробью происходит благодаря наличию на оси подвески зубчатого колеса. При непрерывном движении подвесного конвейера в зоне обстрела устанавливается зубчатая рейка 3. При прокатывании шестерни по зубчатой рейке в процессе движения конвейера, подвеска вращается относительно вертикальной оси. При пульсирующем движении конвейера, соосно со звездочкой, расположенной в зоне обстрела устанавливается зубчатое колесо. После смещения конвейера на один шаг подвесок, зубчатое колесо начинает вращаться, поворачивая подвески, сцепленные с ним шестернями 4. Очистка происходит лучше, чем в первом случае.
Рис. 113. Дробеметная камера непрерывного действия: 1 – камера; 2 – монорельс; 3 – звездочка; 4 – приводная и натяжная станция; 5 – приводная цепь; 6 – этажерка подвески; 7 – элеватор подъема дроби; 8, 9, 10 – дробеметные аппараты. |
Для отливок, у которых для различных поверхностей требуется разное время очистки, применяют камеры непрерывного действия с индивидуальными подвесками с программным управлением. У камер этого типа каждая подвеска перемещается по монорельсу и вращает отливку в зоне очистки самостоятельно по заранее заданной программе.
Рис. 114. Устройство подвесного конвейера дробеметных камер |
Дробеметная камера изнутри покрывается резиной для снижения шума.
Ворота чаще выполняются в виде двух пар последовательно установленных резиновых занавесей. Такая конструкция легко пропускает подвеску и не дает дроби разлетаться. Трасса подвесного конвейера внутри камеры защищается от воздействия дроби броневыми плитами.
Дробеметные камеры имеют решетчатый пол. Под ним устроена система сбора и подготовки дроби, которая затем поднимается вверх элеватором и подается к дробеметным аппаратам самотеком по трубам.
Рис. 108. Устройство дробеметного аппарата
Рис. 109.
Рис. 110. Крепление лопаток рабочего колеса дробеметного аппарата
Рис. 111. Безимпеллерный дробемет
Рис. 112. Схема устройства дробеметного барабана периодического действия
Рис. 113. Дробеметная камера непрерывного действия: 1 – камера; 2 – монорельс; 3 – звездочка; 4 – приводная и натяжная станция; 5 – приводная цепь; 6 – этажерка подвески; 7 – элеватор подъема дроби; 8, 9, 10 – дробеметные аппараты.
Рис. 114. Устройство подвесного конвейера дробеметных камер 





