формулы для расчёта 
1. Калибр имеет входящий размер
|
2. Калибр имеет охватывающий размер
|
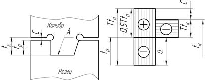
и - допуск соответственно на высоту резца и калибра
; а – допуск на износ калибра ;
С – размер на компенсацию «светового зазора».
При мм ; .
При мм ;
При мм
|
Таблица 3.7
и
- допуск соответственно на высоту резца и калибра
; а – допуск на износ калибра
;
С – размер на компенсацию «светового зазора».
При
мм
;
.
При
мм
;
При
мм






