При расчете поперечных размеров эмиттер и контактное окно к нему полагаем квадратным. Принципы, использованные при расчете продольных размеров, справедливы и для поперечных. Размеры, указанные на рисунках, приведены в мкм.
|
| Рис. 10.12. Структура с диэлектрической изоляцией |
Исправить эмиттер-коллектор!
|
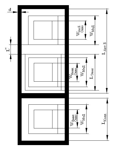
| Рис. 10.13. Общий вид структуры при изоляции p-n -переходом |
Тогда минимальный размер базы в поперечном направлении (если нет необходимости делать структуру более широкой для снижения плотности тока):

Номинальный поперечный размер базы с учетом случайных ошибок и боковой диффузии:

Максимальный размер:

Размер окна для диффузии примеси в область базы на фотошаблоне:

Необходимо сравнить поперечный размер базы с размером глубокого коллектора. Если размер ГК больше, то он, а не база ограничивает поперечный размер скрытого слоя и расстояние между изолирующими областями. А если меньше – ГК обычно делают прямоугольным, вытягивая в поперечном направлении до размера базы.
|
|
|
Поперечный размер скрытого слоя:
Минимальный размер:
мкм,
Номинальный размер:

Размер на фотошаблоне:







