В схеме с общей базом управляющим током является ток эмиттера. Выходные коллекторные характеристики в этом случае выражаются зависимостью:

а входные эмиттерные характеризуются:

Построим выходные характеристики пользуясь моделью Эверса–Мола

I – нормальный активный режим;
II – режим насыщения;
III – режим лавинного пробоя.
– потоки электронов инжектированных из эмиттера.
– потоки электронов инжектированных из коллектора в зоне I они равны нулю.
Реальные характеристики – пунктиром, сплошной – построенные по модели Эверса–Мола.
Если инжекция из эмиттера отсутствует (
), то зависимость тока коллектора от напряжения коллектор-база представляет собой обычную ВАХ стандартного p-n перехода, отличие состоит в том, что на рассматриваемом рисунке обратная ветвь ВАХ находится в первом квадрат, а прямая в третьем. В результате инжекции из эмиттера при
в коллекторе возникает ток электронов
, содержащий в коллекторной цепи ток коллектора
, который будет возрастать пропорционально потоку инжектированных из эмиттера электронов. При подаче на коллектор прямого напряжения последний сам будет инжектировать встречный поток электронов (
), результирующий поток будет резко уменьшаться до нуля с ростом прямого напряжения на коллекторе, и при дальнейшем увеличении прямого напряжения он приобретет обратное направление. Из рисунка так же видно, что в активном режиме коллекторные напряжения не оказывают влияния на входные характеристики схемы с общей базой. Этот вывод справедлив для большинства практических случаев. Действительно с повышением обратного коллекторного напряжения ток коллектора в активном режиме будет слабо увеличиваться (пунктир) за счет увеличения обратного коллекторного тока
и коэффициента передачи эмиттерного тока
. Возрастание
связано с эффектом Эрли, который заключается в модуляции толщины базы
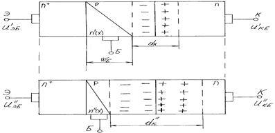
и сопротивления
, под которым понимают омическое сопротивление полупроводника в базовой области транзистора при изменении коллекторного напряжения. (см. рис.)
|
|
|

– распределение носителей заряда инжектированных в базу из эмиттера.
Нетрудно увидеть, что эффект Эрли есть постоянно действующий в момент прохождения электромагнитного сигнала. Однако при изменении статических характеристик транзистора он является паразитным эффектом, т. к. может существенным образом изменить характеристики p-n перехода. Поэтому при измерении статистических характеристик используют режимы холостого хода и короткого замыкания. Именно поэтому фиксируют значение напряжения
в схеме с общей базой или ток эмиттера. Именно поэтому отличаются характеристики p-n перехода база-эмиттер при замкнутых или разомкнутых электродах база-коллектор.
|
|
|






