Общая структурная схема СМ как система
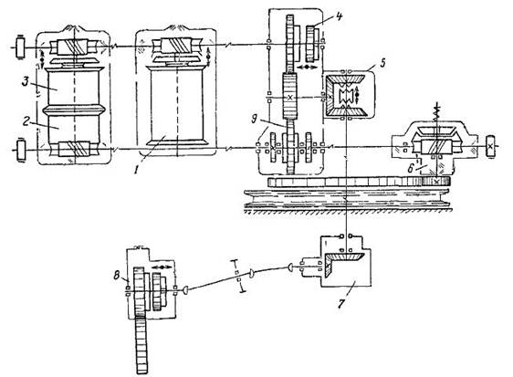
В общем виде все строительные машины состоят из: несущей конструкции, рабочего механизма, силовой установки, ходового устройства, системы управления. Схема машины позволяющая наглядно представить расположение и взаимодействие различных приводов машины называется кинематической схемой строительной машины. Пример кинематической схемы крана приведен на рис. 1.1.
Несущая конструкция воспринимает все внешние нагрузки от рабочих органов, давления ветра, инерционных нагрузок. Несущая конструкция представляет собой раму или корпус машины на которую монтируют все механизмы, двигатели, органы управления и рабочие механизмы.
Геометрические формы и габаритные размеры несущих конструкций определяются технологическим назначением машины, величиной и характером внешних нагрузок. Так, габариты ходовой части кранов и экскаваторов определяются условиями устойчивости, а размеры поворотной платформы – условиями расположения механизмов, противовеса и кабины управления.
|
|
|

Рис. 1.1 – Кинематическая схема автомобильного крана с групповым приводом
1 – барабан грузоподъемной лебедки, 2 – барабан стрелоподъемной лебедки, 3 – барабан грейферной лебедки, 4 – распределительная коробка, 5 – реверс, 6 – механизм поворота, 7 – редуктор, 8 – коробка отбора мощности, 9 – шестерни распределительной коробки
Рабочим механизмом – называется механизм выполняющий рабочие операции. Бывают механизмы подьема груза (краны), стрела экскаватора с ковшом, отвал бульдозера, ковш скрепера и т.д.
Силовая установка вырабатывает энергию необходимую для работы машины. Все силовые установки строительных машин разделяются по типу и числу двигателей на одномоторные с электродвигателем переменного, постоянного тока или с двигателем внутреннего сгорания и многомоторные с электродвигателями переменного или постоянного тока, многомоторные с двигателями внутреннего сгорания (обычно не более двух), а также многомоторные комбинированные приводы: электрогидравлические, дизель-электрические, дизель-гидравлические и дизель-пневматические.
У машин с комбинированным приводом, например дизель-электрическим, энергетической установкой является дизель, приводящий в движение генератор переменного или постоянного тока, питающий энергией отдельные электродвигатели исполнительных механизмов.
Ходовое устройство строительных машин служит для передачи силы тяжести машины и внешних нагрузок на грунт и перемещение машины по грунту. В строительных машинах применяются: рельсо-колесные, пневмоколесные, гусеничные и шагающие ходовые устройства.
|
|
|
Управление машиной может осуществляться машинистом (оператором), включающим и выключающим приборы управления, или же автоматически по заложенной в систему заранее составленной программе. В необходимых случаях применяют дистанционное управление машинами.
По источнику энергии системы управления разделяются на механическую, пневматическую, гидравлическую и электрическую. По конструктивному исполнению системы управления бывают непосредственного действия и с усилителем (сервоприводом).
Применение при строительстве строительных машин связано с выбором требуемых машин в зависимости от местных условий, необходимых темпов выполнения работ и т.д. Для сравнения машин и выбора наиболее оптимального используют следующие параметры: маневренность, проходимость, устойчивость, производительность, соответствие требованиям безопасности и экологии работ.
Маневренность – это способность передвигаться и разворачиваться в стесненных условиях, а также перемещаться по строительному участку и вне его с достаточной по производственным условиям скоростью.
Проходимость машины – это способность преодолевать неровности местности и неглубокие водные преграды, проходить по влажным и рыхлым грунтам, снежному покрову и т.д.
Устойчивость машины – это способность противостоять действию сил, стремящихся ее опрокинуть.
Производительность – количество продукции вырабатываемое в единицу времени – час, смена, год. В первую очередь на экономическую эффективность использования строительных машин влияет их производительность и затраты приходящиеся на монтаж единицы продукции.
Также машины должны удовлетворять требованиям безопасного ведения строительно-монтажных работ. Для этого они проходят переодический техосмотр, где устанавливается состояние элементов машины, их исправность и надежность. По результатам техосмотра оформляется допуск к использованию машин.
Для поддержания строительных машин в работоспособном состоянии в строительных организациях предусматривается проведение технического обслуживания и планово-предупредительного ремонта. В систему планово-предупредительного ремонта и технического обслуживания входят: ежесменное техническое обслуживание, выполняемое регулярно перед началом работы, во время перерывов и по окончании работы машины; периодическое техническое обслуживание (ТО), проводимое регулярно через определенные интервалы времени, установленные для каждой машины; периодические ремонты, осуществляемые также через определенные промежутки времени, установленные для каждой машины.
Рекомендуемая дополнительная литература
1. Белецкий Б.Ф. Строительные машины и оборудование: Справочное пособие. – Ростов на Дону: Феникс, 2002. – 591 с.






