Общие правила выполнения и чтения чертежей
Общие сведенья. Общие правила выполнения и чтения чертежей заложены в Государственных стандартах ЕСКД 3-й группы в СПДС 2-й группы, которые устанавливают форматы листов чертежей, масштабы, типы линий, гарнитуру и размеры шрифтов, правила построения изображении (видов, разрезов, сечений), обозначения графических материалов и правила их нанесения на чертежах, правила нанесения размеров и надписей, построения аксонометрнческнх проекций (конкретные обозначения государственных стандартов ЕСКД и СПДС, которые потребуются при решении задач контрольных работ, приводятся в указаниях к выполнению листов).
Теоретическое и практическое освоение положений стандартов этих групп способствует формированию у студента начальной инженерной графической грамоты, без которой невозможно перейти к успешному освоению специфических особенностей построения чертежей строительных и машиностроительных изделий, зданий и сооружений, а также геометрических и графических основ современной машинной графики. В основе любого графического изображения, представленного на поле чертежа (буквенно-цифровое обозначение, надписи, рамка чертежа, основная надпись, виды деталей, размерные линии и числа к ним и т. д.), лежит выполненная умозрительно или зафиксированная тонкими линиями на чертеже определенная последовательность геометрических построений, результат которых оформляется в строгом соответствии с указанными выше государственными стандартами ЕСКД и СПДС. Грамотные геометрические построения плоских графических фигур являются основой успешного составления алгоритмов и машинных программ их автоматического вычерчивания на чертежном автомате или дисплее. В этой связи студент обязан последовательно и аккуратно выполнять тонкими линиями все геометрические построения, связанные как с оформлением чертежа, так и построением видов, изображаемых объектов или их элементов.
|
|
|
КОНТРОЛЬНАЯ РАБОТА 3
(Листы 1... 14. Листы 2, 4, 6, 8, 10, 12 выполняют на обороте листов 1, 3, 5, 7, 9, 11)
Лист 1
Формат АЗ. Выполнить титульный лист и содержание по образцу рис. 1. На титульном листе (см. рис. 1) необходимо внести следующие изменения: номер контрольной работы - З, название контрольной работы - начертательная геометрия и черчение, ч. I. В основную надпись листа «Содержание» вносят те же изменения. Содержание контрольной работы должно соответствовать приведенному:
Л и с т 1. Титульный лист и содержание.
Л и с т 2. Работа над ошибками.
Л и с т 3. Стандарты чертежа: задачи 1, 2, 3, 4, 5.
Л и с т 4. Аксонометрия, тени: задачи 1, 2 (перспектива, тени: задачи 1, 2, 3, 4, 5).
|
|
|
Л и с т 5. Комплексная задача по аксонометрии и теням (комплексная задача по перспективе и теням).
Л и с т 6. Геометрическая схема и блок- схема алгоритма графического построения сопряжения двух окружностей.
Лист 7. Комплексные задачи 1, 2 на сопряжение. Уклон.
Л и с т 8. Основные виды детали.
Л и с т 9. Виды, разрезы, сечения: задачи 1, 2.
Л и с т 10. Комплексная задача по оптимизации количества изображений детали и нанесение размеров.
Л и с т 11. Аксонометрический чертеж детали с разрезом.
Л и с т 12. Технический рисунок детали.
Л и с т 13. Аудиторные самостоятельные работы 1, 2, 3.
Л и с т 14. Зачетная работа.
Лист 2
Формат АЗ. Основная надпись по форме 4б (см. рис. 2). Выполнить графические работы в объеме, указанном преподавателем в процессе рецензирования листов контрольных работ.
Лист 3
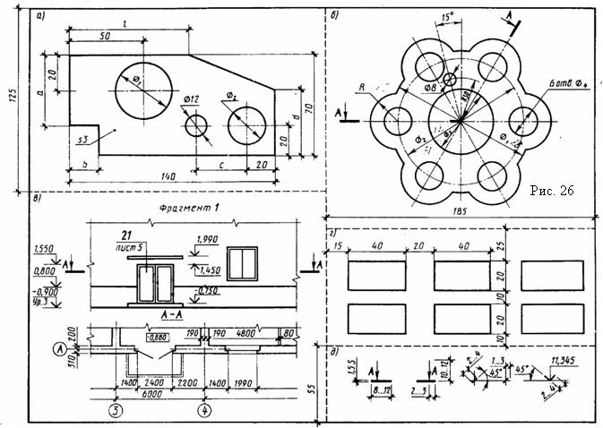
Формат АЗ. Основная надпись по форме 4а. Выполнить пять задач. Пример оформления листа см. на рис. 25. Решение каждой задачи располагается в специально отведенной для нее зоне, ограниченной штриховыми линиями. Размеры зон указаны на рис. 26.

Задача 1. Вычертить изображение плоской детали и нанести ее размеры, которые берутся согласно рис. 26 а) и табл. 15. Таблица 15
| № варианта | Размеры, мм | ||||||
| a | b | c | d | e | Ø1 | Ø2 | |
Указания к выполнению задачи 1. Нанесение размеров выполнять по ГОСТ 21.105-79 и 2.307-68* (СТ СЭВ 1976— 79, СТ СЭВ 2180--80). Общее количество размеров на чертеже должно быть минимальным, но достаточным для изготовления и контроля изделия. Не допускается повторять размеры одного и того же элемента на разных изображениях. Линейные размеры указывают в миллиметрах. Размеры на чертежах изделий не допускается наносить в виде замкнутой цепи. Размеры на чертежах указывают размерными числами и размерными линиями. Размерную линию с обоих концов ограничивают засечками в виде толстых основных линий длиной 2.4 мм, проводимых с наклоном вправо под углом 45° к размерной линии (рис. 27, а). На машиностроительных чертежах взамен засечек применяют стрелки (рис. 27, 6). Размерные линии радиусов дуг и диаметров окружностей ограничивают стрелками.
Размерные линии предпочтительно наносить вне контура изображения. Выносные линии должны выходить за размерные линии на 1...3 мм. Минимальные расстояния между параллельными размерными линиями должны быть 7 мм, размерной и линией контура - 10 мм и выбраны в зависимости от размеров изображения и освещенности чертежа. Размерные числа наносят над размерной:линией на расстоянии не менее 1 мм и возможно ближе к ее середине. При нанесении размерных линий и размеров необходимо пользоваться шаблоном, изображенным на рис. 6. Необходимо избегать пересечения размерных и выносных линий. Размеры, относящиеся к одному и тому же конструктивному элементу (пазу, выступу отверстию и т.д.) рекомендуется группировать в одном месте, располагая их на том изображении, на котором геометрическая форма данного элемента показана наиболее поно.
При нанесении размера радиуса или диаметра перед размерным числом помещают соответственно прописную букву R или знак Ø (рис. 28). При изображении детали в одной проекции размер ее толщины (длины) наносят па полке линии-выноски, перед его значением помещают строчную букву s (l).
При обводке чертежа необходимо строго придерживаться требований ГОСТ 2.303 - 68* (СТ СЭВ 1178-78), регламентирующих начертание и основные назначения линий на чертежах.
Задача 2. Вычертить изображение плоской детали, нанести размеры и секущую плоскость. Размеры детали принимаются согласно рис. 26, 6 и табл. 16. Таблица 16
| № варианта | Размеры, мм | ||||
| Ø1 | Ø2 | Ø3 | Ø4 | R1 | |
Указания к выполнению задачи 2. Оформление изображения детали выполнить в строгом соответствии с государственными стандартами СПДС и ЕСКД (см. указания к выполнению задачи 1).
|
|
|
Задача 3. Перечертить фрагмент фасада здания (см. рис. 26, в).
Указания к выполнению задачи 3. Оформить изображения фрагмента фасада в строгом соответствии государственных стандартов СПДС и ЕСКД. Нанесение размерных линий, вертикальные отметки на фасаде и плане, надписи, выносные элементы выполнить по ГОСТ 21.105-79 и 2.З16-68* (СТ СЭВ 856-78); координационные оси - по ГОСТ 21.401-79; условные изображения элементов зданий (окон, дверей) - по ГОСТ 2.107-78; типы линий - по ГОСТ 21.501-78 и 2.303-68* (СТ СЭВ* 1178-78) (Рис. 29).
Таблица 17
Задача 4. Выполнить графические обозначения шести видов материалов (в сечении). Материалы принимаются по табл. 17, отмеченные «+».
Указания к выполнению задачи 4. Графические обозначения материалов в сечениях и правила нанесения их на чертежи должны соответствовать ГОСТ 2.306-68* (СТ СЭВ 860-78). Обозначение материалов оформляют по рис. 26, г и табл. 17. Линии штриховки выполняются тонкой линией (а/3) по ГОСТ 2303-68* (СТ СЭВ 1I78-78) под углом 45° к линии контура изображения. Расстояние между параллельными линиями штриховки должно быть в зависимости от масштаба 1...10 мм.
Задача 5. Вычертить с простановкой размеров три элемента оформления чертежа. Обозначение секущей плоскости, размерную линию и отметку уровня на фасаде (рис. 26, д).
Указания к выполнению задачи 5. Изображение указанных элементов должны соответствовать ГОСТ 2.305-68 и 21.105-79. На изображениях элементов указываются их конкретные размеры (см. рис. 25, 5)
Лист 4
Формат АЗ. Основная надпись по форме 4а. Студенты специальностей «Промышленное и гражданское строительство», «Архитектура», «Сельскохозяйственное строительство», «Городское строительство», «Гидротехническое строительство речных сооружений и гидроэлектростанций», «Гидротехническое строительство водных путей и портов», «Автомобильные дороги», «Мосты и тоннели» выполняют пять задач по перспективе и теням. Пример оформления листа (лист А4) см. на рис. 30.
Студенты специальностей «Водоснабжение и канализация», «Теплоснабжение и вентиляция», «Производство строительных изделий и конструкций», «Техническая эксплуатация зданий, оборудования и автоматических систем» выполняют две задачи по аксонометрии и теням. Пример компоновки листа (лист 4Б) см. на рис. 31.
|
|
|
Задачи листа 4А
Задача 1. Для заданной объемно-пространственной композиции (схематизированного здания) осуществить 1) выбор точки и угла зрения, ориентировку картины; 2) построение главной точки (Р0) точек схода F1 и F2 (фокусов), точек пересечения горизонтальных лучей зрения со следом картины (10,..,n0). Индивидуальные варианты заданий взять из табл. 18. Номера вариантов указаны в верхнем правом углу каждого табличного изображения. Картина - вертикальная плоскость. Точка зрения для вариантов 0, 2, 4. 6, 8 должна располагаться слева, а для вариантов 1, 3, 5, 7, 9 - справа. Для каждого варианта заданы две высоты горизонта h и h1.

Указания к выполнению задачи 1. В случае расположения точки зрения слева (справа) ортогональные проекции схематизированного здания вычерчивают с левой (с правой) стороны листа, увеличив их табличные изображения в два раза. Поэтапная схема решения задачи представлена на рис. 34, а, б.
Между ортогональными проекциями необходимо оставить поле чертежа для построения теней (задача 4) (см. рис. 30).

Задачи 2, 3. Построить порознь перспективы параллелепипедов 1 и 2 схематизированного здания для заданной высоты горизонта h (высокий уровень) и выбранных в задаче 1 положений точки зрения (S) и картины (ПI1).
Указания к выполнению задач 2, 3. Поэтапные схемы решения задач представлены на рис. 34 а, в, г.
Задача 4. Для заданного схематизированного здания построить падающие тени в ортогональных проекциях.
Указания к выполнению задачи 4. Задача решается на ортогональных проекциях здания построенных в задаче 1. При построении теней в ортогональных проекциях, когда источник света бесконечно удален, необходимо помнить:

1) направление лучей света обычно принимаю параллельным диагоналям куба, грани которого параллельны плоскости проекций; благодаря этому проекции лучей света s1 и s2 образуют с осью проекции углы 45° (рис. 32);
2) тень от точки на поверхность является точкой пересечении с этой поверхностью луча света, проведенного через данную точку;
3) тень от прямой на поверхность представляет собой линию пересечения лучевой плоскости (совокупность лучей света, проходящих через прямую) с поверхностью;
4) тень от вертикальных прямых линий на горизонтальную плоскость параллельна горизонтальной проекции луча света (рис. 33, прямая АВ). Тень от прямых перпендикулярных плоскости П2, на фронтальную плоскость параллельна фронтальной проекции луча света (рис. 33, прямая СD);
5) если отрезок прямой параллелен какой-либо плоскости, то от него на эту плоскость падает тень, равная и параллельная отрезку (рис. 33, отрезок ЕF). На рисунке показана тень от отрезка прямой КL общего положения. Длина тени отрезка зависит от направления лучей света и положения отрезка относительно плоскости, на которую падает тень;

6) когда плоская фигура параллельна какой-либо плоскости, то тень от нее на эту плоскость расположена подобно самой плоской фигуре и равна ей;
7) граница падающей тени от фигуры является тенью от границы собственной тени той же фигуры. Поэтому по границе падающей тени можно определить границу собственной тени, и наоборот (рис. 35);
8) при построении падающих теней от одного тела на другое можно пользоваться способом обратного луча, который заключается в следующем: если на плоскостях П1 и П2 или какой-либо иной плоскости пересекаются падающие тени от двух прямых, то через точку их пересечения следует провести луч света в направлении источника света до пересечения с соответствующими прямыми. Первая точка в направлении обратного луча будет падающей тенью от второй точки (рис. 36).
Задача 5. Построить перспективу и тени (падающие и собственные) параллелепипеда З схематизированного здания для заданной высоты горизонта h1 (низкий уровень) и выбранных в задаче 1 положений точки зрения (S) и картины (ПI1).


Пояснение к построениям рис. 34
При подготовке к построению перспективы объемно-пространственного объекта последний аппроксимируется набором вертикальных прямоугольных параллелепипедов, стороны которых образуют три пучка параллельных прямых. Один из пучков - вертикальные ребра параллелепипедов.
Процесс построения перспективы объемной композиции на вертикальную плоскость методом архитекторов (с двумя точками схода параллельных прямых) сводится к следующему:
План. Для построения малоискаженного перспективного изображения объекта производится выбор положения точек зрения S и картины: горизонтальный угол φ, заключённый между крайними лучами, так же как и вертикальный угол зрения, принимается пределах 20...40°. Угол наклона картины к фасадной плоскости объекта принимается в пределах 25...30°. Главный луч перпендикулярен картине и делит угол примерно на равные части. Картина проводится через ближайшее к т. 3 вертикальное ребро объекта. При этом все параллелепипеды по отношению к картине разделяются на два класса: соприкасаемые (пересекаемые) с картиной и несоприкасаемые. Через т. S параллельно поперечным и продольным пучкам ребер объекта проводят лучи и, которые в пересечении с картиной дают точки схода перспективных поперечных (F1) и продольных (F2) пучков. Лучи фиксируют на картине перспективные изображения
вершин объекта. Для всех объектов, не соприкасающихся с картиной, с помощью прямых или находят точки (Ni0) пересечения продолжения их поперечных (продольных) ребер с картиной.
Фасад. На высоте расположения точки зрения от основания проводится линия горизонта h.
Перспектива. На линию основания картины с плана (с помощью размеченной полоски бумаги) переносятся т. l0...n0, N10, а так же FI1 и F21. На расстоянии h от основания картины проводится линия горизонта
. С помощью вертикалей на линии горизонта строятся точки FI1 и F21 - точки схода перспективных изображений пучков параллельных продольных и поперечных ребер объекта. Далее в зависимости от типа параллелепипеда выполняется одна из двух стандартных схем построения перспективы: схема А для соприкасающегося объекта (в) или схема Б для несоприкасающегося объекта (е). В обеих схемах первоначально строится перспективное изображение пучка параллельных прямых
, проходящихся через вертикальные ребра объекта, далее перспектива ребер нижнего основания (вторичная проекция) объекта, а затем верхнего.
Указания к выполнению задачи 5. Поэтапная схема решения задачи представлена на рис. 34,д.