Вопросы, изложенные в лекции:
1. Муфты постоянного соединения.
2. Муфты сцепные.
3. Методика подбора стандартных муфт.
| Муфты постоянного соединения |
Большинство машин компонуется из механизмов, каждый из которых выполнен в виде агрегата, обеспечивающего возможность полной взаимозаменяемости. Кроме того, при передаче движения от двигателя к исполнительному механизму возникает необходимость включать и выключать работу исполнительного механизма, не прекращая работу двигателя. Эти задачи и ряд других решаются посредством применения муфт.
Муфта (от немецкого die Muffe) – устройство для соединения валов, тяг, труб, канатов, кабелей. Следует различать муфты соединительные и муфты приводов машин. Именно последние рассматриваются в курсе деталей машин. Поэтому далее понятием муфта объединяются устройства, предназначенные для передачи вращательного движения между валами или между валом и свободно сидящей на нём деталью (шкивом, звёздочкой, зубчатым колесом и т.п.) без изменения параметров движения. Современное машиностроение располагает большим арсеналом муфт, различающихся по функциональному назначению, принципу действия и конструктивному исполнению.
|
|
|
Назначение муфт:
компенсация неточности сопряжения соединяемых концов валов;
смягчение крутильных ударов и гашение колебаний;
предохранение механизмов от разрушения при действии нештатных нагрузок;
периодическое сцепление и расцепление валов в процессе движения или во время остановки;
передача однонаправленного движения или предотвращение передачи обратного движения от ведомого вала к ведущему;
ограничение параметров передаваемого движения – скорости (частоты вращения ведомого вала) или крутящего момента.
Классификация муфт:
по виду энергии, участвующей в передаче движения – механические, гидравлические, электромагнитные;
по постоянству сцепления соединяемых валов – муфты постоянного соединения (неуправляемые), муфты сцепные, управляемые (соединение и разъединение валов по команде оператора), и автоматические (либо соединение, либо разъединение автоматическое по достижении управляющим параметром заданного значения);
по способности демпфирования динамических нагрузок - жёсткие, не способные снижать динамические нагрузки и гасить крутильные колебания, и упругие, сглаживающие вибрации, толчки и удары благодаря наличию упругих элементов и элементов, поглощающих энергию колебаний;
по степени связи валов - неподвижная (глухая), подвижная (компенсирующая), сцепная, свободного хода, предохранительная;
по принципу действия - втулочная, продольно-разъёмная, поперечно-разъёмная, компенсирующая, шарнирная, упругая, фрикционная, кулачковая, зубчатая, с разрушаемым элементом (срезная), с зацеплением (кулачковые и шариковые);
|
|
|
по конструктивным признакам - поперечно-компенсирующая, продольно-компенсирующая, универсально-компенсирующая, шарнирная, упругая (постоянной и переменной жёсткости), конусная, цилиндрическая, дисковая, фрикционная свободного хода, храповая свободного хода.
Муфты постоянного соединения позволяют разъединить ведущий и ведомый валы только после разборки соединения. Наиболее простыми из муфт постоянного соединения являются глухие муфты. Глухой называют такую муфту, которая обеспечивает при соединении валов полное совпадение их геометрических осей. Глухими являются втулочные, продольно-разъёмные и поперечно-разъёмные или фланцевые муфты.
Рис. 16.1. Втулочная муфта. |
Втулочная муфта (рис. 16.1) наиболее проста по конструкции и представляет собой втулку, одетую на концы соединяемых валов. Вращающий момент от ведущего вала к ведомому передаётся втулкой через штифты, установленные в отверстия, просверленные диаметрально сквозь втулку и концы валов, через шпонки (как на рис. 16.1), или через шлицы.
Недостатком этой муфты является невозможность разъединения валов без смещения хотя бы одного из них.
Рис. 16.2. Муфта продольно-разъёмная |
Продольно-разъёмная муфта (рис. 16.2) состоит из двух полумуфт, стягиваемых при сборке винтами или болтами с гайкой. Разъём между полумуфтами расположен в плоскости, проходящей через общую геометрическую ось обоих соединяемых валов. Усилие затяжки винтов выбирается таким, чтобы обеспечить передачу вращающего момента силами трения, действующими между контактирующими поверхностями валов и полумуфт. Такая муфта позволяет разъединять концы валов, не смещая последние со своего места, и облегчает центровку валов при установке агрегатов на общую раму или фундамент.
Внутренний диаметр резьбовой части болтов продольно-разъёмной муфты, необходимых для передачи заданного момента, можно вычислить по формуле
; (16.1)
где T – передаваемый муфтой крутящий момент; d – диаметр соединяемых концов валов; z – количество болтов; k – коэффициент режима работы муфты, учитывающий возможные кратковременные перегрузки (в машиностроении 1 £ k £ 6); f – коэффициент трения между полумуфтами и поверхностью валов (для сухих поверхностей из чугуна и стали принимают f = 0,2, при наличии смазки f = 0,08…0,1); [s]р – допускаемые напряжения растяжения для материала болтов.
Недостатком продольно-разъёмной муфты является возможность смещения её центра масс с оси вращения валов при неодинаковой затяжке винтов на противоположных сторонах, что может вызывать вибрацию валов, особенно опасную при больших скоростях вращения.
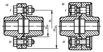
Рис. 16.3. Муфта фланцевая: а) для закрытой установки; б) для открытой установки; I –призонные болты; II –обычные болты в отверстиях с зазором. |
Поперечно-разъёмная илифланцевая муфта (рис. 16.3) также состоит из двух полумуфт, но каждая из её полумуфт насаживается на соединяемый конец своего из валов – одна на ведущий вал, другая на ведомый. Каждая из них снабжена фланцем. При сборке соединения полумуфты устанавливаются так, чтобы фланцы встали друг против друга с минимальным зазором. В отверстия фланцев вставляются болты, стягивающие полумуфты. При точном изготовлении болтовых отверстий (например, из-под развёртки) применяют призонные болты (рис. 16.3, I), поперечное сечение которых во время передачи вращающего момента работает на срез. При отверстиях малой точности болты устанавливаются с зазором (рис. 16.3, II), и в этом случае тело болтов работает на растяжение, а вращающий момент передаётся за счёт сил трения между торцевыми поверхностями фланцев. Муфты, предназначенные для открытой установки, снабжаются в целях обеспечения безопасности обслуживающего персонала выступами, закрывающими головки болтов и гайки (рис. 16.3, б).
|
|
|
При установке во фланцевую муфту призонных болтов (рис. 16.3, I) диаметр их призонной части, работающей на срез, рассчитывается по формуле
; (16.2)
где D1 – диаметр муфты, на котором расположены отверстия для установки болтов (см. рис. 16.3, а, б, I); [t] – допускаемые касательные напряжения для материала болта; остальные обозначения представлены выше. Для удобства сборки диаметр резьбовой части болта обычно выбирается несколько меньше диаметра его призонной части.
Если болты в отверстиях полумуфт устанавливаются с зазором (рис. 16.3, II), то вращающий момент передаётся за счёт сил трения, возникающих на торцевых поверхностях фланцев полумуфт и инициированных силами затяжки болтов. В этом случае внутренний диаметр резьбовой части болтов может быть найден по выражению
; (16.3)
где DНар – максимальный диаметр поверхности трения фланцев муфты, равный наружному диаметру муфты, а
- отношение диаметров внутреннего и наружного этой поверхности (см. рис. 16.3, а II).
Глухие муфты изготавливают обычно из углеродистых сталей или из чугунов различных марок.
Глухие муфты, жёстко соединяя концы валов, не позволяют им деформироваться под действием рабочих усилий, возникающих на элементах механизмов, передающих вращательное движение, таких, как шестерни, звёздочки, шкивы. Это ограничение деформации валов способствует повышению изгибных напряжений в них и, в конечном итоге, сокращает срок их службы.
Рис. 16.4. Виды возможного относительного смещения соединяемых валов: а) радиальное (поперечное);б)осевое (продольное);в)угловое. |
Исключения этой неприятности добиваются посредством применения подвижных муфт – муфт, конструкция которых позволяет отдельным элементам перемещаться в небольших пределах друг относительно друга вместе с концами соединяемых валов. Такие муфты называют иначе компенсирующими. Компенсирующие муфты допускают некоторое несовпадение геометрических осей соединяемых валов. Величину такого несовпадения принято называть величиной смещения (рис. 16.4). Взаимное смещение валов относительно номинального положения может происходить в процессе работы механизмов вследствие самых различных причин: деформации валов под рабочей нагрузкой, температурной деформации, износа подшипников, осадки фундамента и т.п. Нетрудно установить, что при соединении валов возможно 3 вида элементарного смещения: радиальное (поперечное рис. 16.4, а), осевое (продольное рис. 16.4, б) и угловое (рис. 16.4, в). Практически, наиболее часто наблюдается комплексное смещение, включающее сразу несколько из названных элементарных смещений.
|
|
|
Все подвижные компенсирующие муфты можно разделить на две группы: 1) жесткие муфты и 2) упругие муфты.
В жёстких муфтах подвижность частей обеспечивается конструктивными особенностями их элементов (расположение частей, величины зазоров, форма поверхностей и т.п.). Поэтому жёсткие муфты практически не способны гасить крутильные колебания, возникающие в механизмах.
В упругих муфтах подвижность частей достигается за счёт деформации упругого элемента муфты (разного рода пружины, детали из эластомера, например резины). Деформация такого упругого элемента происходит, как правило, с достаточно большим поглощением энергии, последнее способствует интенсивному гашению крутильных колебаний и более спокойной работе привода в целом.
В бронетанковой технике находят применение жёсткие компенсирующие зубчатые муфты, способные компенсировать все три вышеназванных вида относительного смещения соединяемых валов. Зубчатые муфты передают движение от планетарных механизмов поворота бортовым редукторам машины БМП-2, в трансмиссии танка Т-72 - соединяют вал двигателя с повышающим редуктором, установлены в приводе стартера-генератора, передают движение от повышающего редуктора планетарным бортовым коробкам передач, и используются в ряде других машин.
Зубчатые муфты общемашиностроительного применения стандартизованы (ГОСТ 5006-83) для валов диаметром от 40 до 200 мм и передаваемых моментов от 1000 до 63000 Нм. Такие муфты выпускаются двух типов: муфты МЗ – для непосредственного соединения валов и муфты МЗП – для соединения валов через промежуточный вал.
Рис. 16.5. Муфта зубчатая МЗ. |
Муфта МЗ (рис. 16.5) состоит из двух втулок 1, насаживаемых на соединяемые валы и несущих на своей наружной поверхности зубчатый венец 3, и двух полуобойм 2, каждая из которых снабжена внутренними зубьями и фланцем. В рабочем состоянии зубья втулок входят во впадины между зубьями полуобойм, а фланцы последних стягиваются между собой болтами. В некоторых вариантах исполнения обойма муфты может быть выполнена в виде единой детали, в этом случае необходимость фланцев отпадает. Торцы обоймы закрываются крышками, а зазор между отверстием каждой крышки и втулкой уплотняется манжетой 4. Внутреннее пространство муфты заполняется консистентной или жидкой смазкой высокой вязкости для уменьшения износа зубьев и повышения КПД муфты.
С целью обеспечения возможности смещения втулок относительно обоймы вершины зубьев втулки выполнены сферическими с центром сферы на оси вращения валов, боковым поверхностям этих зубьев придана овальная форма, а впадины между зубьями обоймы сделаны несколько шире по сравнению с толщиной зубьев втулок.
Зубчатое сопряжение стандартных муфт имеет эвольвентный профиль с углом зацепления a = 20°, при этом высота зубьев на втулках составляет 2,25m, а высота контактной поверхности зубьев - 1,8m.
При проектном расчёте нестандартных зубчатых муфт делительный диаметр зубьев можно вычислить по формуле
; (16.4)
где [s]см – допускаемые напряжения смятия рабочих поверхностей зубьев; y = b/D0 – коэффициент ширины зубчатого венца (b – ширина зубчатого венца втулок); остальные параметры определены выше. Для существующих конструкций муфт y = 0,12…0,16.
Далее, задавшись числом зубьев z (обычно выбирают 30 £ z £ 80, для более тяжёлых условий работы большее число зубьев), определяют модуль m = D0/z, который округляют до ближайшего большего стандартного значения. По выбранному модулю уточняют все геометрические параметры муфты.
Детали стандартных зубчатых муфт изготавливают коваными из углеродистых сталей типа 45, 40Х или литыми из стали 45Л. Зубья втулок с целью повышения износостойкости подвергают улучшающей термообработке до твёрдости ³ 40HRC, а зубья обоймы – ³ 35HRC. Для этих материалов принимают допускаемые напряжения [s]см = 12…15 МПа.
Стандартные зубчатые муфты допускают угловое смещение осей валов до 1,5° и максимальное поперечное (радиальное) их смещение
; (16.5)
где d – диаметр соединяемых валов. При этом, чем больше угловое смещение валов, тем должно быть меньше радиальное смещение, и наоборот – большому радиальному смещению должно соответствовать минимальное угловое.
Главными достоинствами зубчатых муфт являются высокая нагрузочная способность при минимальных габаритах и возможность изготовления на высокопроизводительном зуборезном оборудовании.
Коэффициент полезного действия зубчатых муфт hм = 0,985…0,995, а поперечное усилие, создаваемое на концах соединяемых валов из-за их относительного смещения F» (0,15…0,20)×Ft, где Ft – тангенциальное усилие в муфте, действующее на диаметре D0.
Рис. 16.6. Муфта крестово-кулисная (кулачково-дисковая): а) в сборе; б) подетальная аксонометрическая проекция. |
Для компенсации радиального смещения валов широко применяется крестово-кулисная (кулачково-дисковая) муфта (рис. 16.6), содержащая три главных части: устанавливаемые на соединяемые валы две полумуфты 1 и 2, каждая из которых может быть как ведущей, так и ведомой, и между ними кулиса (диск) 3, снабжённая прямоугольными гребнями на торцевых поверхностях, идущими вдоль взаимно перпендикулярных диаметров. Гребни кулисы при сборке муфты вводятся в пазы, выполненные на обращённых друг к другу торцевых поверхностях полумуфт. Часто с целью облегчения кулисы у неё удаляют центральную часть.
Детали крестово-кулисной муфты изготавливаются, как правило, из углеродистых или легированных сталей (стали 45, 50, 40Х, 15Х, 20Х и др.). Контактные поверхности гребней кулисы и пазов полумуфт подвергают химикотермической или термической обработке с целью достижения высокой твёрдости и контактной прочности.
Крестово-кулисная муфта позволяет соединять валы, относительное смещение осей которых d £ 0,04×d, где d –диаметр меньшего из соединяемых валов. Кроме того, эта муфта допускает и некоторое угловое смещение валов g £ 0°40¢.
При работе крестово-кулисной муфты на несоосных валах гребни кулисы скользят в пазах полумуфт, а центр кулисы (совпадающий, как правило, с её центром масс) движется по окружности, диаметр которой равен величине относительного смещения d геометрических осей валов, с угловой скоростью равной удвоенной скорости вращения валов.
Несовпадение центра масс кулисы с её осью вращения приводит к тому, что на кулису действует центробежная сила
; (16.6)
где mк – масса кулисы; aц – центростремительное ускорение, действующее на кулису; n – частота вращения соединяемых валов, мин-1.
Полагая диск кулисы сплошным и пренебрегая массой гребней последнее выражение можно записать
; (16.7)
где s – толщина диска кулисы, а r - плотность материала, из которого он изготовлен.
Сведя все численные величины в один общий коэффициент и приняв, что d = K×D, получим
. (16.8)
Из (16.8) следует, что центробежная сила, действующая в муфте, пропорциональна кубу её диаметра и квадрату частоты вращения соединяемых валов. Следовательно, с целью сокращения вредных сил, способствующих увеличению потерь энергии в муфте и ускоряющих её износ, следует максимально возможно сокращать внешний диаметр крестово-кулисной муфты и не применять её для соединения валов, вращающихся с высокими скоростями.
Диаметр крестово-кулисной муфты можно вычислить по соотношению
; (16.9)
где h – высота гребней кулисы; b = dвн/D – отношение диаметра отверстия в диске к наружному диаметру муфты; [s]см – допускаемые напряжения смятия на контактных поверхностях элементов муфты. Для перечисленных выше сталей принимают допускаемые напряжения [s]см = 15…20 МПа.
Радиальное относительное смещение валов и поперечное движение кулисы стимулируют возникновение поперечной нагрузки на концах соединяемых валов
; (16.10)
где f = (0,12…0,25) – коэффициент трения между боковыми поверхностями гребней кулисы и пазов полумуфт.
Потери энергии в муфте характеризуются её КПД
Рис. 16.7 Муфта крестово-кулисная с неметаллическим промежуточным элементом |
. (16.11)
При практических расчётах обычно принимают hм»0,985…0,995.
Для соединения быстроходных валов применяется другая разновидность крестово-кулисной муфты (рис. 16.7). В этой муфте дисковая кулиса заменена сухарём, имеющим квадратное поперечное сечение, а пазы на торцах полумуфт расширены до поперечных размеров сухаря. Сам сухарь изготавливается обычно из неметаллических материалов (текстолит, фенольно-формальдегидные пластики, капролон и т.п.). В силу малой плотности материала сухаря, а также меньших его размеров по сравнению с дисковой кулисой, центробежные силы в этой разновидности муфты значительно меньше по сравнению с муфтой, имеющей дисковую кулису.
Вместе с тем контактные напряжения на опорной площади боковых граней сухаря изменяются от нуля на одном ребре грани до максимума на другом её ребре. Обозначив отношение толщины сухаря b к длине боковой грани a как b, длину боковой грани сухаря можно вычислить по формуле
. (16.12)
Обычно относительная толщина сухаря b = 0,25…0,75, а диаметр муфты D = (1,5…1,8)×a. Для муфт с текстолитовым сухарём допускаемые напряжения [s]см = 10…12 МПа, при использовании для изготовления сухаря стеклотекстолитов конструкционных марок значения допускаемых напряжений смятия могут быть увеличены в (1,25…1,5) раза.
Рис. 16.8. Кинематическая схема шарнирной муфты Кардана - а) и сдвоенной муфты Кардана - б). |
При больших относительных смещениях валов, когда расстояние d (см. рис. 16.4) между их геометрическими осями соизмеримо с диаметром самих валов или угол g достаточно велик (может достигать до 45°), и особенно при передаче вращения между валами, которые способны наряду с вращением перемещаться друг относительно друга в радиальном или в угловом направлении, применяют шарнирные муфты. В настоящее время разработано несколько конструкций таких муфт, имеющих постоянное или переменное передаточное число.
Рис. 16.9. Конструкция шарнирной муфты Кардана |
Наибольшее распространение в промышленности и на транспорте получили шарнирные муфты (муфты Кардана) с крестовым шарниром (шарниром Гука) (схема рис. 16.8, конструкция рис. 16.9). Муфта Кардана (рис. 16.8, а) состоит из двух полумуфт, каждая из которых выполнена в форме вилки. Перья вилки каждой из полумуфт A и B расположены под углом 90° друг к другу, а между ними установлена крестовина, концы которой посредством вращательных кинематических пар соединены с перьями вилки.
При равномерном вращении входного вала 1 с угловой скоростью w1 угловая скорость выходного вала w2 не будет постоянной, а мгновенное передаточное число периодически меняется в течение каждого оборота и составляет
; (16.13)
где g - острый угол между геометрическими осями валов; j - угол поворота ведущего вала, отсчитываемый от положения ведущей полумуфты, при котором её вилка лежит в плоскости, проходящей через геометрические оси соединяемых валов.
Коэффициент неравномерности вращения ведомого вала в этом случае
. (16.14)
При g = 45°
, а при g» 52° коэффициент неравномерности превышает единицу, поэтому применение муфт с шарниром Гука для углов свыше 45° нежелательно.
Для выравнивания скорости выходного вала применяют муфту со сдвоенным шарниром Гука (рис. 16.8, б). В этом случае, если вилки промежуточного вала лежат в одной плоскости и g1=g2=g (геометрические оси входного и выходного валов параллельны), либо g1=g3=g, при любом значении g угловые скорости входного (ведущего) w1 и выходного (ведомого) w2 валов равны и, следовательно, u=1.
Коэффициент полезного действия единичной шарнирной муфты может быть вычислен по соотношению
; (16.15)
где d - диаметр цапфы крестовины; D – диаметр, на котором расположены цапфы крестовины (расстояние между серединами цапф, имеющих общую геометрическую ось); r - угол трения для подшипников крестовины.
Для гашения крутильных колебаний (колебаний угловой скорости), вызванных силами инерции в механических приводах широкое применение находят упругие муфты. Главной особенностью этих муфт является наличие упругого элемента (резиновые втулки, торообразная оболочка, эластичная крестовина, различного рода пружины и т.п.), который при резком возрастании нагрузки (момента сопротивления) способен деформироваться, возвращаясь в исходное состояние при уменьшении нагрузки до нормальной рабочей величины. Упругие муфты, кроме того, допускают радиальное смещение валов до 0,4…0,6 мм и угловое смещение осей валов до 1,5°. Кроме упругого элемента муфты ещё снабжаются, как правило, поглощающим устройством, предназначенным для диссипации колебательной энергии и предотвращения резонансных колебаний в элементах привода при неравномерном вращении его валов. Довольно часто упругий и поглощающий элементы совмещаются в одной детали.
Демпфирующая способность муфты характеризуется величиной механической энергии, поглощаемой муфтой необратимо при деформации её упругого элемента. Поглощение энергии в муфте происходит либо за счёт трения её деталей друг о друга (пружинные муфты различной конструкции), либо за счёт внутреннего трения в неметаллическом упругом элементе. Так, например, многие резиновые упругие изделия способны обратить в тепло до 25% энергии затраченной на их деформацию.
В качестве примера из большого числа известных конструкций рассмотрим две наиболее распространённые и простые по устройству упругие муфты.
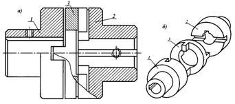
Рис. 16.10. Муфта упругая втулочно-пальцевая |
Муфта упругая втулочно-пальцевая (МУВП; рис. 16.10) состоит из двух полумуфт, каждая из которых выполнена в виде ступицы с фланцем на одном конце. На фланце одной из полумуфт (обычно ведущей) крепятся пальцы с надетыми на их свободные концы резиновыми кольцами трапецеидального сечения или гофрированными резиновыми втулками. При монтаже на соединяемые концы валов полумуфты устанавливаются фланцами друг к другу, а концы пальцев с надетыми на них упругими элементами входят в отверстия второй (обычно ведомой полумуфты). Муфты МУВП стандартизованы для валов диаметром от 9 до 160 мм и передаваемых крутящих моментов от 6,3 до 16×103 Нм (ГОСТ 21424-93).
Полумуфты могут быть изготовлены из чугуна марки не ниже СЧ 21-40 или стали Ст. 3. Для изготовления пальцев используется сталь 45 или более прочная. Кольца и втулки изготавливаются из резины, имеющей прочность на растяжение не ниже 6 МПа и твёрдость 55…75 единиц по Шору.
Расчёт нестандартных муфт МУВП ведётся по двум основным параметрам: пальцы муфты рассчитываются на изгиб, а резиновые кольца или втулки на смятие по цилиндрической поверхности. При этом допускаемые напряжения смятия [s]см = 1,8…2 МПа. Напряжения смятия для колец и втулок
; (16.16)
где Tк – вращающий момент; dп – диаметр пальца; Dп - диаметр полумуфт, на котором расположены отверстия для установки пальцев; l – длина упругого элемента (набора колец или втулки); z – число пальцев.
Напряжения изгиба в пальцах муфты
; (16.17)
где С – зазор между полумуфтами, составляющий для большинства муфт 2…5 мм. Допускаемые напряжения изгиба [s]и =(0,4…0,5)×sт, где sт – предел текучести материала пальцев.
Муфты данного типа обладают большой радиальной и угловой жёсткостью, поэтому и механизмы, валы которых соединяют посредством такой муфты, должны устанавливаться на плитах или рамах большой жёсткости с максимально возможной точностью центровки сопрягаемых валов.
Втулочно-пальцевая муфта требует достаточно точного центрирования (осевое смещение l £ 5 мм; радиальное - d £ 0,6 мм; угловое - g £ 1°).
Следствием высокой радиальной жёсткости муфты являются большие поперечные нагрузки на концах соединяемых валов. В расчётах радиальную жёсткость муфты принимают приблизительно линейной. В этом случае радиальные усилия на валах могут быть вычислены по приближённому эмпирическому соотношению
; (16.18)
в котором диаметр большего из соединяемых валов d и величина их относительного радиального смещения d должны подставляться в мм, тогда результат будет получен в кН.
Стандартные муфты МУВП выбираются по величине вращающего момента и диаметру соединяемых валов, как это показано ниже.
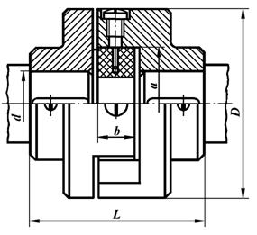
Рис. 15.11. Муфта упругая с неразрезной торообразной оболочкой: а) выпуклого профиля; б) вогнутого профиля. |
Муфты упругие с торообразной оболочкой обладают большой крутильной, радиальной и угловой податливостью и в соответствии с ГОСТ Р 50892-96 изготавливаются с оболочкой выпуклого или вогнутого профиля. В свою очередь, муфты с оболочкой выпуклого профиля могут быть с разрезной или неразрезной (ГОСТ 20884-93) оболочкой.
Конструкция муфт с неразрезной оболочкой представлена на рис. 16.11. Муфта состоит из двух полумуфт, снабжённых фланцами, и торообразной оболочки, прикреплённой своей периферической частью к фланцам с помощью прижимных дисков и винтов, стягивающих эти диски с фланцами полумуфт. Прижимные диски для неразрезной торообразной оболочки разрезные (выполняются из двух или большего числа деталей, соединяемых посредством винтов), для разрезной – неразрезные.
Металлические детали муфты изготавливаются из стали Ст. 3 (ГОСТ 380-71) или более прочной. Торообразная оболочка прессуется из резины с сопротивлением разрыву не менее 10МПа и модулем упругости при 100% удлинении не ниже 5МПа. Торообразные оболочки муфт, диаметр которых превышает 300 мм, армируются кордовыми нитями с целью увеличения несущей способности и срока службы.
Положительным качеством муфт с торообразной оболочкой является высокая демпфирующая способность при больших радиальных и угловых несоосностях соединяемых валов (осевое смещение l £ 5 мм; радиальное -
d £ 6 мм; угловое - g £ 6°) при высокой частоте их вращения (до 2500 мин-1 и выше).
Муфты с выпуклой торообразной оболочкой по сравнению с муфтами, имеющими вогнутую оболочку, имеют несколько меньшую массу, способны передавать примерно на 20 % меньший момент и выдерживают примерно в 1,5 раза меньшие обороты, но при этом имеют существенно большую податливость.
При вращении с достаточно большими угловыми скоростями на полумуфтах появляются постоянно действующие осевые усилия, что требует жёсткого осевого закрепления полумуфт на концах соединяемых валов.
Однако, даже при предельных смещениях валов, возникающие радиальные и осевые силы, а также изгибающие моменты невелики и при расчёте валов могут не учитываться.
Подбор муфт с торообразной оболочкой ведётся по передаваемому вращающему моменту и диаметру соединяемых валов.
| Муфты сцепные |
Сцепными называют муфты, основным назна чением которых является соединение или разъединение валов при движении или во время остановки.
Основные требования к сцепным муфтам:
1. быстрота и лёгкость включения (соединения валов) и выключения (разъединения валов);
2. плавность включения;
3. надёжность сцепления валов после включения муфты;
4. высокий КПД, малый износ и нагрев муфты;
5. простота регулирования и настройки;
6. незначительные усилия на органах управления при ручном управлении;
7. минимальные габариты при заданных несущей способности, и сроке эксплуатации.
В качестве сцепных в машиностроении наиболее широкое распространение получили кулачковые, зубчатые и фрикционные муфты.
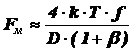
Рис. 16.12. Муфты сцепные: а) кулачковая; б) зубчатая. Форма кулачков в тангенциальном сечении: в) прямоугольная; г) трапецеидальнаясимметричная; д) треугольная; е) трапецеидальная.несимметричная. |
Кулачковые и зубчатые муфты (рис. 16.12, а, б) имеют подобную конструктивную схему. Оба вида муфт состоят из двух полумуфт, каждая из которых снабжена фланцевой частью. Одна из полумуфт крепится на одном из соединяемых валов неподвижно, другая, закреплённая на втором из этих валов, имеет возможность осевого перемещения или снабжается подвижной в осевом направлении втулкой.
Различие этих муфт заключается в том, что в полумуфтах кулачковой муфты зубья, которые принято называть кулачками, выполнены на торцовой поверхности фланцев (рис. 16.12, а), а в полумуфтах зубчатой муфты зубья расположены на цилиндрической поверхности, причём на одной из полумуфт делаются наружные зубья (правая полумуфта на рис. 16.12, б), на другой – внутренние (левая полумуфта на рис.16. 12, б).
Обе разновидности муфт находят широкое применение в коробках передач колёсных и гусеничных машин, а также металлорежущего оборудования.
При сближении полумуфт посредством осевого перемещения подвижной полумуфты кулачки или зубья одной полумуфты входят во впадины другой, и вращающий момент передаётся за счёт силового контактного взаимодействия кулачков или зубьев боковыми сторонами.
При включении таких муфт на ходу, когда либо валы вращаются с разными скоростями, либо один из них вращается, а другой вообще неподвижен, процесс включения произойдёт с ударом между боковыми поверхностями зубьев, что весьма нежелательно из-за воздействия на зубья чрезмерных ударных нагрузок, приводящих к быстрому износу рабочих поверхностей и в некоторых случаях даже способных вызвать поломку зубьев. По этой причине кулачковые и зубчатые муфты часто применяются совместно с дополнительными устройствами, обеспечивающими синхронизацию скорости вращения соединяемых валов перед включением муфты.
В зубчатых муфтах боковые поверхности зубьев обычно выполняются по эвольвентному профилю, поскольку зубья с таким профилем легко нарезаются на широко распространённом зуборезном оборудовании, предназначенном для изготовления зубчатых колёс. Кулачки кулачковых муфт могут иметь самый различный профиль: прямоугольный (рис. 16.12, в), симметричный трапецеидальный (рис. 16.12, г), треугольный (рис. 16.12, д) или несимметричный трапецеидальный (рис. 16.12, е) и некоторые другие. Выбор профиля кулачков определяется многими условиями, как конструктивного, так и технологического характера. Так, например, прямоугольный профиль кулачков хорошо обеспечивает передачу вращающего момента, не создавая при этом осевого выключающего усилия, но при таком профиле кулачков велика вероятность взаимного утыкания кулачков сопряжённых полумуфт при попытке их соединения, что особенно неприятно при включении муфты на ходу. Полумуфты с трапецеидальными кулачками гораздо легче входят во взаимное зацепление, поскольку в начальный момент соединения ширина впадин между кулачками существенно превышает толщину входящих в них вершин кулачков. Наиболее благоприятны с точки зрения лёгкости включения кулачки треугольной формы, но вследствие относительно больших углов наклона рабочих граней кулачков в муфтах с такими кулачками действуют максимальные выключающие силы.
Кулачковые и зубчатые муфты изготавливаются обычно из углеродистых или легированных сталей (сталь 45, 50, 40ХН, 38ХМЮА и др.). Рабочие поверхности кулачков подвергаются химической или химико-термической обработке для достижения высокой твёрдости контактной поверхности (HRC 56…62).
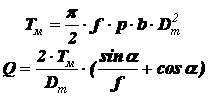
Кулачки кулачковых муфт обычно рассчитываются на контактную прочность и, если длина кулачка по серединной окружности не превышает его высоты, на изгиб. При этом предполагается, что нагрузка между кулачками распределена равномерно и давление по площадке контакта также распределено равномерно. В этом случае
напряжения смятия
; (16.19)
а напряжения изгиба
; (16.20)
где Tк – расчётный момент, определяемый как сумма рабочего и инерционного (возможно пускового) моментов; dср – средний диаметр муфты по кулачкам; z – число кулачков в одной из полумуфт; F и h – площадь проекции контактной поверхности кулачка на диаметральную плоскость и высота кулачка, соответственно; Wи – осевой момент сопротивления основания кулачка.
При увеличении степени рассинхронизации скорости соединяемых валов в момент включения допускаемые контактные напряжения уменьшают в 1,5…3 раза.
На наклонных рабочих гранях кулачков в работающей муфте возникает осевая сила, стремящаяся развести полумуфты, то есть произвести её выключение. Эта сила
; (15.21)
где f1 – коэффициент трения подвижной полумуфты относительно вала; d – диаметр вала; a – угол наклона рабочей грани кулачка по отношению к диаметральной плоскости; r – угол трения между гранями сопряжённых кулачков (tgr = f, где f – коэффициент трения для тех же поверхностей). Для исключения выключающей силы, гарантирующего невозможность самопроизвольного расцепления полумуфт, необходимо, чтобы выражение в квадратных скобках не превышало по величине нуля. Если принять f1 = f, что достаточно часто соответствует действительности, то условие невыключаемости муфты самопроизвольно запишется, как
; (15.22)
Для принудительного включения муфты под нагрузкой требуется приложить включающее осевое усилие к подвижной полумуфте
. (15.23)
При расчёте кулачковых муфт обычно принимают f1 = f = 0,15…0,2.
Фрикционные муфты передают вращающий момент посредством сил трения, возникающих на поверхностях сцепляющихся элементов (рис. 16.13).
Фрикционные муфты нашли широкое применение в подвижных машинах, как колёсных, так и гусеничных (в автомобилях это муфта сцепления, в танках, БМП и других гусеничных машинах - главный фрикцион).
Рис. 15.13. Некоторые разновидности фрикционных муфт |
Широкое распространение фрикционных муфт обусловлено их несомненными достоинствами:
1. допускают включение при любом различии угловых скоростей соединяемых валов (не нужно их предварительно синхронизировать);
2. обеспечивают плавный разгон ведомого вала;
3. позволяют плавно регулировать скорость вращения ведомого вала и время его разгона;
4. выполняют предохранительную функцию, ограничивая величину нагрузочного момента, передаваемого от ведомого вала ведущему.
Основным недостатком фрикционных муфт является неспособность обеспечить полную синхронность вращения ведущего и ведомого валов вследствие проскальзывания.
Классификация фрикционных муфт:
1. по направлению действия замыкающего усилия – осевые и радиальные;
2. по форме и конструкции элементов трения -
| осевые: | а) конусные; |
| б) дисковые; | |
| радиальные: | в) колодочные; |
| г) ленточные; | |
| д) с разжимным кольцом; |
3. по наличию смазки на поверхностях трения - сухие и масляные.
В сухих муфтах поверхности трения работают без смазки, в масляных тела трения погружены в масляную ванну.
Качество фрикционных муфт (жесткость и стабильность сцепления, срок службы, частота включений-выключений) определяются главным образом качеством использованных для их изготовления фрикционных материалов. Эти материалы должны отвечать следующим требованиям:
1. обеспечивать высокий и постоянный во времени коэффициент трения;
2. обладать высокой износоустойчивостью;
3. иметь достаточную прочность при одновременной способности хорошо прирабатываться;
4. иметь высокую теплопроводность для теплоотвода от поверхности
трения;
5. иметь высокую теплоустойчивость и химическую стойкость против продуктов разложения и окисления смазочных материалов при высокой температуре;
6. иметь хорошую обрабатываемость, малую стоимость и недефицитность.
Расчёт прочности и работоспособности фрикционных муфт выполняется по удельному давлению на поверхностях трения, а расчёт несущей способности по удельному давлению и коэффициенту трения на рабочих поверхностях (табл. 16.1)
Таблица 16.1
Допустимые удельные давления [p]
и коэффициенты трения f для некоторых фрикционных пар.
| Фрикционная пара | Условия смазки | ||||
| масляные | сухие | С попаданием смазки | |||
| [p], МПа | f | [p], МПа | f | f | |
| Сталь - сталь | 0,6…0,8 | 0,05…0,08 | - | 0,18 | 0,1 |
| Чугун - чугун или сталь | 0,6…0,8 | 0,08…0,1 | 0,2…0,3 | 0,15…0,18 | 0,12 |
| Сталь - бронза | 0,4…0,6 | 0,08 | - | 0,18 | 0,11 |
| Металлокерамика -сталь | 0,8 | 0,08 | 0,3 | 0,25…0,45 | - |
| Текстолит - сталь | 0,4…0,6 | 0,1 | - | - | 0,12 |
| Феродо - сталь | - | 0,08 | 0,2…0,3 | 0,3 | - |
Данные таблицы соответствуют скорости скольжения при включении vs £ 2,5 м/с и частоте включений не выше 100 в час. При скоростях скольжения фрикционных элементов в момент включения, превышающих указанную величину рабочее удельное давление следует уменьшить. Для этих условий работы удельное давление может быть вычислено по эмпирической формуле
; (16.24)
где vs - скорость скольжения, м/с; [p] - допустимые удельные давления из табл. 16.1.
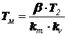
Расчётный рабочий момент муфты зависит от величины передаваемого момента (от момента сопротивления на ведомом валу):
; (16.25)
где b - коэффициент запаса сцепления (1,2 £ b £ 3,5,для колёсных транспортных машин принимают b = 1,2…1,5, для гусеничных -
b = 1,5…2,0); km - коэффициент, учитывающий частоту включения муфты (при nвкл £ 100 km =1, в остальных случаях
); kv - коэффициент, учитывающий скорость скольжения vs (
, где vs - м/с).
Рабочий момент конусной муфты (рис. 16.13, в) и осевое усилие, необходимое для обеспечения контакта фрикционных поверхностей в процессе её работы, связаны с конструктивными параметрами муфты соотношениями
. (16.26)
В этих выражениях Dт - средний диаметр поверхности трения; b - ширина поверхности трения; p - удельное давление; f - коэффициент трения; a - угол между образующей конуса и осью вала.
Задавшись коэффициентом ширины поверхности трения
y = 0,15…0,25 (y = b / Dт) и выбрав значение угла a конусной муфты (для трения металла по металлу a = 8°…10°, для дерева по металлу - a ³ 20°, для кожи и феродо по металлу - a ³ 12,5°) можно определить средний диаметр поверхности трения (проектный расчёт).
Дисковая муфта может иметь одну (рис. 16.13, а) или несколько пар трения (рис. 16.13, б). При этом наружный D и внутренний d диаметры поверхностей трения для всех контактных пар практически одинаковы. Тогда для всех этих поверхностей ширина
, а средний диаметр
. В этом случае рабочий момент муфты и осевое усилие, необходимое для обеспечения необходимого сжатия дисков, связаны с конструктивными параметрами муфты соотношениями
(16.27)
и
. (16.28)
В последних выражениях z - количество пар поверхностей трения, остальные обозначения определены выше.
Достаточно часто с целью уменьшения диаметра дисковой муфты увеличивают количество поверхностей трения за счёт увеличения числа дисков, связанных с ведущей и ведомой полумуфтами. При этом, как правило, число дисков ведущей полумуфты n1 берут на один меньше числа дисков ведомой полумуфты n2. Общее число дисков
не может быть более 30, поскольку при большом числе дисков из-за их перекоса либо коробления муфта плохо выключается (говорят: «муфта ведёт»).
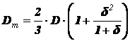
При проектном расчёте фрикционных муфт удобным является в первую очередь вычислить приведённый диаметр муфты Dm (см. рис. 16.13), удовлетворяющий соотношению
, в котором Ff - полная тангенциальная сила трения по всем фрикционным поверхностям. Приведённый диаметр муфты связан с наружным и внутренним диаметрами поверхностей трения выражением
; (16.29)
где
. (16.30)
Относительный внутренний диаметр поверхности трения d и коэффициент её ширины y для конических и дисковых муфт связаны соотношением
. (16.31)
Однако более удобным для вычисления относительного внутреннего диаметра d поверхности трения по заданному её коэффициенту ширины является приближённое эмпирическое выражение
. (16.32)
С учётом использования нескольких пар поверхностей трения, как в многодисковой муфте, приведённый диаметр муфты может быть вычислен по соотношению
; (16.33)
где z – число взаимодействующих пар поверхностей трения, остальные обозначения определены выше.
При использовании сегментных накладок или отдельных колодок необходимо учесть потери площади трения на промежутки между отдельными накладками или колодками.
| Методика подбора стандартных муфт |
Муфты, нашедшие в промышленности наибольшее применение, стандартизованы (например, шарнирные, с упругой торообразной оболочкой, втулочно-пальцевые и ряд других). Главной паспортной характеристикой стандартной муфты является величина максимального момента [T] (указывается в стандарте), который она способна передать. Поэтому стандартизованные муфты подбираются в соответствии с величиной передаваемого вращающего момента по условию
; (16.34)
где T – рабочий момент, передаваемый муфтой, K – коэффициент ответственности и условий работы привода, учитывающий возможное возрастание нагрузки при случайных нештатных ситуациях. Обычно в машиностроении 1,0 £ K £ 6,0. В свою очередь коэффициент K состоит из произведения нескольких частных коэффициентов. Наиболее употребимыми являются два из них, что позволяет записать
; (16.35)
где kот – коэффициент ответственности (если отказ муфты вызывает просто остановку машины, то kот=1, аварию машины - kот=1,2, аварию нескольких машин - kот=1,5, аварию с человеческими жертвами, катастрофу - kот=1,8); kур – коэффициент условий работы машины (спокойная работа без реверсирования kур=1, неравномерная нагрузка - kур=(1,1…1,3), тяжёлая работа с ударами и реверсированием - kур=(1,3…1,5)). Особые условия работы могут быть учтены посредством введения дополнительных повышающих коэффициентов.
После выбора муфты с соответствующим максимальным передаваемым моментом проверяется возможность установки элементов муфты на соединяемые валы уже известного диаметра. При этом следует учесть, что, во-первых, стандартами допускается изготовление одинаковых элементов муфты на несколько вариантов посадочных диаметров, а во-вторых, большинство муфт допускает расточку посадочных отверстий в достаточно широком диапазоне, и такая расточка, если она необходима, должна быть указана в заказной спецификации.
В лекции рассмотрена только незначительная часть из огромной номенклатуры муфт, используемых в промышленности. Расширить свои знания в этой области можно с помощью многочисленных учебников и специальной технической литературы.
| Вопросы для самоконтроля: |
1. Что в технике называют муфтой? Какие устройства подразумеваются под этим названием в курсе «детали машин»?
2. Какие функции выполняют муфты в механизмах и агрегатах?
3. Назовите основные классификационные признаки муфт.
4. Назовите основные разновидности глухих муфт. Перечислите их главные достоинства и недостатки.
5. В чём разница продольно-разъёмных и поперечно-разъёмных муфт?
6. Что и на какие виды напряжений рассчитывается во втулочной муфте?
7. Что и на какие виды напряжений рассчитывается в продольно-разъёмной муфте?
8. Что и на какие виды напряжений рассчитывается в поперечно-разъёмной муфте?
9. Какие муфты можно назвать подвижными?
10. Что компенсируют компенсирующие муфты? Назовите возможные виды относительного смещения валов, соединяемых муфтой.
11. Назовите принципиальные различия между жёсткими и упругими муфтами.
12. Объясните конструктивную схему и особенности зубчатых муфт. Для какой цели они применяются?
13. Назовите основной принцип проектного расчёта нестандартных зубчатых муфт.
14. Объясните конструктивную схему и особенности крестово-кулисной муфты. Для какой цели она применяется?
15. Какие процессы идут в крестово-кулисной муфте при соединении вращающихся несоосных валов? Как можно бороться с нежелательными эффектами работы крестово-кулисной муфты?
16. назовите основной принцип проектного расчёта крестово-кулисной муфты.
17. Как можно сократить нежелательные центробежные силы при установке крестово-кулисной муфты на высокоскоростные валы?
18. Объясните конструктивную схему и особенности шарнирной муфты. Для какой цели она применяется?
19. В чём заключается главный недостаток шарнирной муфты? Каким способом его исключают при использовании таких муфт в машинах?
20. Какое устройство называют упругой муфтой? Для чего оно предназначено?
21. Объясните конструктивную схему втулочно-пальцевой муфты? Как она рассчитывается?
22. Объясните конструктивную схему муфты с торообразной упругой оболочкой? Как она рассчитывается?
23. Какие муфты называют сцепными? Какие требования к ним предъявляются?
24. Объясните конструктивную схему и особенности кулачковых и зубчатых сцепных муфт. Для какой цели она применяется?
25. Какие отрицательные эффекты могут наблюдаться при работе кулачковых и зубчатых сцепных муфт?
26. Объясните основные принципы расчёта кулачковых и зубчатых сцепных муфт.
27. Объясните конструктивную схему и особенности работы фрикционной муфты. Для какой цели она применяется?
28. Перечислите основные достоинства и недостатки фрикционных муфт.
29. назовите основные виды фрикционных муфт.
30. Назовите основные фрикционные материалы, используемые во фрикционных муфтах, и требования к ним.
31. Объясните основные принципы проектного и проверочного расчёта фрикционных муфт.
32. Объясните основной принцип подбора стандартных муфт.
é
Рис. 16.1. Втулочная муфта.
Рис. 16.2. Муфта продольно-разъёмная
Рис. 16.3. Муфта фланцевая: а) для закрытой установки; б) для открытой установки; I –призонные болты; II –обычные болты в отверстиях с зазором.
Рис. 16.4. Виды возможного относительного смещения соединяемых валов: а) радиальное (поперечное);б)осевое (продольное);в)угловое.
Рис. 16.5. Муфта зубчатая МЗ.
Рис. 16.6. Муфта крестово-кулисная (кулачково-дисковая): а) в сборе; б) подетальная
Рис. 16.7 Муфта крестово-кулисная с неметаллическим промежуточным элементом
Рис. 16.8.
Рис. 16.9. Конструкция шарнирной муфты Кардана
Рис. 16.10. Муфта упругая втулочно-пальцевая
Рис. 15.11. Муфта упругая с неразрезной торообразной оболочкой: а) выпуклого профиля; б) вогнутого профиля.
Рис. 16.12. Муфты сцепные: а) кулачковая; б) зубчатая. Форма кулачков в тангенциальном сечении: в) прямоугольная; г) трапецеидальнаясимметричная; д) треугольная; е) трапецеидальная.несимметричная.
Рис. 15.13. Некоторые разновидности фрикционных муфт